Chain-free two-bed with gated parking and modern fittings — ready to move in.
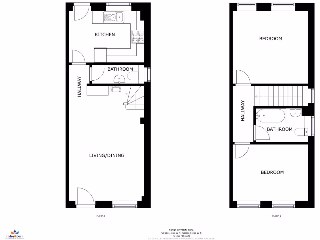
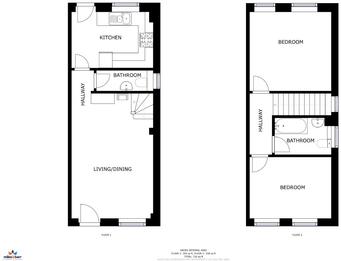
Chain-free two-bedroom terraced home, approx. 716 sq ft
Electric gated private off-street parking for one car
Modern fitted kitchen, family bathroom and ground-floor WC
Small, low-maintenance rear garden — limited outdoor space
Solid brick walls; assumed no wall insulation — potential upgrade needed
Freehold tenure; very cheap council tax banding
No flood risk; excellent mobile signal and fast broadband
Local crime above average — consider additional security
Bright, compact and chain-free, this two-bedroom terraced home on Church Street offers a straightforward move-in opportunity for first-time buyers. The property combines practical modern fittings — a fitted kitchen, modern family bathroom and a handy ground-floor WC — with useful extras such as electric gated off-street parking and a low-maintenance rear garden.
Internally the layout is traditional and efficient: a good-sized lounge and kitchen on the ground floor, with two double bedrooms and the family bathroom upstairs. At approximately 716 sq ft the house is average-sized for a town property and feels right for a couple or small family wanting easy access to Broadstairs amenities, schools and high-speed rail links to London.
There are some material points to note. The property is of solid brick construction with assumed no wall insulation, which could mean higher heating costs and a straightforward opportunity to improve energy performance. The plot is small and outdoor space is limited. Local crime is reported as above average, so buyers should consider security measures despite gated parking.
Overall this freehold, chain-free home delivers convenience and coastal town living with immediate usability and clear scope for modest improvements — ideal for buyers seeking a manageable starter home with parking and good transport links.
2 bedroom terraced house for sale in Church Street, Broadstairs, CT10 — £250,000 • 2 bed • 1 bath • 821 ft²
3 bedroom house for sale in Astoria Close, Broadstairs, CT10 — £270,000 • 3 bed • 2 bath • 1012 ft²
3 bedroom end of terrace house for sale in Livingstone Road, Broadstairs, CT10 — £300,000 • 3 bed • 2 bath • 927 ft²
2 bedroom terraced house for sale in Luton Court, Broadstairs, Kent, CT10 — £250,000 • 2 bed • 1 bath • 976 ft²
2 bedroom terraced house for sale in Afghan Road, Broadstairs, Kent, CT10 — £225,000 • 2 bed • 1 bath • 613 ft²
4 bedroom detached house for sale in St. Peters Court, Broadstairs, CT10 — £550,000 • 4 bed • 3 bath • 2228 ft²






















































