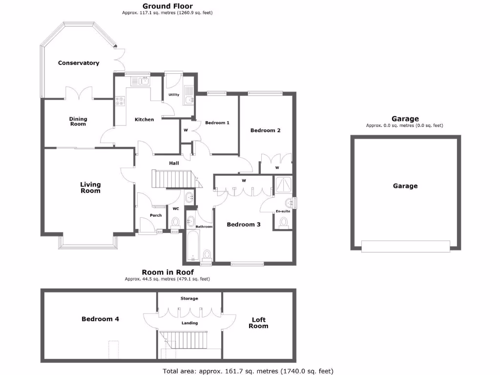
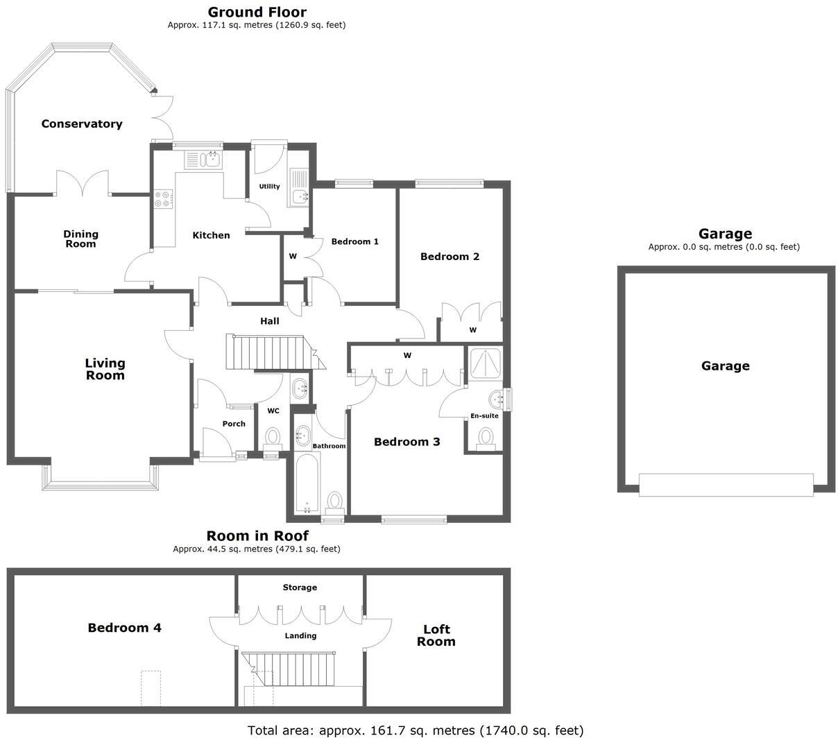
### Standout Features:
- **Four spacious bedrooms** with potential for additional accommodation
- **Generous size** with a total of 1,740 square feet
- **Private driveway** with ample parking and a **double garage**
- **Bright conservatory** leading to an enclosed rear garden
- **No chain**, making it ready for immediate occupancy
- **Modern amenities** including mains gas central heating
### Potential Concerns:
- Average room sizes; suitability for certain buyers may vary
- No scenic views noted from the property
Discover a unique opportunity in this **deceptively spacious detached bungalow** featuring four well-appointed bedrooms, perfect for families or those seeking extra space. Nestled on a **generous plot** with a **private driveway**, this home boasts a **double garage** and mature garden settings that promote leisure and comfort. The layout includes bright living spaces, a **welcoming conservatory**, a utility room, and a conveniently located ground floor w/c.
This property provides excellent potential for customization, especially with a large storage room upstairs that could be transformed into additional living space. While room sizes are average, the layout enables a cozy yet functional living experience. Enjoy the **peaceful ambiance** of this affluent neighborhood while still being close to reputable schools and local amenities.
A **rare find** with no chain means this bungalow is ready for you to make it your own. Don’t miss out—properties like this often fly off the market!
4 bedroom bungalow for sale in Scraptoft Lane, Leicester, Leicestershire, LE5 — £475,000 • 4 bed • 2 bath • 1487 ft²
2 bedroom detached bungalow for sale in Hereward Drive, Thurnby, LE7 — £315,000 • 2 bed • 2 bath • 1071 ft²
2 bedroom bungalow for sale in Magnolia Drive, Lutterworth, LE17 — £275,000 • 2 bed • 1 bath • 929 ft²
2 bedroom detached bungalow for sale in Fosse Way, Syston, LE7 — £325,000 • 2 bed • 2 bath • 969 ft²
2 bedroom detached bungalow for sale in Glenville Avenue, Glen Parva, Leicester, LE2 — £269,950 • 2 bed • 1 bath • 1098 ft²
2 bedroom detached bungalow for sale in Appleby Road, Thurmaston, Leicester, LE4 — £260,000 • 2 bed • 1 bath • 560 ft²










































































