Bright one-bedroom with garden and excellent commuter links for first-time buyers.
Top-floor Victorian conversion with high ceilings and bay-window character
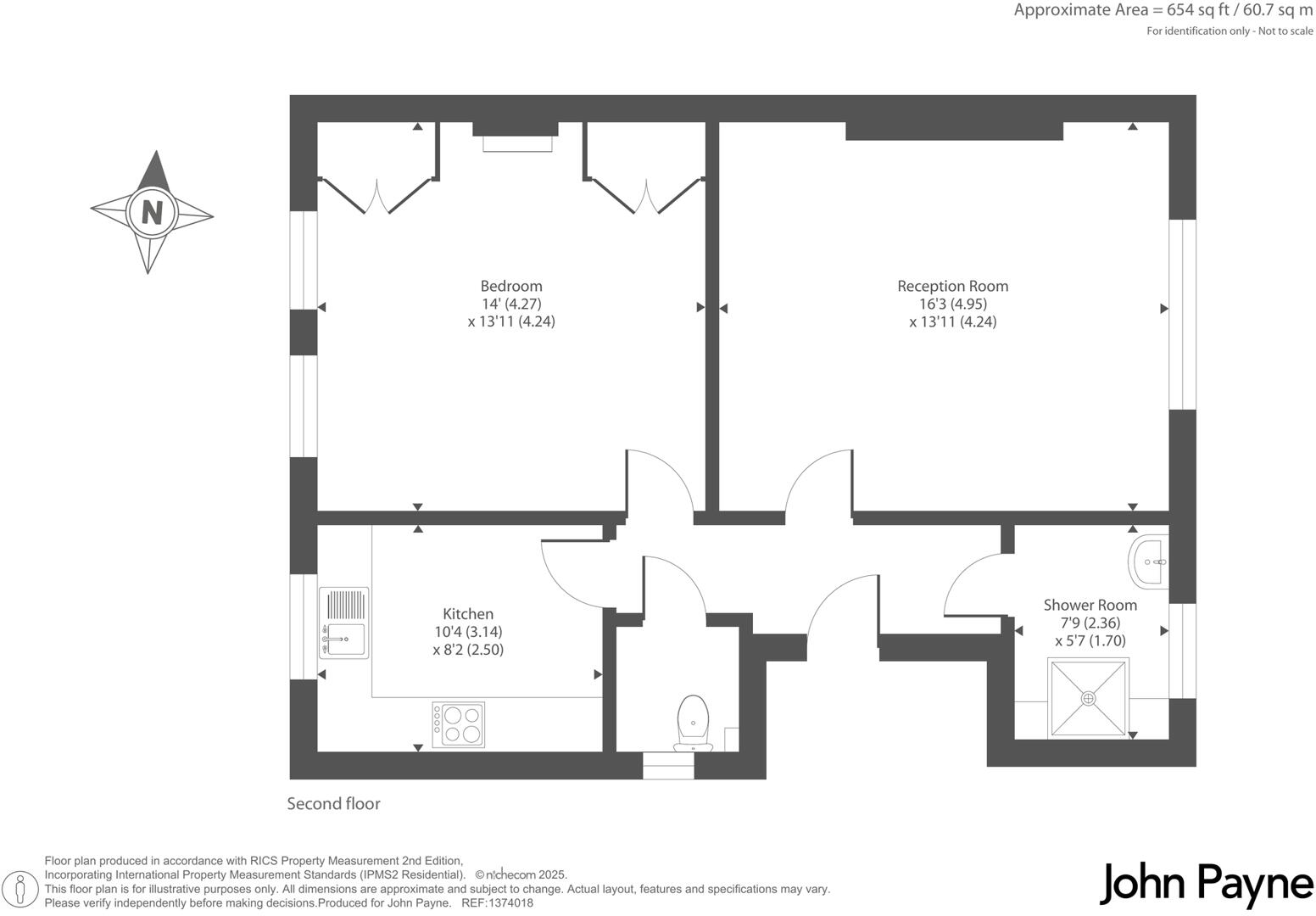
Double bedroom and spacious lounge; separate kitchen layout
Generous overall size: approximately 654 sq ft
Share of freehold with 999-year lease; sold chain free
Communal garden and low service charge (£100 pcm)
Excellent transport links: Lee and Hither Green stations nearby
Energy Efficiency Rating E; likely higher heating costs
Local area crime rate is high; buyers should consider security
Set on the top floor of a Victorian conversion, this roomy one-bedroom flat blends period character with practical living. High ceilings and bay-window detail give the lounge a bright, airy feel, while the separate kitchen and generous bedroom provide clear, workable spaces for daily life.
Positioned just a few hundred yards from Lee station and close to shops, parks and highly rated local schools, the flat suits a first-time buyer seeking straightforward commuter links and local amenities. Share of freehold and a 999-year lease offer long-term security; the property is sold chain free for a quicker move.
Running costs merit consideration: an Energy Efficiency Rating of E and original solid-brick walls (likely uninsulated) may mean higher heating bills and scope for improvement. Service charge is a modest £100pcm, and the communal garden adds outdoor space without private maintenance.
The flat is well placed for buses to Canary Wharf and fast rail services to central London, making it a practical, characterful entry-level purchase with clear potential to improve energy performance and add value.
1 bedroom flat for sale in Burnt Ash Hill, Lee, London, SE12 — £300,000 • 1 bed • 1 bath • 482 ft²
1 bedroom flat for sale in Eltham Road, London, SE12 — £325,000 • 1 bed • 1 bath • 649 ft²
1 bedroom apartment for sale in Burnt Ash Road, Lee, SE12 — £375,000 • 1 bed • 1 bath • 641 ft²
1 bedroom flat for sale in Lee High Road, London, SE12 — £325,000 • 1 bed • 1 bath • 724 ft²
1 bedroom flat for sale in St. Mildreds Road, London, SE12 — £260,000 • 1 bed • 1 bath • 527 ft²
2 bedroom apartment for sale in Manor Lane, Lee, SE12 — £425,000 • 2 bed • 1 bath • 725 ft²














































