**Standout Features:**
- Detached true bungalow in a select cul de sac
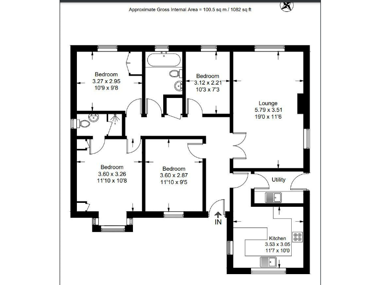
- Four spacious bedrooms with versatile accommodation
- Generous breakfast kitchen with integrated appliances and utility room
- Large lounge room, main bathroom, and en suite
- Expansive, well-established gardens with a private rear aspect
- Driveway, garage, and excellent parking options
- Gas central heating and uPVC double glazing
- No chain, ready for immediate occupancy
- Proximity to reputable schools and local amenities
**Summary:**
Discover this charming detached true bungalow in the desirable cul de sac of Stansford Court, Penwortham. This versatile property boasts four generously sized bedrooms and an inviting lounge room, perfect for families or those seeking spacious living. The kitchen features modern integrated appliances, complemented by a convenient utility room. The tranquil rear garden, adorned with a wisteria-covered pagoda, landscaped lawns, and seating areas, presents an idyllic setting for relaxation and entertaining.
With gas central heating and uPVC double glazing for comfort, the property comes with driveway parking, a garage, and a sleek front garden. Positioned within a friendly community and near esteemed schools, this home’s location offers both convenience and security. Ideal for families or investors alike, seize the opportunity for a viewing today—properties like this don't stay on the market for long!
4 bedroom bungalow for sale in Carlisle Avenue, Penwortham, PR1 — £499,995 • 4 bed • 2 bath • 1907 ft²
2 bedroom detached bungalow for sale in Aspels Nook, Penwortham, Preston, PR1 — £280,000 • 2 bed • 1 bath • 1026 ft²
3 bedroom detached bungalow for sale in Howick Moor Lane, Penwortham, Preston, PR1 — £495,000 • 3 bed • 3 bath • 1884 ft²
2 bedroom semi-detached bungalow for sale in Marl Avenue, Penwortham, Preston, PR1 — £279,950 • 2 bed • 1 bath
4 bedroom detached house for sale in Broad Oak Lane, Penwortham. Preston, PR1 — £385,000 • 4 bed • 3 bath
2 bedroom detached bungalow for sale in Greencroft, Penwortham, Preston, PR1 — £220,000 • 2 bed • 1 bath • 700 ft²


































































