BN27 3BP - 3 bed extended detached bungalow in Summerfields Avenue, BN…

View on Property Piper

3 bedroom bungalow for sale in Summerfields Avenue, Hailsham, BN27

Summary - 1 SUMMERFIELDS AVENUE HAILSHAM BN27 3BP

3 bed 2 bath Bungalow

Single-storey family home with modern kitchen, garage and landscaped gardens.
Extended detached bungalow on a sizable plot
This extended three-bedroom bungalow sits on a generous plot in a sought-after Hailsham location, an easy walk from shops, primary schools and bus links. The single-storey layout and dual-aspect lounge with feature fireplace create comfortable, accessible living for families or downsizers.

The recently fitted German kitchen and dining area opens via bi-fold doors to a landscaped rear garden with multiple seating areas, while a versatile adjoining room serves well as a utility or home office. Bedroom accommodation includes three doubles, an en-suite and built-in wardrobes; a luxurious family bathroom features a freestanding bath and separate rainforest shower.

Practical benefits include off-road parking for several vehicles, plus a garage/workshop. Broadband speeds are fast and mobile signal is excellent. The property is freehold and has no flooding risk.

A few practical issues to note: the house was built 1900–1929 and the cavity walls are understood to have no insulation, so buyers should anticipate potential improvement works to upgrade thermal performance. Nearby secondary provision (Hailsham Community College) is currently rated Inadequate by Ofsted. Council tax is moderate.

Overall this well-presented bungalow suits families seeking level living and generous outdoor space, with clear scope for energy upgrades and cosmetic tailoring to personal taste.

Property Details

Image Descriptions

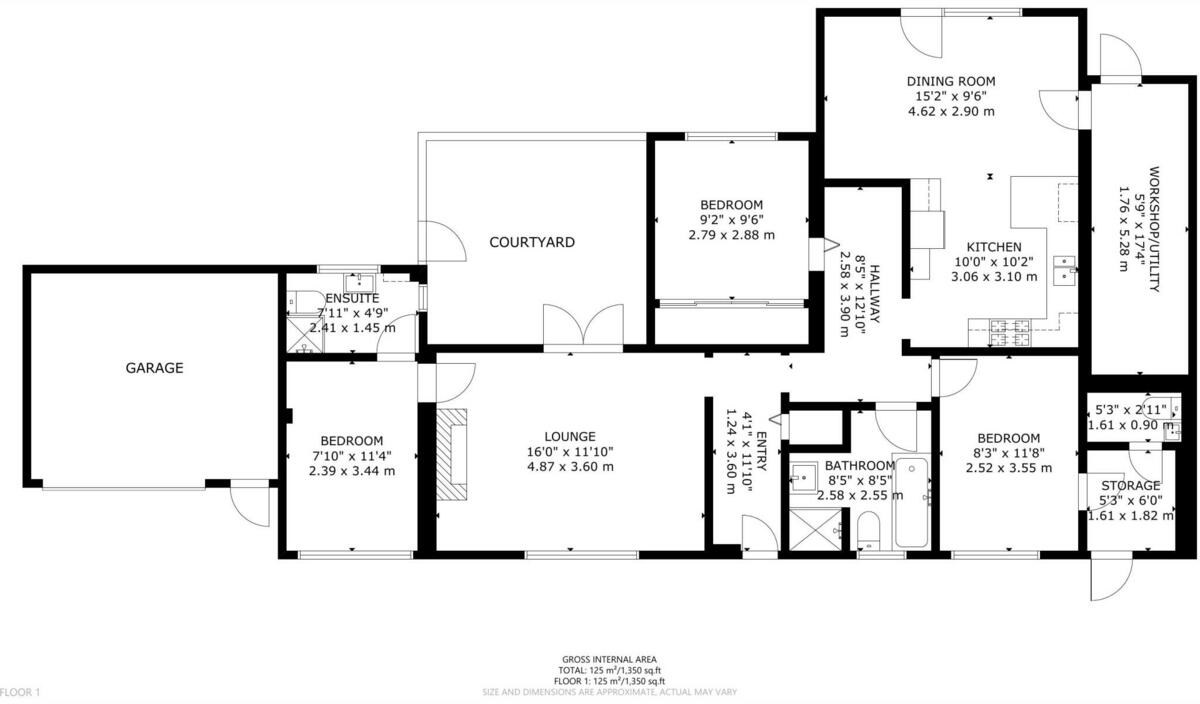
Floorplan Description

Rooms

Textual Property Features

Target Audience

AI Tags

Detected Visual Features

EPC Details

Nearby Schools

Nearest Bars And Restaurants

,,,,}

Nearest General Shops

,,}

Nearest Grocery shops

,,}

Nearest Supermarkets

,,}

Nearest Religious buildings

,,}

Nearest Medical buildings

,,,}

Nearest Leisure Facilities

,,,,}

Nearest Tourist attractions

,,}

Nearest Train stations

,,,,}

Nearest Bus stations and stops

,,,,}

Nearest Hotels

,,}

Tags

Local Market Stats

AirBnB Data

Similar Properties

Meta

High Res Images

Compatible Images

Low res Images

Thumbnails

Raw Images

High Res Floorplan Images

Compatible Floorplan Images

Low res Floorplan Images

FloorplanImages Thumbnail

Raw Floorplan Images