NP7 8AD - 2 bedroom end of terrace house for sale in BrynYGwenin, Abe…

View on Property Piper

2 bedroom end of terrace house for sale in Bryn-Y-Gwenin, Abergavenny, NP7

Summary - CANDLE TREE COTTAGE, 1 NEW COTTAGES BRYN Y GWENIN ABERGAVENNY NP7 8AD

2 bed 1 bath End of Terrace

**Standout Features:**
- Charming end-of-terrace cottage in a popular and quiet hamlet
- Two cozy reception rooms, both with wood-burning stoves
- Well-designed kitchen featuring an exposed stone wall
- Two good-sized bedrooms and a generous bathroom with a separate shower
- Easily managed paved garden, perfect for relaxation or entertaining
- Off-road parking available via a private driveway

**Notable Concerns:**
- The property has no insulation (assumed), which may lead to higher heating costs
- Broadband speeds are reported as slow
- Neighbouring access is permitted via the driveway

This attractive end-of-terrace cottage offers a warm and inviting space, ideal for first-time buyers or those looking to downsize. Beautifully presented throughout, the heart of the home features two reception rooms that are perfect for cozy evenings, both hosting charming wood-burning stoves. The kitchen combines modern touches with rustic appeal, providing ample workspace and storage along with a striking exposed stone wall. Upstairs, two good-sized bedrooms offer comfort, alongside a well-appointed bathroom featuring both a bath and separate shower.

Outside, the easy-to-maintain paved garden invites you to enjoy the serene setting, while the private driveway ensures convenient off-road parking. Nestled in the tranquil hamlet of Bryn-Y-Gwenin—just 3.5 miles from bustling Abergavenny—this property caters to a lifestyle filled with scenic countryside walks and superb dining options. Although some aspects, such as the lack of insulation and slow internet speeds, may present minor challenges, the cottage's charm and excellent location make it an enticing opportunity for those seeking a lovely home in a picturesque rural environment. Don't miss out on this rare find—a comfortable, character-filled retreat awaits!

Property Details

Image Descriptions

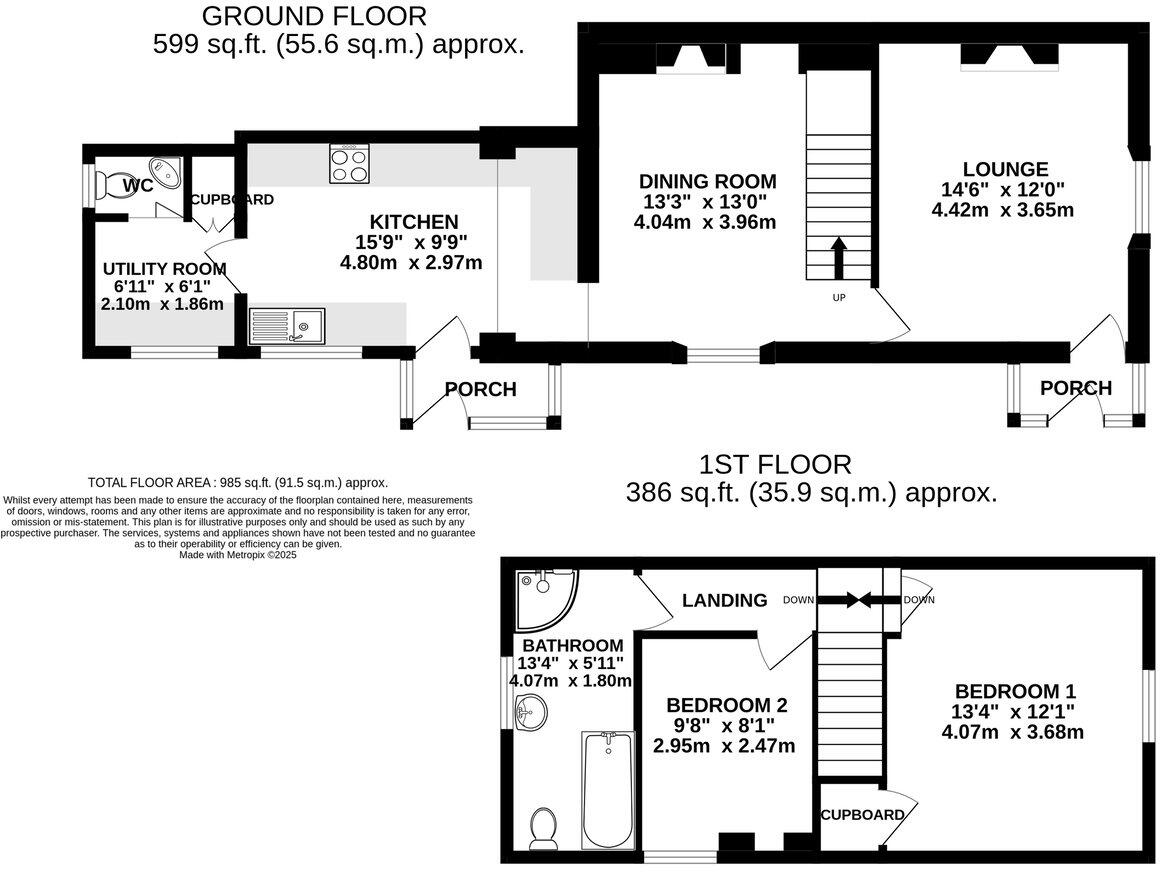
Floorplan Description

Rooms

Textual Property Features

Detected Visual Features

EPC Details

Nearest Bars And Restaurants

,,,,}

Nearest General Shops

,,}

Nearest Grocery shops

,,}

Nearest Supermarkets

,,}

Nearest Religious buildings

,,}

Nearest Medical buildings

,,,}

Nearest Leisure Facilities

,,,,}

Nearest Tourist attractions

,,}

Nearest Train stations

,,,,}

Nearest Bus stations and stops

,,,,}

Nearest Hotels

,,}

Tags

Local Market Stats

AirBnB Data

Similar Properties

Meta

High Res Images

Compatible Images

Low res Images

Thumbnails

Raw Images

High Res Floorplan Images

Compatible Floorplan Images

Low res Floorplan Images

FloorplanImages Thumbnail

Raw Floorplan Images