Bright, practical four-bedroom home with driveway, garage and sunny rear garden, priced for local market..
Bright living room with plush carpet and feature fireplace
Breakfasting kitchen with direct garden access
Four double bedrooms; ground-floor bedroom useful for guests
Single family bathroom with bath and overhead shower
South-west facing rear garden, patio, and summerhouse
Private driveway for several cars; timber garage for storage
Gas central heating and double glazing throughout
Area shows high deprivation; tenure currently unspecified
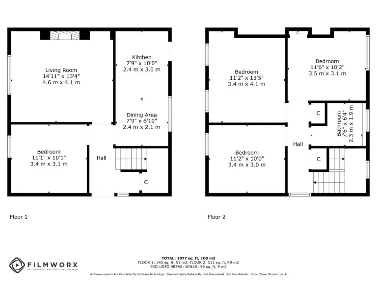
This bright four-bedroom semi-detached villa offers versatile family living across approximately 1,077 sq ft. The ground floor includes a spacious living room, a breakfasting kitchen with direct garden access, and a double bedroom ideal for guests or home office use. Upstairs there are three generously proportioned double bedrooms and a family bathroom with bath and overhead shower.
Practical extras include a private driveway for several cars, a timber garage for storage, a summerhouse, gas central heating and double glazing. The rear garden faces south-west, creating a pleasant outdoor space for relaxing and dining in warmer months. Mobile signal is excellent and broadband speeds are fast, supporting home working and streaming.
Buyers should note the property sits in an area with high deprivation indicators and local classifications describe a challenging socio-economic profile—prospective purchasers may wish to investigate local services and long-term area trends. Tenure is not specified in the provided information. The home is presented in largely walk-in condition though some buyers may wish to carry out minor cosmetic updating to personalise the finish.
3 bedroom terraced house for sale in 79 Hawthorn Street, Grangemouth, FK3 — £145,000 • 3 bed • 1 bath • 976 ft²
3 bedroom semi-detached house for sale in 8 Albert Avenue, Grangemouth, FK3 — £145,000 • 3 bed • 1 bath • 882 ft²
3 bedroom semi-detached house for sale in Newlands Road, Grangemouth, FK3 — £190,000 • 3 bed • 2 bath • 1389 ft²
4 bedroom semi-detached house for sale in 205 Bo'ness Road, Grangemouth,FK3 9BT, FK3 — £395,000 • 4 bed • 2 bath • 4040 ft²
4 bedroom detached house for sale in Erskine Hill, Polmont, Falkirk, Stirlingshire, FK2 — £320,000 • 4 bed • 1 bath • 1425 ft²
3 bedroom semi-detached house for sale in Cuillin Place, Grangemouth, FK3 — £195,000 • 3 bed • 1 bath • 856 ft²






















































































