Stylish fifth-floor apartment with generous terrace in vibrant Shepherd's Bush.
Large private terrace extending living space
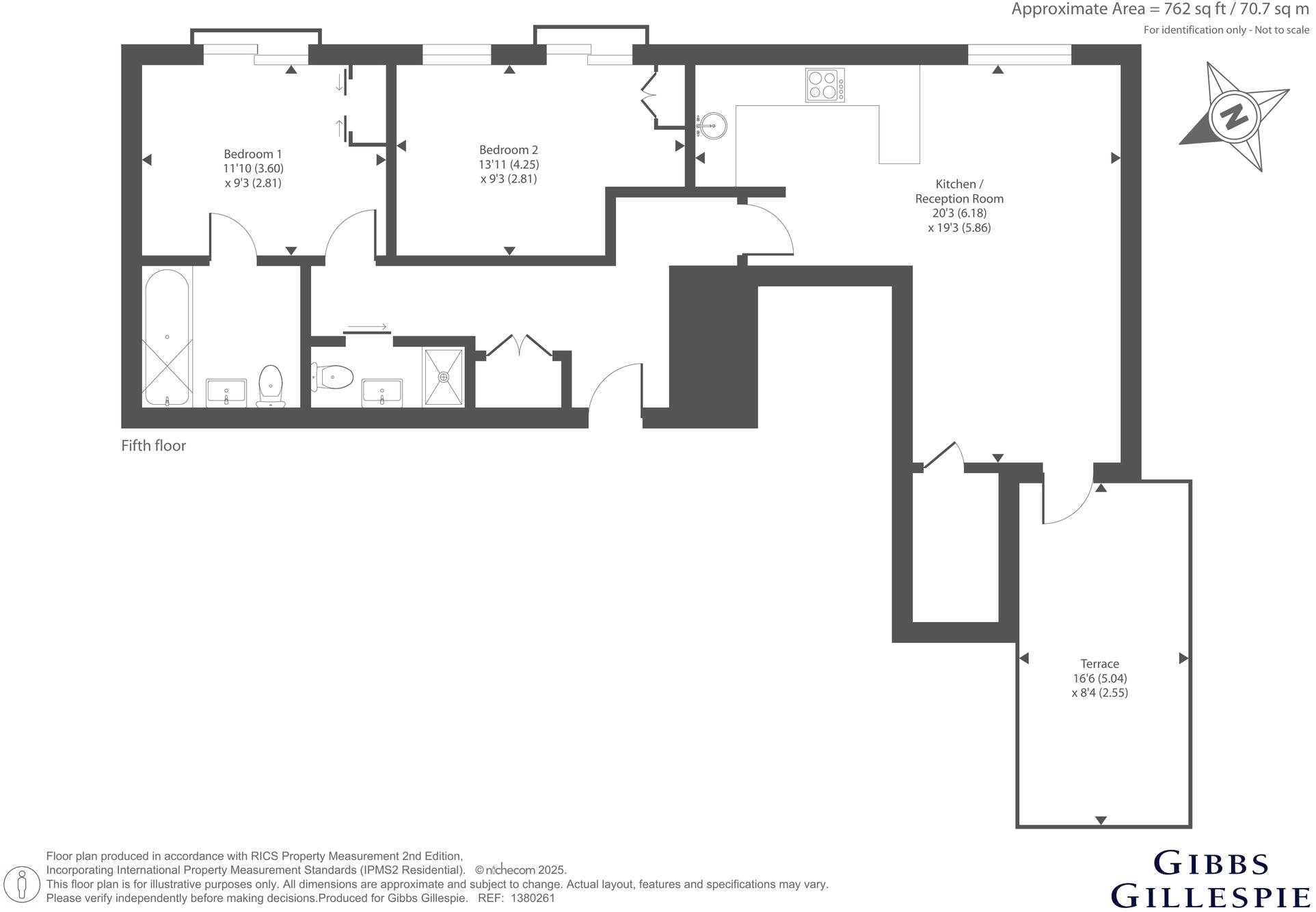
A bright, contemporary two-bedroom fifth-floor apartment in The Grove W6, finished to a high specification and arranged around an open-plan living, dining and kitchen. Large windows and high ceilings create a light, airy feel and the private terrace extends the living space for city-facing entertaining. The principal bedroom includes fitted wardrobes and an ensuite; a second bathroom serves the home and guests.
The building is new build with quality finishes, underfloor heating in the main living area and integrated appliances. At 762 sq ft the layout is a practical size for professional sharers or a buy-to-let investor seeking a premium West London address close to Goldhawk Park and Westfield.
Buyers should note material considerations: the development sits in an area with a very high recorded crime level and significant local deprivation. Service charges are c. £2,049 pa and council tax band is not yet confirmed — factor these running costs into affordability. The property is leasehold with c. 249 years remaining.
Overall, this apartment offers turnkey modern living and a large private terrace in a boutique Shepherd’s Bush development. It will suit buyers wanting a stylish urban home or investors targeting central-West London rental demand, provided they accept the noted local social and running-cost factors.
2 bedroom apartment for sale in The Grove W6, 10B Shepherds Bush Road, London, W6 — £795,000 • 2 bed • 2 bath • 743 ft²
2 bedroom apartment for sale in The Grove W6, 10B Shepherds Bush Road, Hammersmith, W6 — £800,000 • 2 bed • 2 bath • 829 ft²
2 bedroom apartment for sale in The Grove W6, 10B Shepherds Bush Road, Hammersmith, W6 — £775,000 • 2 bed • 2 bath • 743 ft²
2 bedroom apartment for sale in The Grove W6, 10B Shepherds Bush Road, Hammersmith, W6 — £600,000 • 2 bed • 1 bath • 711 ft²
2 bedroom apartment for sale in Shepherds Bush Road, London, W6 — £775,000 • 2 bed • 2 bath • 743 ft²
2 bedroom apartment for sale in Shepherds Bush Road, London, W6 — £795,000 • 2 bed • 2 bath • 743 ft²










































