Walk-in condition with high ceilings and bay windows near Queens Park.
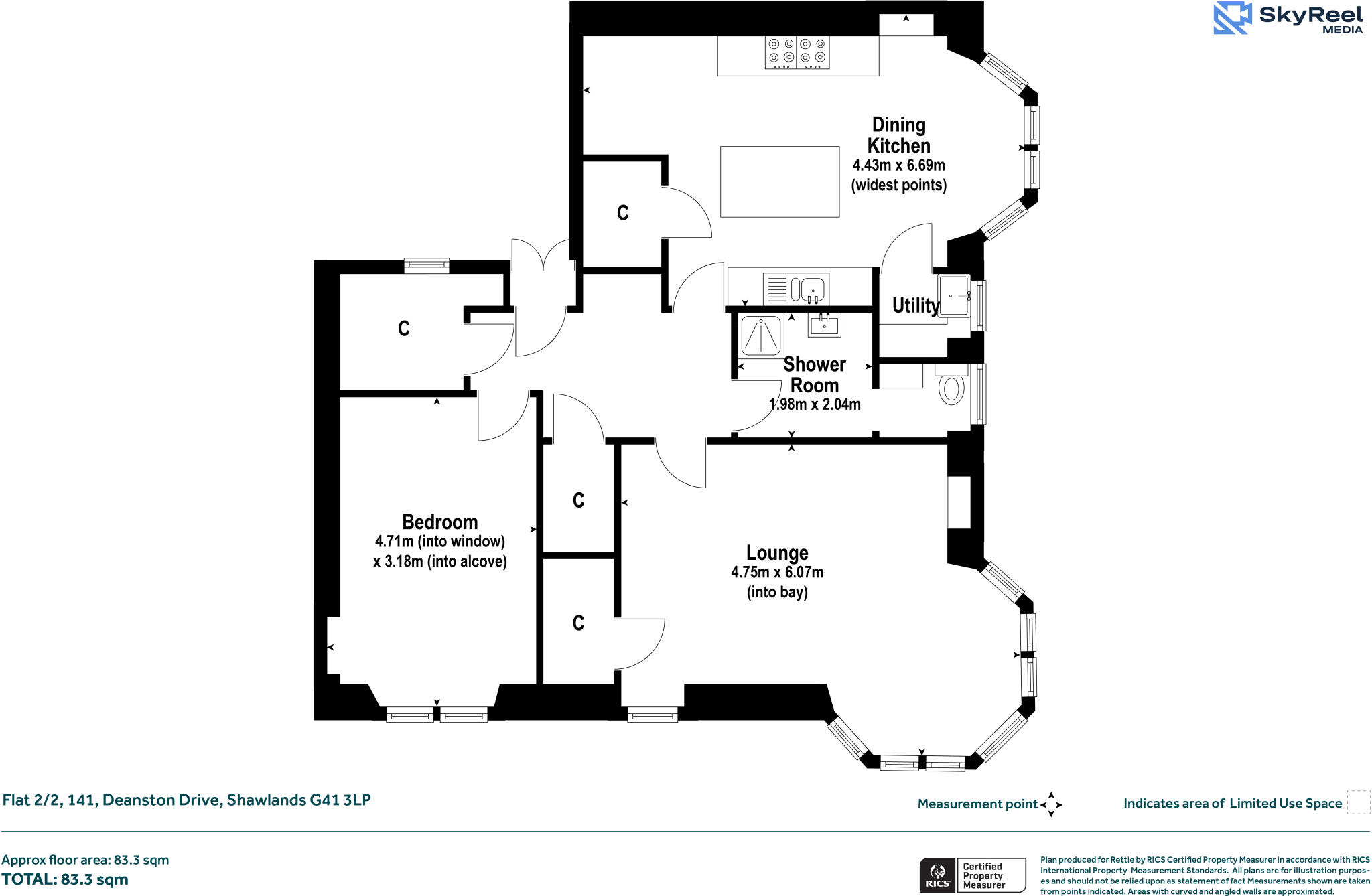
Large one-bedroom apartment approx. 896 sq ft
Bright, newly renovated and surprisingly spacious, this one-bedroom second-floor flat blends original Victorian character with contemporary finishes. High ceilings and dual bay windows create a light, airy living space and a generous dining kitchen ideal for entertaining or home working.
The walk-in condition means immediate occupation with minimal fuss: newly decorated in neutral tones, double glazing and gas central heating are in place, plus generous built-in storage and a large utility cupboard. The property sits in a well-kept red sandstone block with secure door entry and an attractive tiled communal close.
Located on Deanston Drive, the flat sits close to Queens Park and Shawlands’ wide array of cafes, shops and transport links, offering everyday convenience and lifestyle appeal. Note the property lies in a very deprived area statistically and is on the second floor with no lift access; there is no specific parking provided.
At around 896 sq ft, this unusually large one-bedroom apartment offers scope for comfortable long-term living or a lettable home for investors. EPC rating C and affordable council tax band add to the practical benefits of ownership.
1 bedroom flat for sale in 1/3, 113 Kilmarnock Road, Glasgow, Glasgow City, G41 — £170,000 • 1 bed • 1 bath • 797 ft²
1 bedroom apartment for sale in Bellwood Street, Shawlands, Glasgow, G41 — £190,000 • 1 bed • 1 bath • 839 ft²
1 bedroom flat for sale in 37 Regwood Street, Flat 2/4. Shawlands, Glasgow, G41 3JN, G41 — £189,000 • 1 bed • 1 bath • 657 ft²
1 bedroom apartment for sale in Tassie Street, Shawlands, Glasgow, G41 — £180,000 • 1 bed • 1 bath • 698 ft²
1 bedroom apartment for sale in Strathyre Street, Shawlands, Glasgow, G41 — £190,000 • 1 bed • 1 bath • 767 ft²
1 bedroom apartment for sale in Kilmarnock Road, Shawlands, Glasgow, G43 — £170,000 • 1 bed • 1 bath • 674 ft²






















































































