New combi boiler, serviced annually
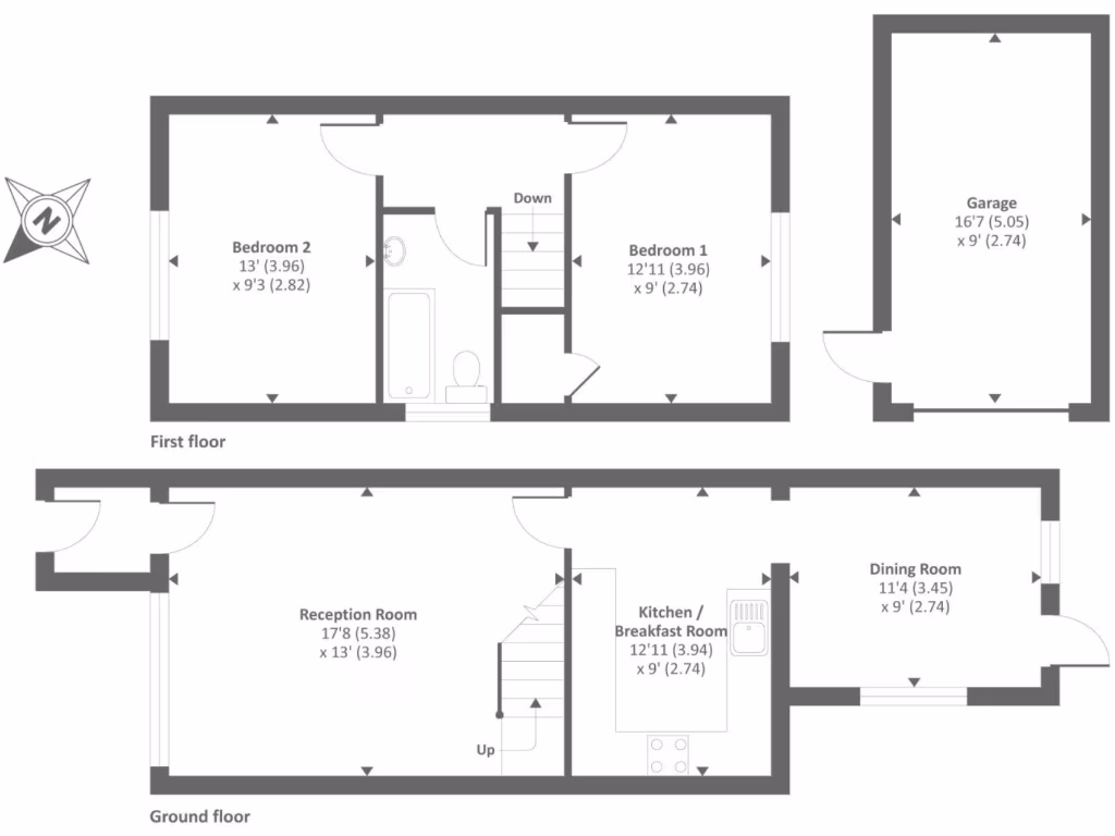
This well-presented two-bedroom semi in a quiet cul-de-sac on the popular Woosehill development offers a straightforward move for first-time buyers or downsizers. The layout is sensible: porch, spacious living room, separate dining room, kitchen, two double bedrooms and a family bathroom. A boarded loft adds storage and the rear garage and driveway provide private parking.
Practical recent works reduce immediate maintenance costs: a new combi boiler (serviced annually), modernised electrical system and a replaced roof over the ground-floor dining-room extension. The home benefits from fast broadband, average mobile signal and very low local crime, supporting comfortable day-to-day living and home working.
Externally the property has small but neatly kept front and rear gardens with gated side access. The rear garage is accessed via the driveway, which is convenient but the plot itself is modest in size. There is a single family bathroom only, and the overall floor area is average (approximately 684 sq ft), so space-conscious buyers should consider layout versus lifestyle needs.
Location is a genuine strength: easy walking access to local shops, Morrisons, doctors and community facilities, plus multiple well-rated schools nearby. Wokingham town centre and the mainline station are within about two miles, with regular buses and direct rail links to London and Reading, making commuting feasible while keeping suburban convenience.
2 bedroom semi-detached house for sale in Mars Close, Wokingham, Berkshire, RG41 — £435,000 • 2 bed • 1 bath • 842 ft²
3 bedroom semi-detached house for sale in Trent Close, Wokingham, RG41 — £450,000 • 3 bed • 1 bath • 832 ft²
2 bedroom semi-detached house for sale in Opal Way, Wokingham, RG41 — £425,000 • 2 bed • 1 bath • 872 ft²
2 bedroom semi-detached house for sale in Diamond Way, Wokingham, Berkshire, RG41 — £400,000 • 2 bed • 1 bath • 610 ft²
3 bedroom end of terrace house for sale in Diamond Way, Wokingham, Berkshire, RG41 — £465,000 • 3 bed • 1 bath • 695 ft²
4 bedroom link detached house for sale in Woosehill Lane, Wokingham, Berkshire, RG41 — £550,000 • 4 bed • 1 bath • 1178 ft²


















































