Spacious 3-bed chalet with ground-floor bedroom and large garden, walking distance to Pennington village..
Large corner plot with landscaped gardens
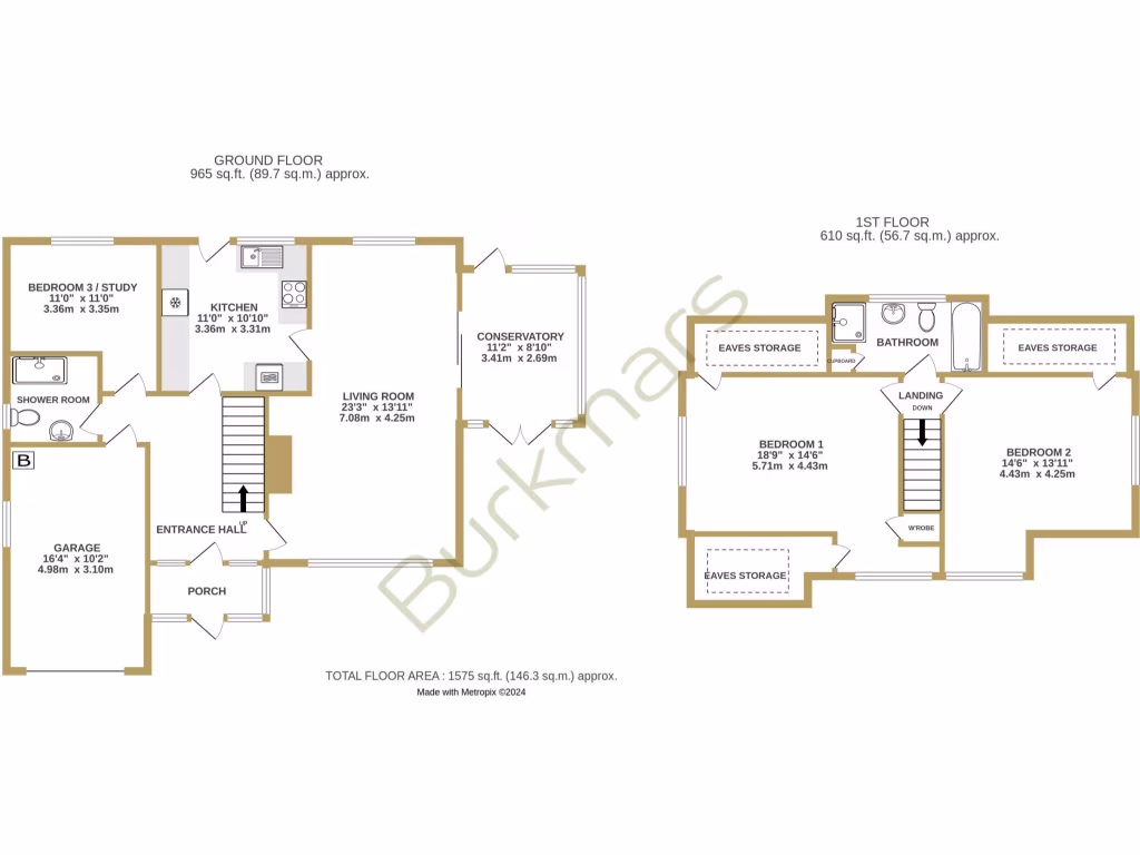
This spacious three-bedroom chalet-style detached house sits on a large corner plot in Pennington, a short walk from village amenities and one mile from Lymington High Street. The layout is versatile: a ground-floor bedroom and shower room provide single-storey convenience, while two large first-floor bedrooms share a modern bathroom. An integral garage and driveway offer practical parking and storage.
Light fills the through living/dining room through a double aspect and patio doors that open into a sizeable conservatory overlooking the landscaped garden. The kitchen includes fitted cabinets and integrated appliances. The property’s 1.5-storey design, generous square footage (approximately 1,575 sq ft) and corner plot create potential for modest updating or reconfiguration to suit changing needs.
Practical positives include freehold tenure, no flood risk, fast broadband, low crime and proximity to good primary and secondary schools. Notable considerations are above-average council tax, some dated windows and standard ceiling heights throughout; buyers wanting fully modern finishes should expect some refurbishment. The property sits in an ageing, communal-retirement classified neighbourhood, which may appeal to downsizers but will influence local demographic character.
3 bedroom end of terrace house for sale in Grafton Gardens, Pennington, Lymington, Hampshire, SO41 — £495,000 • 3 bed • 1 bath • 1200 ft²
4 bedroom detached house for sale in Haglane Copse, Pennington, Lymington, SO41 — £695,000 • 4 bed • 2 bath • 1392 ft²
4 bedroom detached house for sale in Ravenscourt Road, Lymington, SO41 — £1,095,000 • 4 bed • 2 bath • 2239 ft²
3 bedroom detached house for sale in Newenham Road, Lymington, Hampshire, SO41 — £840,000 • 3 bed • 1 bath • 1587 ft²
4 bedroom detached house for sale in South Street, Pennington, Lymington, SO41 — £800,000 • 4 bed • 3 bath • 2188 ft²
3 bedroom detached house for sale in Melbury Close, Lymington, Hampshire, SO41 — £565,000 • 3 bed • 1 bath • 1534 ft²


























































































































