SL6 8LH - 4 bed riverside modern detached in Court Road, SL6 8LH

View on Property Piper

4 bedroom detached house for sale in Court Road, Maidenhead, SL6

Summary - Estancia, Court Road SL6 8LH

4 bed 3 bath Detached

Spacious family home with private garden and gated parking near stations.
Large, light-filled living area with high vaulted ceiling
Set on one of Maidenhead Riverside’s most exclusive roads, this newly renovated detached house offers an exceptionally bright and spacious home for families who value space and convenience. The striking vaulted living area and large windows flood the interior with light, while stylish refitted bathrooms and immaculate presentation deliver ready-to-move-in comfort.

Outside, the private west-facing garden and raised sun deck create an ideal entertaining spot, complemented by a gated driveway with parking for multiple cars. Location is a strong asset: excellent local schools (state and independent), riverside walks and Boulter’s Lock nearby, plus Maidenhead and Taplow stations just a short drive for Elizabeth Line connections.

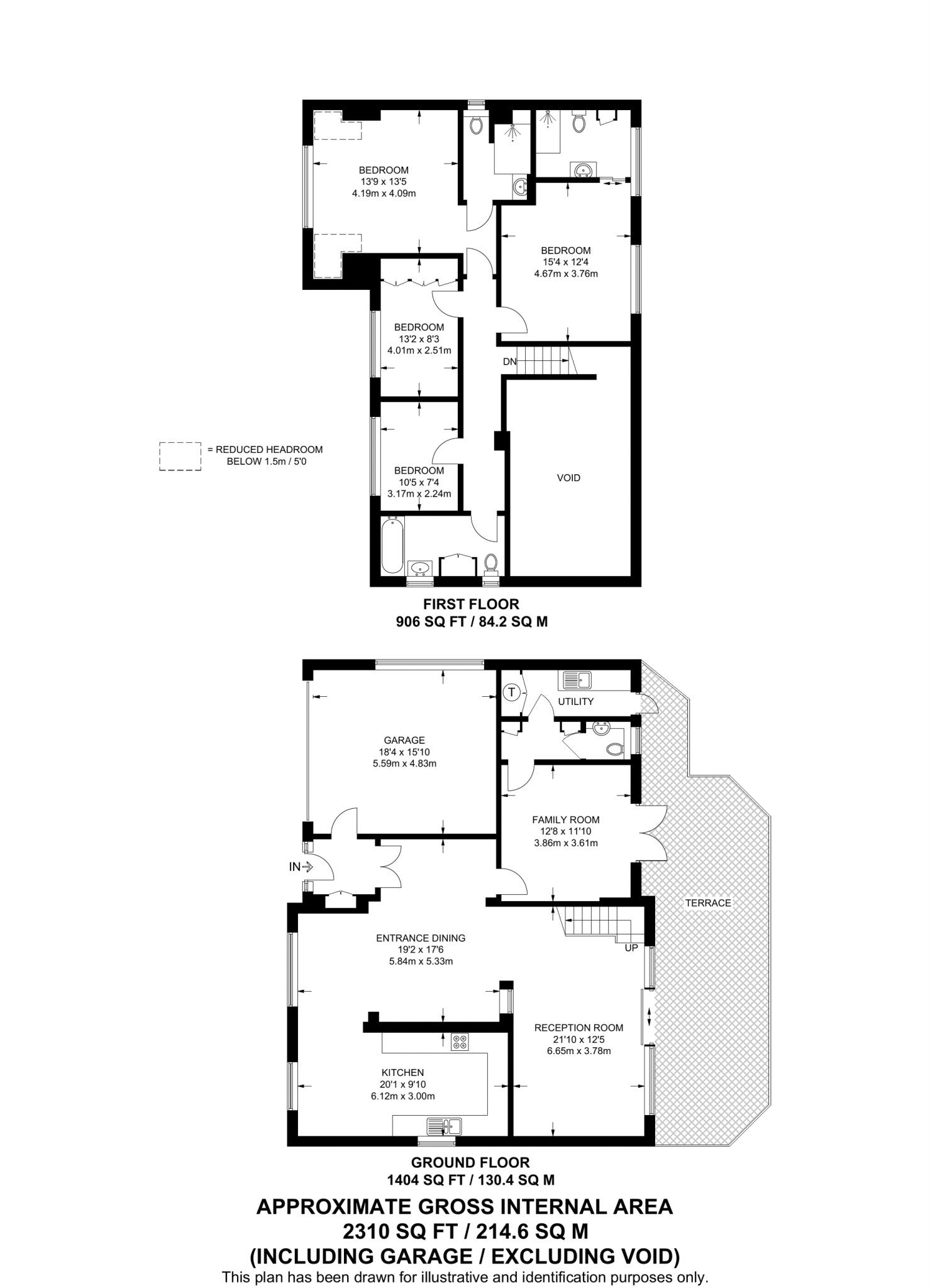
Practical considerations are set out plainly. The property was constructed in the late 1960s–70s and uses warm-air gas heating; the cavity walls are presumed uninsulated, which may affect energy performance. There is a high flooding risk to note for insurance and resilience planning. Planning scope exists to remodel the ground floor into a guest annexe and to extend over the vaulted area on the first floor, subject to usual consents.

Overall, this large four-bedroom freehold home will suit families seeking a stylish riverside residence with generous outdoor space and good transport links, while buyers should budget for long-term energy improvements and factor flood-risk mitigation into ownership plans.

Property Details

Image Descriptions

Floorplan Description

Rooms

Textual Property Features

Target Audience

AI Tags

Detected Visual Features

EPC Details

Nearby Schools

Nearest Bars And Restaurants

,,,,}

Nearest General Shops

,,}

Nearest Grocery shops

,,}

Nearest Supermarkets

,,}

Nearest Religious buildings

,,}

Nearest Medical buildings

,,,}

Nearest Airports

}

Nearest Leisure Facilities

,,,,}

Nearest Tourist attractions

,,}

Nearest Train stations

,,,,}

Nearest Bus stations and stops

,,,,}

Nearest Hotels

,,}

Tags

Local Market Stats

AirBnB Data

Similar Properties

Meta

High Res Images

Compatible Images

Low res Images

Thumbnails

Raw Images

High Res Floorplan Images

Compatible Floorplan Images

Low res Floorplan Images

FloorplanImages Thumbnail

Raw Floorplan Images