**Standout Features:**
- Impressive ground floor apartment in a Grade II listed building
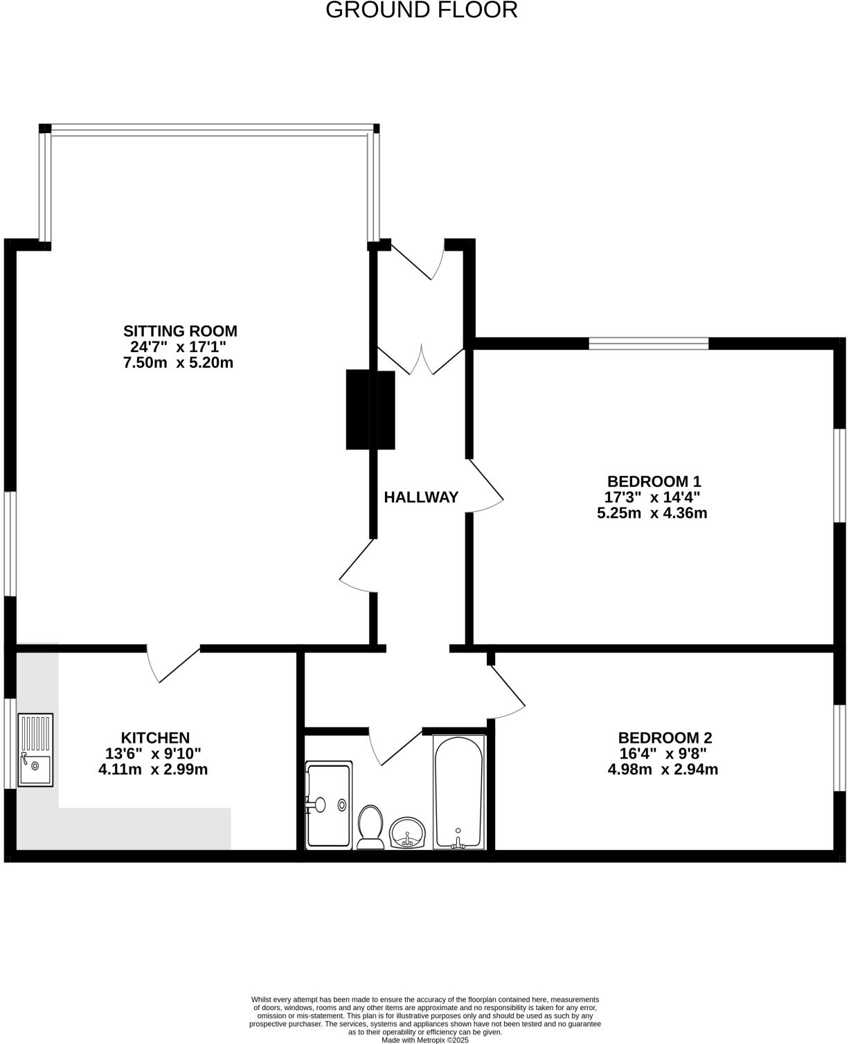
- Large living/dining room and spacious bedrooms
- Private entrance and gas central heating
- Communal gardens and residents' parking
- Easy access to train station and nearby countryside
- Leasehold with 987 years remaining; ground rent of £2,674.57 per year
- Close to highly-rated schools
Enjoy the charm of Georgian architecture in this stunning ground floor apartment, boasting 960 sq ft of beautifully presented living space. Featuring a private entrance, this home includes a large living/dining area filled with natural light, a modern re-fitted kitchen, and two generous double bedrooms. Surrounded by lovely communal gardens, you'll appreciate the tranquility of open outdoor spaces while still being minutes from the train station, perfect for commuters seeking convenience.
Ideal for families or first-time buyers, this property is located in a vibrant community with a selection of good schools nearby. The council tax is very affordable, making this home even more attractive. However, be aware of the above-average crime rate in the area and the expensive ground rent. With its impressive presentation and ideal location, this exceptional apartment is a must-see. Don’t miss your chance to own a piece of history – schedule a viewing today!
2 bedroom apartment for sale in Walford House, Walford Cross, Taunton, TA2 — £210,000 • 2 bed • 1 bath • 811 ft²
1 bedroom apartment for sale in Kingston Road, Taunton, TA2 — £130,000 • 1 bed • 1 bath • 620 ft²
1 bedroom flat for sale in Heatherton Park, Bradford On Tone, TA4 — £170,000 • 1 bed • 1 bath • 753 ft²
1 bedroom apartment for sale in Heatherton Park House, Bradford On Tone, TA4 — £175,000 • 1 bed • 1 bath • 833 ft²
2 bedroom apartment for sale in Walford House, Walford Cross, Taunton, Somerset., TA2 — £250,000 • 2 bed • 1 bath • 1668 ft²
2 bedroom flat for sale in St. Josephs Field, Taunton, TA1 — £270,000 • 2 bed • 2 bath • 1129 ft²


















































































