Spacious plot with garage and peaceful field views near the coast.
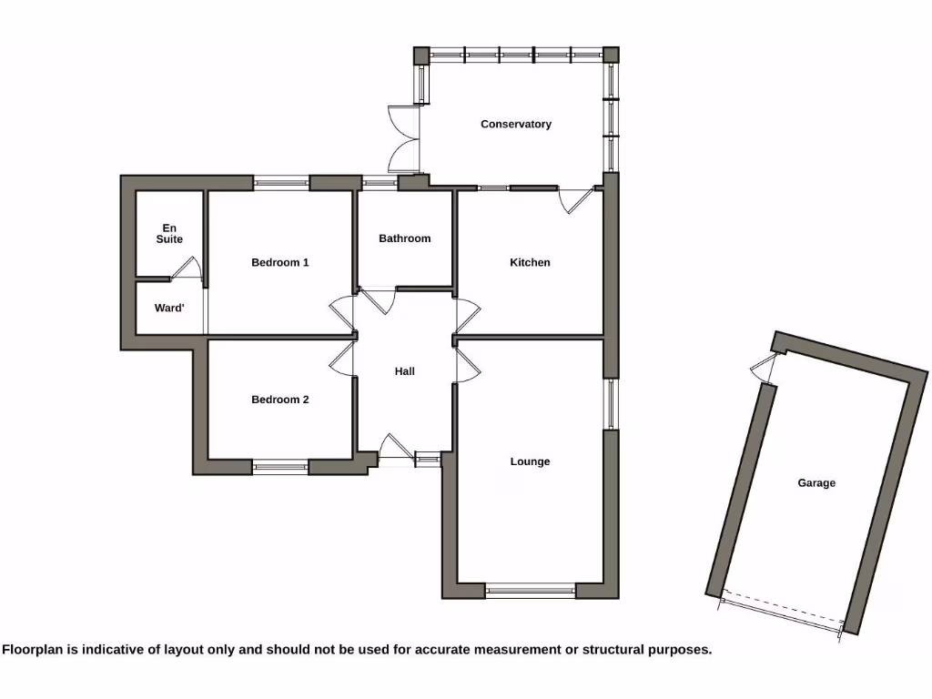
Detached two-bedroom single-floor bungalow with conservatory
Set on a generous plot with open field views, this detached two-bedroom bungalow offers single-floor living and comfortable, well-proportioned rooms. A bright lounge faces the countryside, while a conservatory and kitchen/diner create a pleasant flow to the rear garden — useful for easy outdoor access and relaxed entertaining.
The principal bedroom includes a walk-in wardrobe and en-suite, giving privacy and practical storage. The garage, gravel driveway with parking for several cars, and mains gas central heating add everyday convenience. Built around 1996–2002 and double glazed, the property is generally well maintained and ready for immediate occupancy.
Important considerations: the local area shows high crime levels and marked socioeconomic deprivation, and broadband speeds are slow — factors that will matter to some buyers. The house presents straightforward opportunities for cosmetic updating rather than major structural work, making it suitable for someone seeking a low-step move with scope to personalise.
This home will suit downsizers wanting a peaceful, single-level property with countryside outlooks and outside space, or buyers seeking a rental/holiday footprint in a coastal village location. Viewing is recommended to appreciate the plot size, layout and practical appeal, and to assess local services and transport in person.
2 bedroom bungalow for sale in Hurdman Way, Ingoldmells, PE25 — £169,950 • 2 bed • 1 bath • 854 ft²
2 bedroom detached bungalow for sale in Wainfleet Road, Irby-In-The-Marsh, Skegness, PE24 — £230,000 • 2 bed • 1 bath • 797 ft²
2 bedroom bungalow for sale in Parkinsons Way, Trusthorpe, Mablethorpe, Lincolnshire, LN12 — £250,000 • 2 bed • 1 bath • 851 ft²
3 bedroom detached bungalow for sale in Hides Close, Ingoldmells, PE25 — £290,000 • 3 bed • 2 bath • 840 ft²
3 bedroom bungalow for sale in Elizabeth Crescent, Ingoldmells, Skegness, Lincolnshire, PE25 — £230,000 • 3 bed • 1 bath
2 bedroom detached bungalow for sale in Elmwood Drive, Skegness, PE25 — £195,000 • 2 bed • 1 bath • 831 ft²


































































































































