Ready family home with double garage and generous garden in popular Scartho Top.
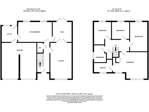
Four double bedrooms including en-suite to principal bedroom
Two reception rooms plus kitchen-diner and separate utility
Integral double garage and double-width block-paved driveway
Enclosed rear garden with patio; good outdoor entertaining space
Built 2003–2006; modern construction with double glazing
Chain free sale — available without onward chain
No flood risk; very low local crime and fast broadband
Some nearby primary schools rated 'requires improvement' — check reports
A spacious four-bedroom detached home in Scartho Top, arranged over two floors and built in the mid-2000s. The house benefits from two reception rooms, a kitchen-diner and a useful utility room, making daily family life straightforward. The principal bedroom includes an ensuite and three further bedrooms share a family bathroom.
Outside there is a double-width block-paved driveway leading to an integral double garage, plus a well-kept, enclosed rear garden with patio — practical for parking and outdoor family use. The property is chain free and sits in a low-crime, very affluent neighbourhood with excellent mobile and fast broadband speeds.
This is a comfortable suburban home for buyers wanting ready-to-live accommodation with scope to modernise to personal taste. Local schooling includes several good secondary schools nearby, though some local primaries are rated as requiring improvement — purchasers with school-age children should check current Ofsted reports. Council tax band is moderate and there is no reported flood risk.
4 bedroom detached house for sale in Finsbury Drive, Scartho Top, DN33 — £235,000 • 4 bed • 2 bath • 1206 ft²
4 bedroom detached house for sale in Rinovia Drive, Scartho Top, DN33 — £260,000 • 4 bed • 2 bath • 1095 ft²
4 bedroom detached house for sale in Rinovia Drive, Scartho, DN33 — £270,000 • 4 bed • 2 bath • 1360 ft²
4 bedroom detached house for sale in Amberley Close, Scartho Top, Grimsby, Lincolnshire, DN33 — £235,000 • 4 bed • 2 bath • 1158 ft²
4 bedroom detached house for sale in Heimdall Road, Scartho Top, DN33 — £244,000 • 4 bed • 2 bath • 1263 ft²
4 bedroom detached house for sale in Hampstead Park, Scartho Top, Grimsby, DN33 — £249,950 • 4 bed • 2 bath


























































































