Large family home with countryside outlook and garage parking.
Five bedrooms plus dedicated home office for working from home
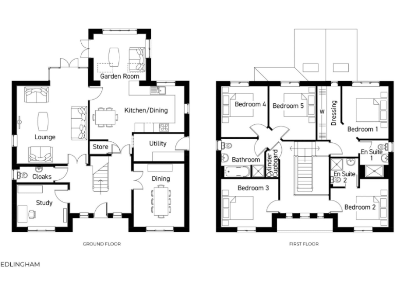
This substantial five-bedroom detached home sits on a large plot on London Road, offering generous family accommodation with a detached double garage and block-paved driveway. The layout centres on an open-plan kitchen/dining/family area with a garden room and French doors, plus a separate lounge, dining room/snug and a dedicated home office — useful for home working or study.
Upstairs the property is arranged for family flexibility: a master suite with dressing area and fitted Hammonds wardrobes and bedroom two described as having an ensuite. A family bathroom is included, but the listing’s headline bathroom count conflicts with the descriptive floorplan — buyers should verify the exact number and layout of bathrooms and ensuites.
Practical features include a utility room with garden access and plenty of storage. The development sits on the edge of Retford with countryside views, fast broadband and good rail links, and several local primary and secondary schools rated Good — making this well suited to growing families or professionals seeking space and connectivity.
Note the tenure is recorded as unknown and some images may be illustrative of a similar property. Confirm specification, fixtures, and final finish before exchange. Part-exchange is offered which can simplify moving if you need a guaranteed buyer.
5 bedroom detached house for sale in London Road,
Retford,
DN22 7JE, DN22 — £570,000 • 5 bed • 1 bath • 1425 ft²
4 bedroom detached house for sale in London Road,
Retford,
DN22 7JE, DN22 — £387,000 • 4 bed • 1 bath • 1336 ft²
4 bedroom detached house for sale in London Road,
Retford,
DN22 7JE, DN22 — £456,000 • 4 bed • 1 bath • 1284 ft²
5 bedroom detached house for sale in Grosvenor Close, Retford, DN22 — £300,000 • 5 bed • 2 bath • 1271 ft²
5 bedroom detached house for sale in Number 1, Farrier Way, Retford, Nottinghamshire, DN22 6UP, DN22 — £550,000 • 5 bed • 3 bath • 1880 ft²
4 bedroom detached house for sale in London Road,
Retford,
DN22 7JE, DN22 — £356,000 • 4 bed • 1 bath • 827 ft²






















































