Contemporary two-bed first-floor flat with parking permit — strong rental potential in central Retford.
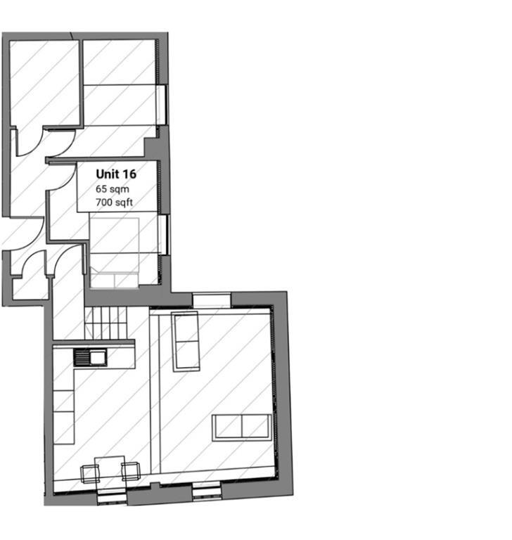
Two-bedroom first-floor apartment, approximately 700 sq ft
This modern two-bedroom first-floor apartment in Chapelgate offers a compact, city-centre investment with clear rental potential. The 700 sq ft layout, high-quality fitted kitchen with integrated appliances, and contemporary bathroom suit tenants seeking low-maintenance town living. One annual parking permit for Chapelgate car park and six months’ free high-speed broadband are included, adding immediate practical value.
The building is new (post-2012) with double glazing and a 999-year lease, reducing long-term leasehold risk. Service charges run at about £95 per month (£1,140 annually) and ground rent is nominal (£1 per year) — budget for ongoing communal costs. Heating is electric room heaters rather than gas central heating; buyers should note potentially higher running costs.
Positioned moments from Retford’s market square, shops, eateries, bars and regular bus routes, the apartment suits investors targeting strong town-centre demand. The advertised gross rental yield is attractive, and the compact, contemporary finish makes re-letting straightforward. However, the local area records high crime and very high deprivation levels — these factors can affect tenant mix, insurance and resale values and should be factored into investment calculations.
Viewings are recommended to assess condition and finish. As with any purchase, have services and appliances tested and consider a survey to confirm suitability for your investment or occupancy plans.
2 bedroom apartment for sale in Chapelgate, Retford, DN22 — £129,995 • 2 bed • 1 bath • 592 ft²
2 bedroom apartment for sale in Chapelgate, Retford, DN22 — £125,000 • 2 bed • 1 bath • 603 ft²
2 bedroom apartment for sale in Chapelgate, Retford, DN22 — £115,000 • 2 bed • 1 bath • 645 ft²
2 bedroom apartment for sale in Chapelgate, Retford, DN22 — £115,000 • 2 bed • 1 bath • 420 ft²
1 bedroom apartment for sale in Chapelgate, Retford, DN22 — £110,000 • 1 bed • 1 bath • 603 ft²
2 bedroom apartment for sale in 4 Chapelgate, Retford, DN22 — £125,000 • 2 bed • 1 bath • 635 ft²


































