E7 9PT - 5 bedroom terraced house for sale in Upton Lane, Forest Gat…

View on Property Piper

5 bedroom terraced house for sale in Upton Lane, Forest Gate, E7

Summary - 337, UPTON LANE E7 9PT

5 bed 3 bath Terraced

**Standout Features:**
- Spacious five-bedroom Victorian terraced house with study and outbuilding
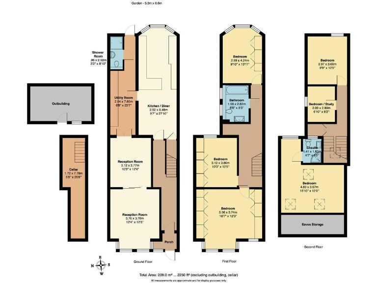
- Generous living space spread over three floors (2,250 sq ft)
- High ceilings, ornate Victorian detailing, and modern kitchen/diner
- Private driveway and garden with views over West Ham Park
- Proximity to Plaistow and Forest Gate stations, offering excellent transport links
- Close to quality schools with outstanding Ofsted ratings
- Currently in good decorative order with potential for future personalization

**Overall Summary:**
Discover a beautifully proportioned five-bedroom Victorian terraced house in the vibrant neighborhood of Upton Lane, Forest Gate. Spanning three floors, this freehold property features three inviting reception rooms, a spacious kitchen/diner, and a dedicated study, ensuring ample room for family gatherings and remote work. Each bedroom offers a sanctuary for relaxation while two well-appointed bathrooms and a utility area add practical convenience.

Step outside to find a private driveway and a garden complete with a versatile outbuilding, perfect for hobbies or extra storage, all while enjoying scenic views over West Ham Park. Commuters will appreciate the short distance to Plaistow and Forest Gate stations for quick access to Central London. This property balances urban living with suburban tranquility and boasts a strong sense of community nearby.

Families will love the abundance of excellent local schools rated 'Outstanding' and 'Good.' With the competitive asking price of £900,000, this home represents an exceptional opportunity in a sought-after area. Don’t miss out on the chance to make this warm, character-filled home the backdrop for your family's future memories!

Property Details

Brochure Descriptions

Image Descriptions

Floorplan Description

Rooms

Textual Property Features

Detected Visual Features

Nearby Schools

Nearest Bars And Restaurants

,,,,}

Nearest General Shops

,,}

Nearest Grocery shops

,,}

Nearest Supermarkets

,,}

Nearest Religious buildings

,,}

Nearest Medical buildings

,,,}

Nearest Airports

,}

Nearest Leisure Facilities

,,,,}

Nearest Tourist attractions

,,}

Nearest Train stations

,,,,}

Nearest Bus stations and stops

,,,,}

Nearest Hotels

,,}

Tags

Local Market Stats

AirBnB Data

Similar Properties

Meta

High Res Images

Compatible Images

Low res Images

Thumbnails

Raw Images

High Res Floorplan Images

Compatible Floorplan Images

Low res Floorplan Images

FloorplanImages Thumbnail

Raw Floorplan Images