FK1 1UL - 2 bedroom flat for sale in Creteil Court, Falkirk, FK1

View on Property Piper

2 bedroom flat for sale in Creteil Court, Falkirk, FK1

Summary - Creteil Court, Falkirk, FK1 FK1 1UL

2 bed 1 bath Flat

**Standout Features:**
- Modern first-floor flat in a low-rise apartment building
- Two flexible bedrooms with fitted wardrobes
- Spacious, dining-sized kitchen with appliances included
- Bright, newly refitted shower room with walk-in shower
- Secure entry system and residents parking
- Stunning views over historic Callander Park
- Excellent mobile and fast broadband connectivity

**Potential Concerns:**
- Small overall size (581 sq ft), may not suit larger families
- Location in a deprived area, which might affect the neighborhood experience

Experience comfortable living in this charming two-bedroom flat ideally situated for access to town center amenities and commuter options to Glasgow and Edinburgh. The property boasts a lovely sitting room with Paris balcony doors that flood the space with natural light, offering picturesque views across lush Callander Park. The functional layout includes a dining-sized kitchen equipped with essential appliances, perfect for first-time buyers or investors looking for rental potential.

While the flat is in good condition with tasteful neutral decor, it may appeal best to those comfortable with smaller spaces. Enhanced by gas central heating and double glazing, you’ll enjoy efficiency and warmth year-round. Residents benefit from shared gardens and off-street parking, creating a sense of community.

This property presents an excellent opportunity to own a slice of urban living without breaking the bank, with a competitive price point of £123,000. Don't miss the chance to make it your own!

Property Details

Image Descriptions

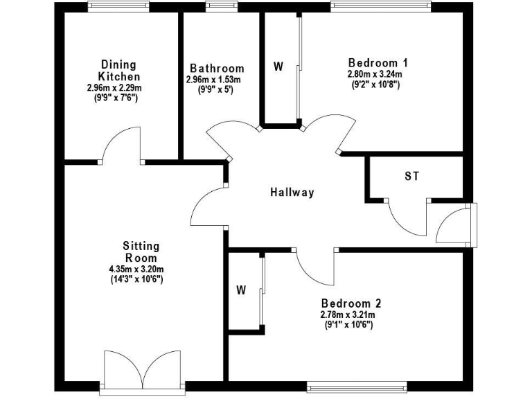
Floorplan Description

Rooms

Textual Property Features

Detected Visual Features

Nearest Bars And Restaurants

,,,,}

Nearest General Shops

,,}

Nearest Grocery shops

,,}

Nearest Supermarkets

,,}

Nearest Religious buildings

,,}

Nearest Medical buildings

,,,}

Nearest Airports

}

Nearest Leisure Facilities

,,,,}

Nearest Tourist attractions

,,}

Nearest Train stations

,,,,}

Nearest Bus stations and stops

,,,,}

Nearest Hotels

,,}

Tags

Local Market Stats

AirBnB Data

Meta

High Res Images

Compatible Images

Low res Images

Thumbnails

Raw Images

High Res Floorplan Images

Compatible Floorplan Images

Low res Floorplan Images

FloorplanImages Thumbnail

Raw Floorplan Images