Spacious four-bedroom terrace with landscaped garden and garage, ideal for growing households.
Four bedrooms with character and high ceilings
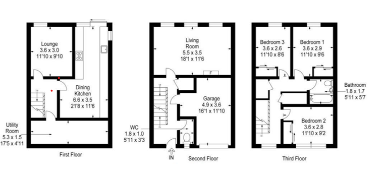
Set within the Oakshaw Conservation Area, this traditional four-bedroom mid-terrace combines period character with modern family living. The ground-floor dining kitchen and living room provide flexible daily space, while a convenient W.C. and two bathrooms suit busy households.
Outside, attractively landscaped gardens and a garage with driveway give private outdoor space and secure parking — a notable benefit for central locations. The property is freehold, presented to a good standard with an EPC rating of C.
Buyers should note the neighbourhood’s local classification as a cosmopolitan student area and the wider area’s designation as very deprived; this can affect local services and long-term resale dynamics. Broadband speeds are reported slow, which may matter for home working or streaming. Overall footprint is compact at approximately 1,031 sq ft, so expect efficient rather than expansive rooms.
This home will suit families seeking period detail and outdoor space close to Paisley town centre and schools, or buyers looking for a character property to modernise further. The layout and gardens offer immediate liveability with scope to update technology and cosmetic finishes to personal taste.
4 bedroom terraced house for sale in Accord Crescent, Paisley, Renfrewshire, PA2 — £260,000 • 4 bed • 2 bath • 1011 ft²
2 bedroom terraced house for sale in Forth Avenue, Paisley, Renfrewshire, PA2 — £82,500 • 2 bed • 1 bath • 932 ft²
4 bedroom detached house for sale in Glenvilla Circle, Paisley, Renfrewshire, PA2 — £330,000 • 4 bed • 2 bath • 1501 ft²
4 bedroom detached house for sale in Donaldswood Park, Paisley, PA2 — £250,000 • 4 bed • 3 bath • 914 ft²
5 bedroom detached house for sale in Morton Avenue, Paisley, Renfrewshire, PA2 — £430,000 • 5 bed • 4 bath • 1609 ft²
4 bedroom detached house for sale in Glenarklet Crescent, Paisley, Renfrewshire, PA2 — £290,000 • 4 bed • 3 bath • 1144 ft²






























































































