Spacious period house with large loft potential and ample parking.
Corner plot with strong street presence and substantial mature gardens
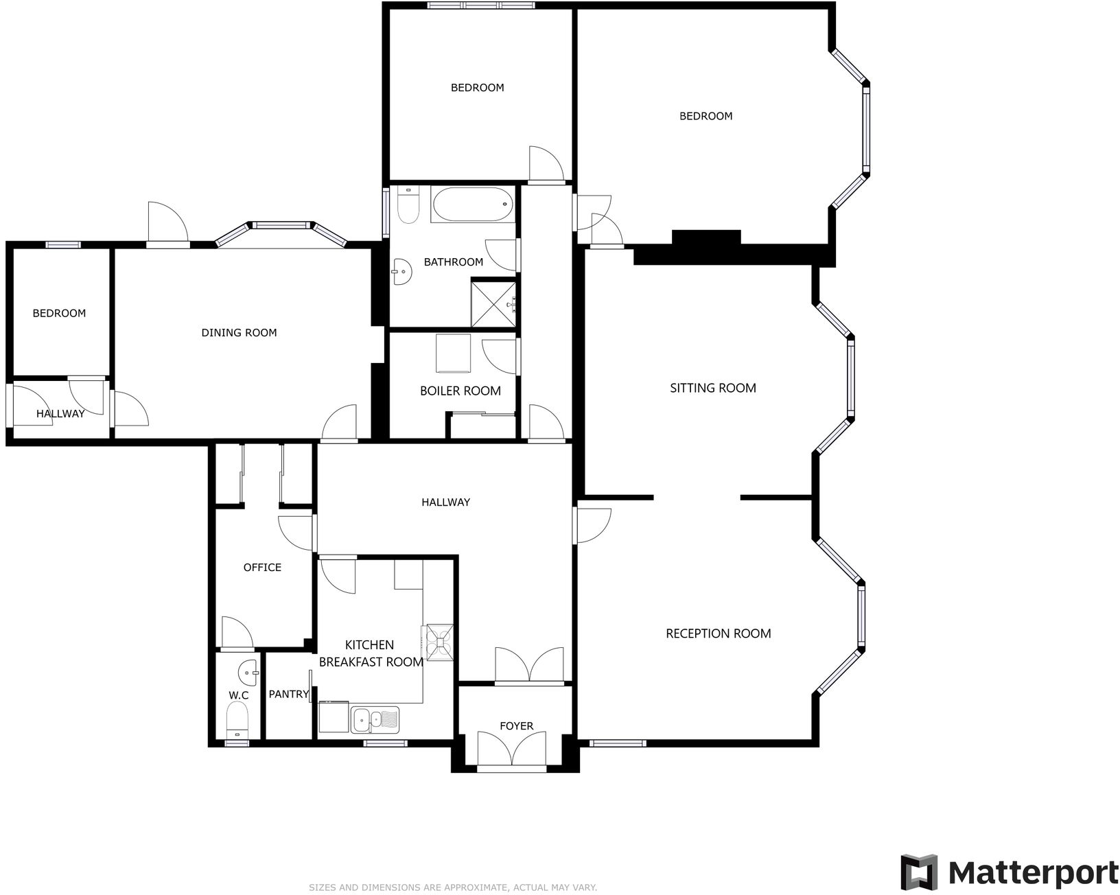
Set on a prominent corner plot in Evington, this distinctive Victorian detached house offers genuinely generous accommodation across a substantial footprint. The ground floor delivers four reception rooms, a kitchen/breakfast room and high ceilings with large bay windows that retain strong period character. Outside there's wide off-street parking, a garage and mature front, side and rear gardens that add privacy and scope for reconfiguration.
Upstairs are three main bedrooms and an exceptional boarded loft currently described as eight rooms. That loft space represents significant scope for conversion to additional living accommodation (subject to planning and building regulations), making the house attractive to owners wanting to create a larger family home or investors seeking added value.
Buyers should note some important practical points: the property has an EPC rating of F and solid brick walls which are likely uninsulated, so improving energy performance will require works. There is a single bathroom for three bedrooms, and any loft conversion or extensions will need the relevant consents. Council tax is described as expensive.
Overall this is a rare, no‑upward‑chain opportunity for a buyer who values period character and lots of space and who is prepared to invest in energy upgrades, possible remodelling and planning-led conversion to unlock the property’s full potential.
3 bedroom detached house for sale in Trueway Road, Evington, Leicester, LE5 — £400,000 • 3 bed • 1 bath • 1783 ft²
4 bedroom detached house for sale in Elmsleigh Avenue, Stoneygate, Leicester, LE2 — £550,000 • 4 bed • 2 bath • 1593 ft²
4 bedroom detached house for sale in Marydene Drive, Leicester, Leicestershire, LE5 — £550,000 • 4 bed • 2 bath • 1900 ft²
3 bedroom detached house for sale in Biggin Hill Road, Evington, LE5 — £425,000 • 3 bed • 2 bath • 1463 ft²
3 bedroom detached house for sale in Letchworth Road, Western Park, Leicester, LE3 — £500,000 • 3 bed • 1 bath
3 bedroom detached house for sale in Church Road, Aylestone, Leicester, LE2 — £297,500 • 3 bed • 1 bath






















































































































