Character-rich coastal home with scope for modernisation and personalisation.
Chain-free handsome period cottage with brick-and-flint elevation
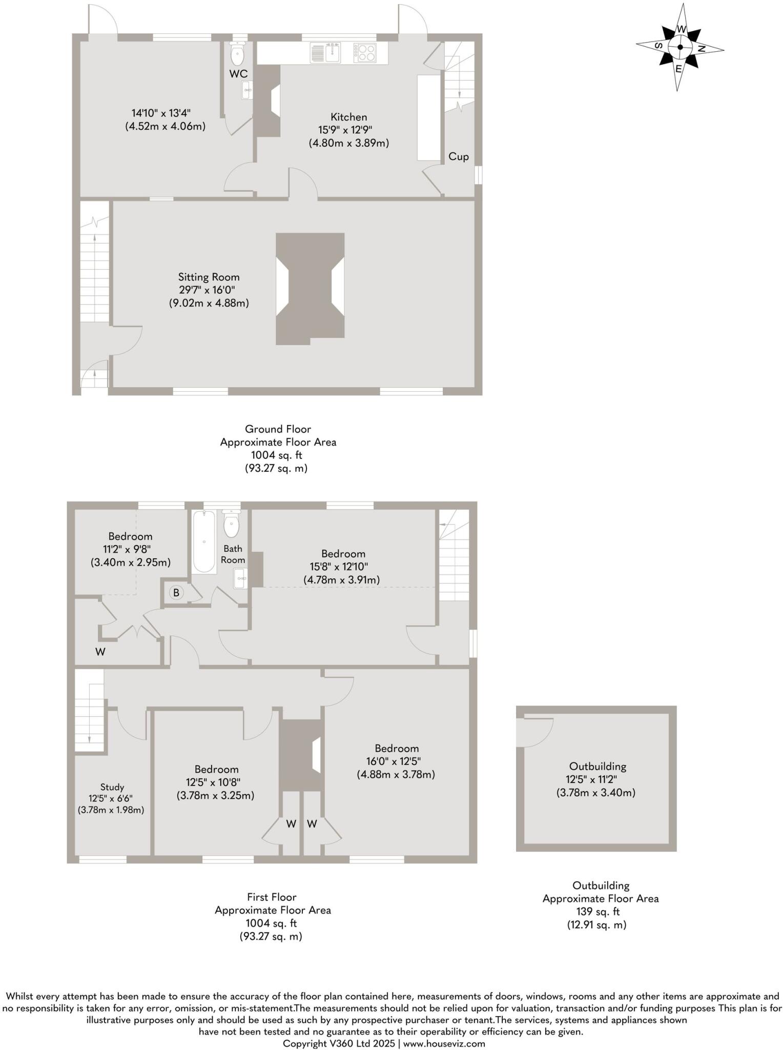
Approximately 2,008 sq ft plus 139 sq ft outbuilding
Four bedrooms, study and two staircases; flexible accommodation
Double-sided fireplace with log burner; strong character features
Requires renovation and energy-efficiency improvements throughout
Electric storage heating; EPC band E and assumed uninsulated walls
Single bathroom only; opportunity to reconfigure or add facilities
Excellent village location near beach, shop, pub and bus links
Chapel Cottage is a substantial, chain-free period home set in the heart of Weybourne, overlooking All Saints Church and minutes from the beach. The property retains strong historic character: exposed beams, brick-and-flint elevations, and a dramatic double-sided fireplace with a log burner provide immediate atmosphere and cosy living. At about 2,008 sq ft with an additional outbuilding, the house offers generous room sizes across two floors.
The layout includes a large sitting room, four bedrooms plus a study and two staircases, giving flexibility for family life or a home office. Services are mains-connected with electric storage heating; the walls are original granite/whinstone with assumed lack of insulation. The property has been in the same family since 1968 and was let for around twenty years, meaning it now requires sympathetic updating throughout to realise its full potential.
Practical considerations are clear: there is a single bathroom, the EPC is band E, heating is electric storage heaters and the fabric likely needs improvement (walls assumed uninsulated). These factors mean renovation and energy-efficiency upgrades will be needed — an opportunity to personalise the cottage and add long-term value. The outbuilding (approx. 139 sq ft) adds useful storage or workspace potential.
Position is a strong selling point for buyers seeking village life with coastal access. Local amenities include a shop/deli, bus stops, and the well-regarded Ship Inn nearby. With low local crime, good mobile signal and average broadband, the cottage suits those wanting a peaceful coastal community base, provided they are prepared for renovation work to modernise heating, insulation and general condition.
2 bedroom detached house for sale in A hidden whimsical gem in the Norfolk countryside, NR25 — £250,000 • 2 bed • 1 bath • 894 ft²
3 bedroom cottage for sale in A stunning brick-and-flint retreat nestled in the heart of the charming coastal village of Weybourne., NR25 — £525,000 • 3 bed • 2 bath • 1496 ft²
2 bedroom terraced house for sale in Chain Free in Weybourne, NR25 — £525,000 • 2 bed • 2 bath • 988 ft²
4 bedroom detached house for sale in Beautifully Renovated Home in Weybourne, NR25 — £575,000 • 4 bed • 2 bath • 1427 ft²
3 bedroom semi-detached house for sale in Holt Road, Weybourne, Holt, NR25 — £525,000 • 3 bed • 2 bath • 1358 ft²
3 bedroom terraced house for sale in Weybourne, Norfolk, NR25 — £399,950 • 3 bed • 1 bath • 859 ft²


















































