Move-in ready single-level home with garden, garage and views for downsizers.
Chain free detached bungalow with modern open-plan living
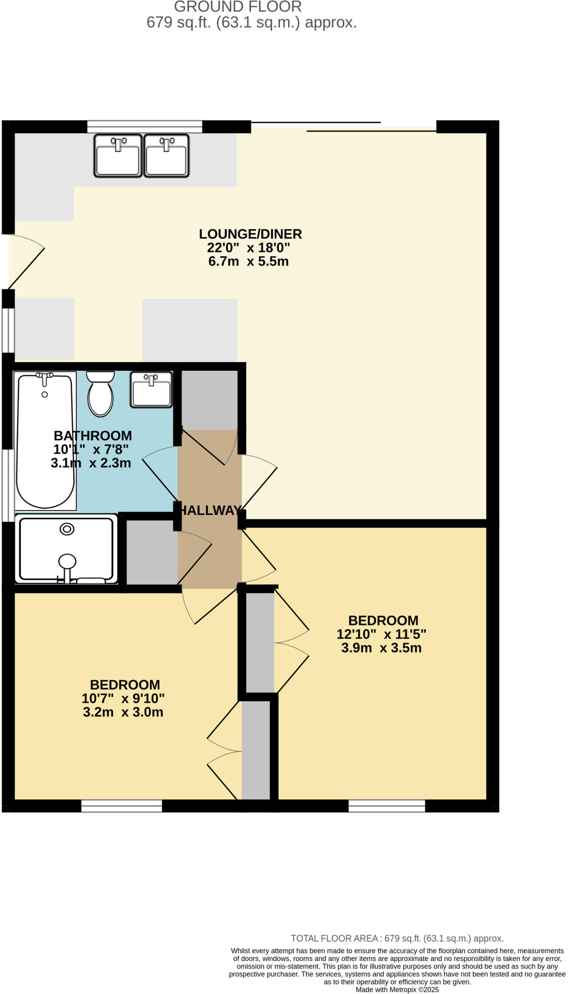
Two double bedrooms and roomy built-in storage cupboards
Refitted shower room; single bathroom only
Garage plus off-street parking for two vehicles
Level rear garden with pond and elevated countryside views
Built 1976–82 using Trusteel Mark 2 steel frame—check lender criteria
Small housing development under construction beyond rear boundary
Mains gas central heating, double glazing, fast broadband and excellent mobile signal
This detached two-bedroom bungalow in Ilfracombe has been comprehensively renovated and is offered chain free, making it a straightforward move for downsizers or anyone seeking single-level living. The heart of the home is a bright open-plan living space with contemporary kitchen, dining and lounge areas and bi-folding/patio doors that bring the rear garden and views into daily use.
The property sits on a decent plot with a level rear garden, pond and pleasant views over nearby green space. There is a garage plus off-street parking for two cars, a useful combination for storage, a car and occasional visitors. Main services are connected; heating is mains gas with boiler and radiators, and windows are double glazed.
Internally the layout is efficient – two double bedrooms, sizeable built-in storage cupboards off the inner hallway and a modern refitted shower room. The overall internal area is modest (c.679 sq ft), so the bungalow will suit buyers wanting manageable accommodation rather than large family living.
A practical note: the house was built in the 1976–82 period using a Trusteel Mark 2 steel frame system. While widely used, some lenders apply specific criteria for this construction type—buyers are advised to check mortgage eligibility early. Also, there is a small housing development being built beyond the rear boundary which may affect outlook and noise during completion.
2 bedroom bungalow for sale in The Shields, Ilfracombe, Devon, EX34 — £260,000 • 2 bed • 1 bath • 791 ft²
2 bedroom bungalow for sale in Channel View, Ilfracombe, Devon, EX34 — £325,000 • 2 bed • 1 bath • 657 ft²
2 bedroom bungalow for sale in Fern Park, Ilfracombe, Devon, EX34 — £265,000 • 2 bed • 1 bath • 816 ft²
2 bedroom terraced bungalow for sale in Heanton Lea, Chivenor, EX31 — £240,000 • 2 bed • 1 bath • 582 ft²
3 bedroom bungalow for sale in Fairfield, Ilfracombe, Devon, EX34 — £420,000 • 3 bed • 1 bath • 1055 ft²
2 bedroom bungalow for sale in Dewberry Drive, Roundswell, Barnstaple, EX31 — £325,000 • 2 bed • 1 bath • 545 ft²






















































