Compact town-centre land with planning potential for housebuilders and local investors.
Freehold urban plot with direct roadside access
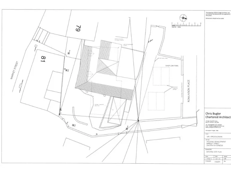
A centrally located development plot in Dalton-in-Furness offering direct roadside access and services already connected. The site sits between Market Street and Rowlinson Place, close to the railway station, bus stops and local shops — useful for residential schemes aimed at commuters or local families.
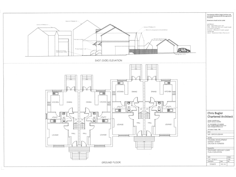
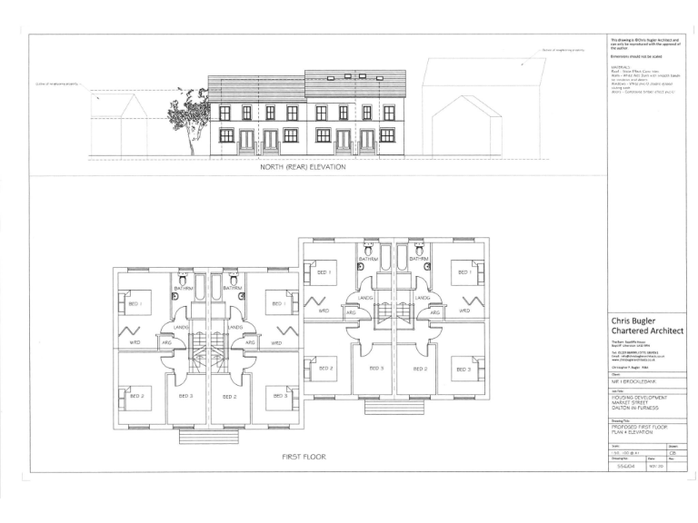
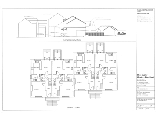
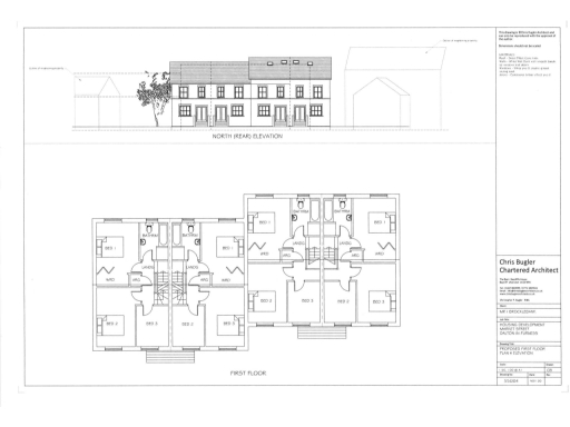
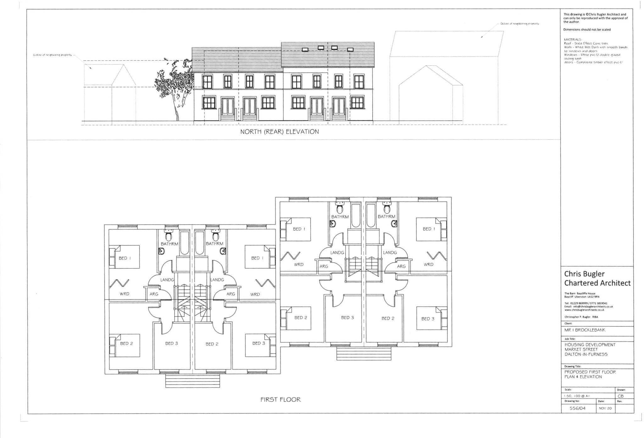
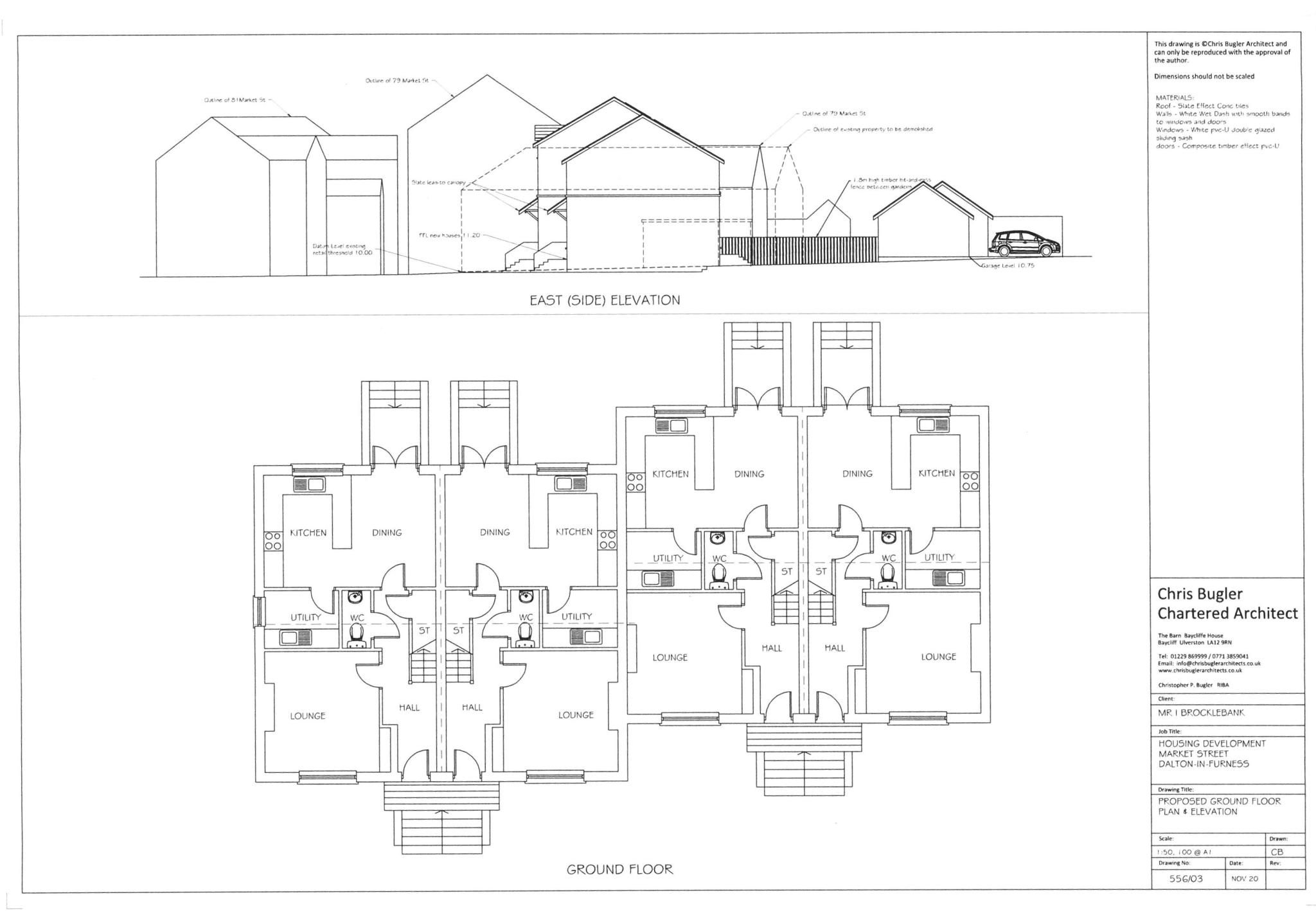
The site previously benefited from planning consent for four townhouses with garages and gardens (Application 2020/0803), which lapsed on 18 August 2024. That consent can be used as a reference but a new application will be required; the property sits within a Conservation Area, so designs will need to respect local planning constraints.
Practical positives include freehold tenure, level ground, existing utilities at the site boundary and excellent mobile and broadband connectivity. The plot is small and predominantly concreted, making it suitable for a compact residential infill scheme or a specialist local-build project.
Buyers should note material considerations: the previous consent has expired, the plot lies in an area with medium flood risk, and the small plot size limits scheme scale. The site is best suited to local builders, small developers or investors prepared to manage planning, flood risk assessment and Conservation Area consultation.
Land for sale in Church Street, Dalton-in-Furness, LA15 — £120,000 • 1 bed • 1 bath
Plot for sale in Daltongate, Ulverston, LA12 — £725,000 • 1 bed • 1 bath
Residential development for sale in Station Approach, Dalton-In-Furness, LA15 — £200,000 • 1 bed • 1 bath
Land for sale in Marsh Street, Barrow In Furness, LA14 — £225,000 • 1 bed • 1 bath
Land for sale in Harrogate Street, Barrow-In-Furness, LA14 — £200,000 • 1 bed • 1 bath
Land for sale in Residential Development Site, Ulverston, LA12 — £1,100,000 • 1 bed • 1 bath














































