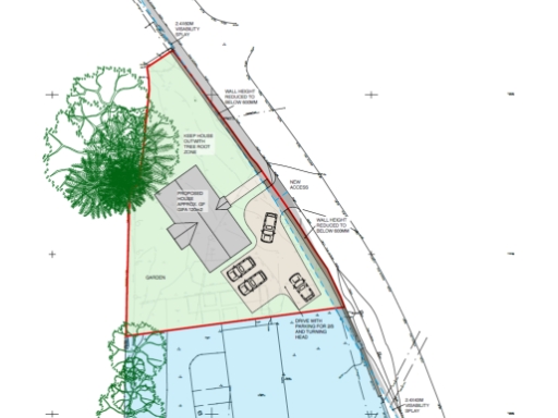
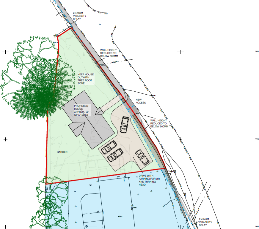
**Standout Features:**
- Large plot measuring approximately 820 sqm (1291 sqft)
- Planning in principle for a detached house
- Stunning countryside views in a desirable hamlet
- Off-street parking available
- Proximity to recreational areas and highly regarded local amenities
This expansive plot in the tranquil hamlet of Peat Inn offers a unique opportunity to build your dream home amid picturesque Fife countryside. With planning in principle already in place for a detached house, you have the freedom to create the perfect sanctuary. Surrounded by stunning farmland, woodlands, and rolling hills, this location is ideal for nature enthusiasts with easy access to walking, cycling, sailing, and golfing—making it perfect for both families and investors.
Located just 6 miles from the vibrant town of St Andrews, home to excellent educational facilities, and 7 miles from Cupar with its bustling market scene, you will enjoy the benefits of rural living without sacrificing convenience. While the plot does require a private development plan, the opportunity to customize your own space in this peaceful setting is unparalleled. Don't miss your chance to invest in this rare countryside gem, available for just £70,000.
Plot for sale in Burnside, Balmullo, St. Andrews, KY16 — £150,000 • 1 bed • 1 bath
Plot for sale in Craigie Hill, Drumoig , St Andrews, KY16 — £225,000 • 6 bed • 3 bath
Plot for sale in Wester Radernie Steading, Peat Inn, Cupar, Fife, KY15 — £195,000 • 1 bed • 1 bath
4 bedroom detached house for sale in Peat Inn, Cupar, Fife, KY15 — £450,000 • 4 bed • 3 bath • 2249 ft²
Plot for sale in Plot, River Terrace, Guardbridge, KY16 — £95,000 • 1 bed • 1 bath
Land for sale in Development Land & Properties, Balmashie, St. Andrews, KY16 — £850,000 • 1 bed • 1 bath • 1719 ft²


























