S81 8EQ - 3 bedroom cottage for sale in High Street, Blyth, Worksop,…

View on Property Piper

3 bedroom cottage for sale in High Street, Blyth, Worksop, S81

Summary - Archway House, High Street, Blyth S81 8EQ

3 bed 1 bath Cottage

**Standout Features:**
- Charming Grade II listed 3-bedroom cottage built in the 1700s.
- Spacious and character-filled rooms, including a cozy sitting room and an extended modern kitchen.
- Detached garage with additional off-road parking and a quaint rear courtyard garden.
- Located in an idyllic village setting with access to local amenities.

**Potential Concerns:**
- Listed status may present renovation challenges.
- Average mobile signal coverage and outdoor space is modest.
- High crime rate in the area may be a consideration.

**Summary:**
Nestled in a picturesque village, Archway House is a delightful Grade II listed cottage offering 3 bedrooms and charming period features. This home showcases a traditional exterior with solid brick walls and double-glazed windows, promising warmth and character. Inside, discover a spacious sitting room enriched with exposed beams and a cozy fireplace, complemented by an extended kitchen that blends modern convenience with classic design elements. The property benefits from a detached garage, off-road parking, and a modest garden, perfect for relaxed outdoor living.

While the home carries a Grade II listing, which may impact renovation plans, the idyllic setting, fast broadband availability, and proximity to local amenities make this property a must-see. With a motivated seller and no onward chain, seize the opportunity to make this charming cottage your own. Don't miss out—viewings are essential!

Property Details

Brochure Descriptions

Image Descriptions

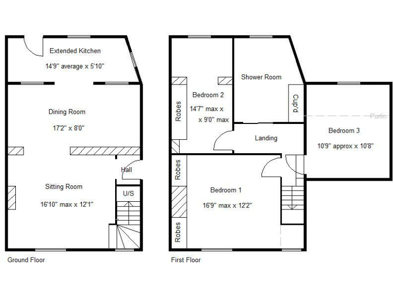
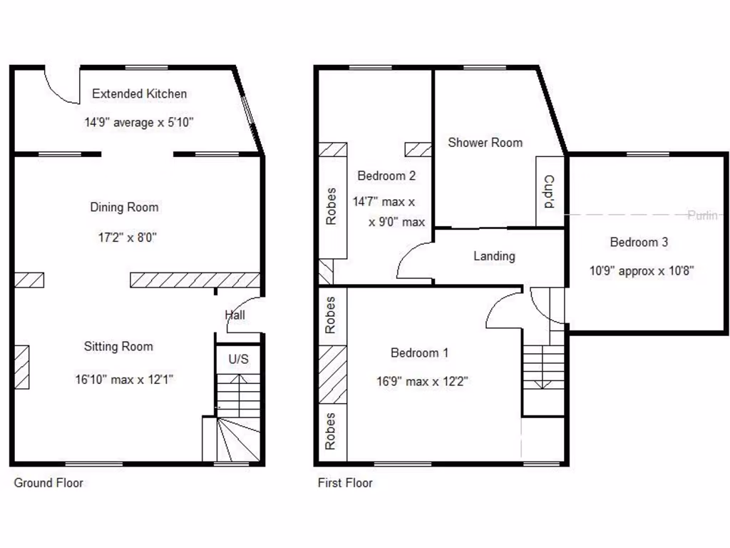
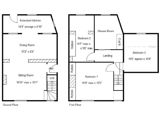
Floorplan Description

Rooms

Textual Property Features

Detected Visual Features

EPC Details

Nearby Schools

Nearest Bars And Restaurants

,,,,}

Nearest General Shops

,,}

Nearest Grocery shops

,,}

Nearest Supermarkets

,,}

Nearest Religious buildings

,,}

Nearest Medical buildings

,,,}

Nearest Airports

}

Nearest Leisure Facilities

,,,,}

Nearest Tourist attractions

,,}

Nearest Train stations

,,,,}

Nearest Bus stations and stops

,,,,}

Nearest Hotels

,,}

Tags

Local Market Stats

Similar Properties

Meta

High Res Images

Compatible Images

Low res Images

Thumbnails

Raw Images

High Res Floorplan Images

Compatible Floorplan Images

Low res Floorplan Images

FloorplanImages Thumbnail

Raw Floorplan Images