Spacious open-plan living near Crystal Palace Park and transport links.
Leasehold, 115 years remaining, chain free
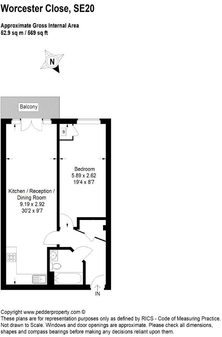
Light, well-proportioned and ready to move into, this one-bedroom apartment sits in a modern development moments from Crystal Palace Park. The open-plan 30ft reception with direct access to a sunny balcony creates generous entertaining space, while a 19ft bedroom offers true double proportions rarely found at this price. The property benefits from lift access, a communal garden and a solar boiler which helps reduce running costs.
The flat is presented in contemporary condition with neutral décor and modern fixtures, making it suitable for a first-time buyer seeking a hassle-free purchase or an investor looking for a rentable, low-maintenance asset. Transport links are strong: Crystal Palace and Anerley stations are close by with regular services into central London.
Practical details: the flat is leasehold with 115 years remaining, offered chain-free. Annual service charge and ground rent are notable costs (approx. £2,300 and £250 respectively). The internal size is around 569 sq ft, average for the area, and there is no private garden beyond communal grounds. Local area indicators show average crime and pockets of deprivation, though schools nearby have good Ofsted ratings and local amenities are plentiful.
Overall this apartment suits buyers who prioritise space, transport convenience and low immediate maintenance, while accepting ongoing service charges and a leasehold tenure. Viewing is recommended to appreciate the reception’s scale and the bright balcony aspect.
1 bedroom flat for sale in Apple Yard, Anerley, London, SE20 — £300,000 • 1 bed • 1 bath • 540 ft²
1 bedroom apartment for sale in Worcester Close, Penge, London, SE20 — £275,000 • 1 bed • 1 bath • 516 ft²
1 bedroom apartment for sale in Versailles Rd, Anerley, SE20 — £325,000 • 1 bed • 1 bath • 465 ft²
1 bedroom apartment for sale in Versailles Road, Anerley, London, SE20 — £300,000 • 1 bed • 1 bath • 463 ft²
2 bedroom flat for sale in Isis House, Worcester Close, Anerley, London, SE20 — £400,000 • 2 bed • 2 bath • 672 ft²
1 bedroom flat for sale in Church Road, Crystal Palace, SE19 — £400,000 • 1 bed • 1 bath










































