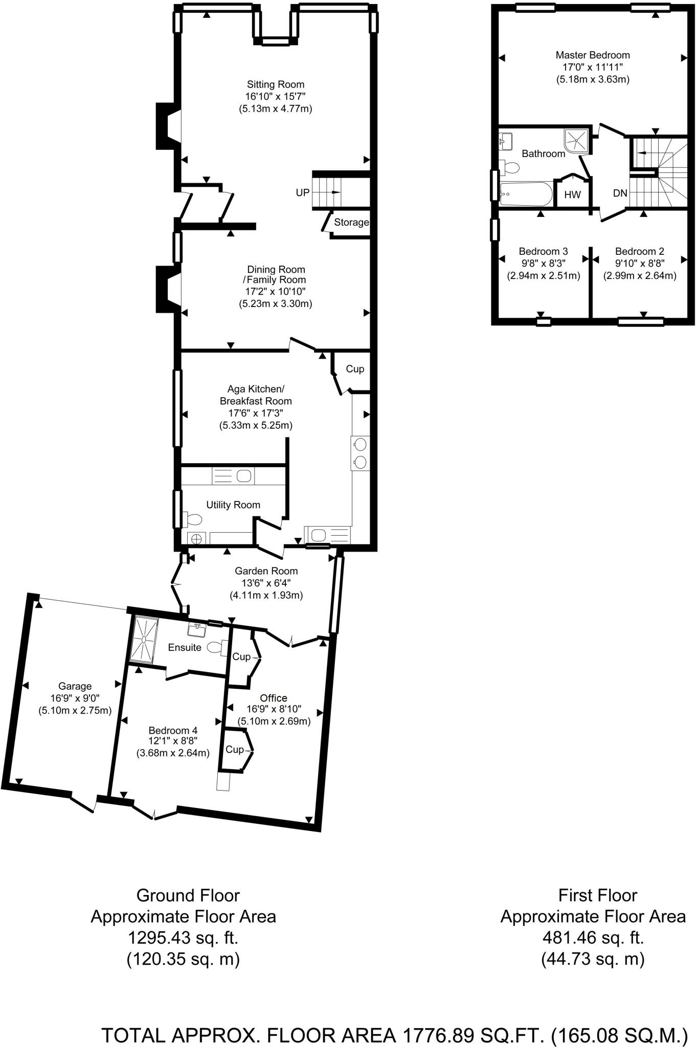
**Standout Features:**
- Grade II listed semi-detached property
- Four bedrooms (one en-suite) plus two potential additional bedrooms (per loft conversion plans)
- Spacious 1,625 sq ft of accommodation
- Off-street parking & garage
- Charming Victorian architecture with modern rustic touches
- Beautiful 100 ft garden with terrace for outdoor entertaining
- Planning permission obtained for loft conversion (DC/21/04217)
- Walking distance to local train station
This enchanting Grade II listed semi-detached home, situated in the heart of Bures village, offers a rare blend of historic charm and contemporary comfort. Spanning approximately 1,625 sq ft, the property features four spacious bedrooms including a delightful en-suite, alongside a cozy sitting room and a rustic AGA kitchen/breakfast room, perfect for family gatherings. The stunning garden, measuring 100 ft in length, is bordered by red brick walls and an array of vibrant flora, creating a serene outdoor space ideal for alfresco dining or peaceful afternoons.
While the property retains its historical essence, it also presents significant future potential, with plans already approved for loft conversion allowing for two additional bedrooms and a shower room. The living area bathes in natural light and flaunts original timbers, further enshrining its unique character. Additional conveniences include off-street parking, a garage, and excellent local amenities—all while maintaining a tranquil countryside ambiance.
This home is perfect for families looking for a space to grow or savvy investors seeking a unique property with rental potential. With low crime in the area and a vibrant community, Gildersleeves offers you a wonderful opportunity to create lasting memories in a charming setting. Don't miss your chance to own a piece of history with modern possibilities!
4 bedroom detached house for sale in Pikes Marsh, Bures, Suffolk, CO8 — £425,000 • 4 bed • 3 bath • 1400 ft²
4 bedroom detached house for sale in High Street, Bures, Suffolk, CO8 — £750,000 • 4 bed • 4 bath • 1865 ft²
5 bedroom semi-detached house for sale in The Croft, Bures, CO8 — £1,000,000 • 5 bed • 3 bath • 3375 ft²
3 bedroom semi-detached house for sale in Bures Hamlet, Essex, CO8 — £500,000 • 3 bed • 2 bath • 1680 ft²
2 bedroom terraced house for sale in Nayland Road, Bures, CO8 — £235,000 • 2 bed • 1 bath • 582 ft²
3 bedroom semi-detached house for sale in The Paddocks, Bures, CO8 — £375,000 • 3 bed • 1 bath • 1186 ft²


















































































