LA9 6EB - 3 bedroom detached house for sale in Plot 68, The Clawthorp…

View on Property Piper

3 bedroom detached house for sale in Plot 68, The Clawthorpe A, Meadow Rigg, Kendal, LA9

Summary - Plot 68, The Clawthorpe A, Meadow Rigg, Kendal LA9 6EB

3 bed 2 bath Detached

**Standout Features:**

- **Brand New Build:** Newly constructed, offering a modern living experience.
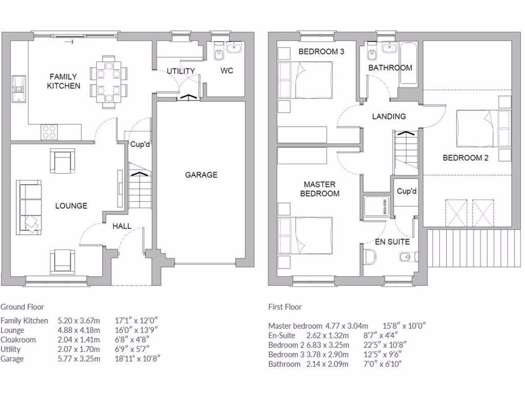
- **Three Double Bedrooms:** Spacious rooms, ideal for families or those needing extra space.
- **Open Plan Kitchen/Dining Area:** Perfect for entertaining, with wide patio doors that flood the space with natural light.
- **Master Bedroom with Ensuite:** A luxurious touch for your privacy and comfort.
- **Attached Garage and Driveway:** Ample parking and storage space.
- **Gas Central Heating & Double Glazing:** Ensures energy efficiency and warmth.
- **Eco-Friendly Features:** Comes with a green pack including water butts and compost bin.
- **Location Benefits:** Close to Kendal town center, schools, and the stunning Lake District.

**Potential Concerns:**

- **Average Crime Rate in Area:** Above average, so buyers should ensure to consider security measures.
- **New Build Adjustments:** Specifications may change without notice, so personalization options should be confirmed with the developer.

Discover your dream home in the serene Meadow Rigg, Kendal! This stunning three-bedroom detached house boasts contemporary design features and a spacious open-plan kitchen/dining area, perfect for family gatherings or entertaining friends. Enjoy the luxury of a master bedroom with an ensuite bathroom, providing the comfort and exclusivity you desire. With a light and airy lounge, all double-glazed windows, and gas central heating, this property is designed for modern living.

Benefit from the fantastic incentive of **Stamp Duty paid up to £10,000** when you reserve soon, allowing you to invest more in creating your dream living space. The eco-conscious buyer will appreciate included sustainable features like the Eco-Friendly Green Pack. This home provides the perfect blend of comfort, style, and location, close to Kendal's thriving community and just a stone’s throw from the breathtaking landscapes of the Lake District. Don't miss out—schedule your viewing today!

Property Details

Brochure Descriptions

Image Descriptions

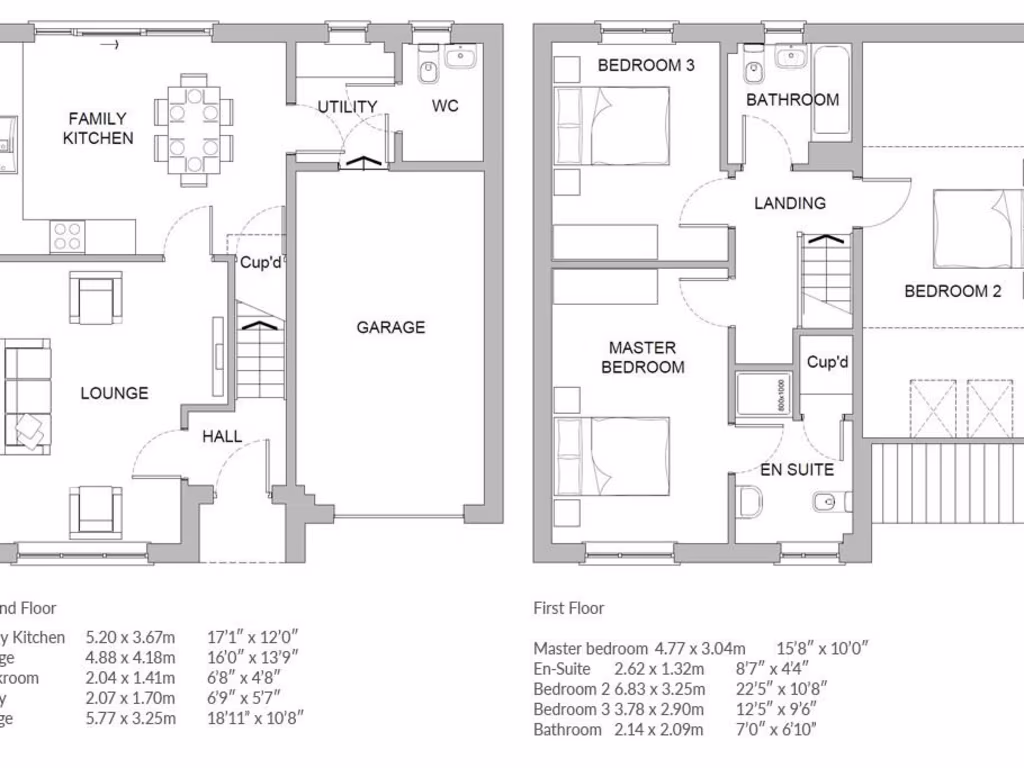
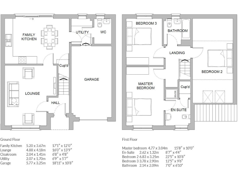
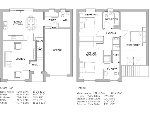
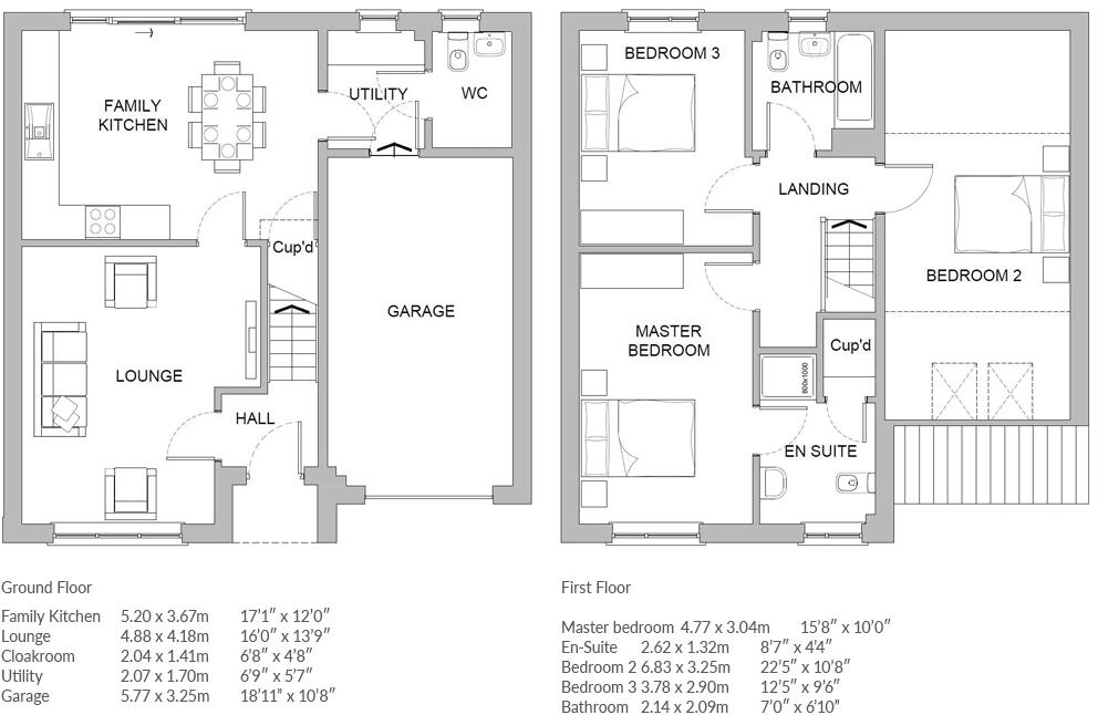
Floorplan Description

Rooms

Textual Property Features

Detected Visual Features

EPC Details

Nearby Schools

Nearest Bars And Restaurants

,,,,}

Nearest General Shops

,,}

Nearest Grocery shops

,,}

Nearest Supermarkets

,,}

Nearest Religious buildings

,,}

Nearest Medical buildings

,,,}

Nearest Leisure Facilities

,,,,}

Nearest Tourist attractions

,,}

Nearest Train stations

,,,,}

Nearest Bus stations and stops

,,,,}

Nearest Hotels

,,}

Tags

Local Market Stats

AirBnB Data

Similar Properties

Meta

High Res Images

Compatible Images

Low res Images

Thumbnails

Raw Images

High Res Floorplan Images

Compatible Floorplan Images

Low res Floorplan Images

FloorplanImages Thumbnail

Raw Floorplan Images