Spacious family-friendly home with private south-facing garden near transport.
Three double bedrooms across raised and lower-ground floors
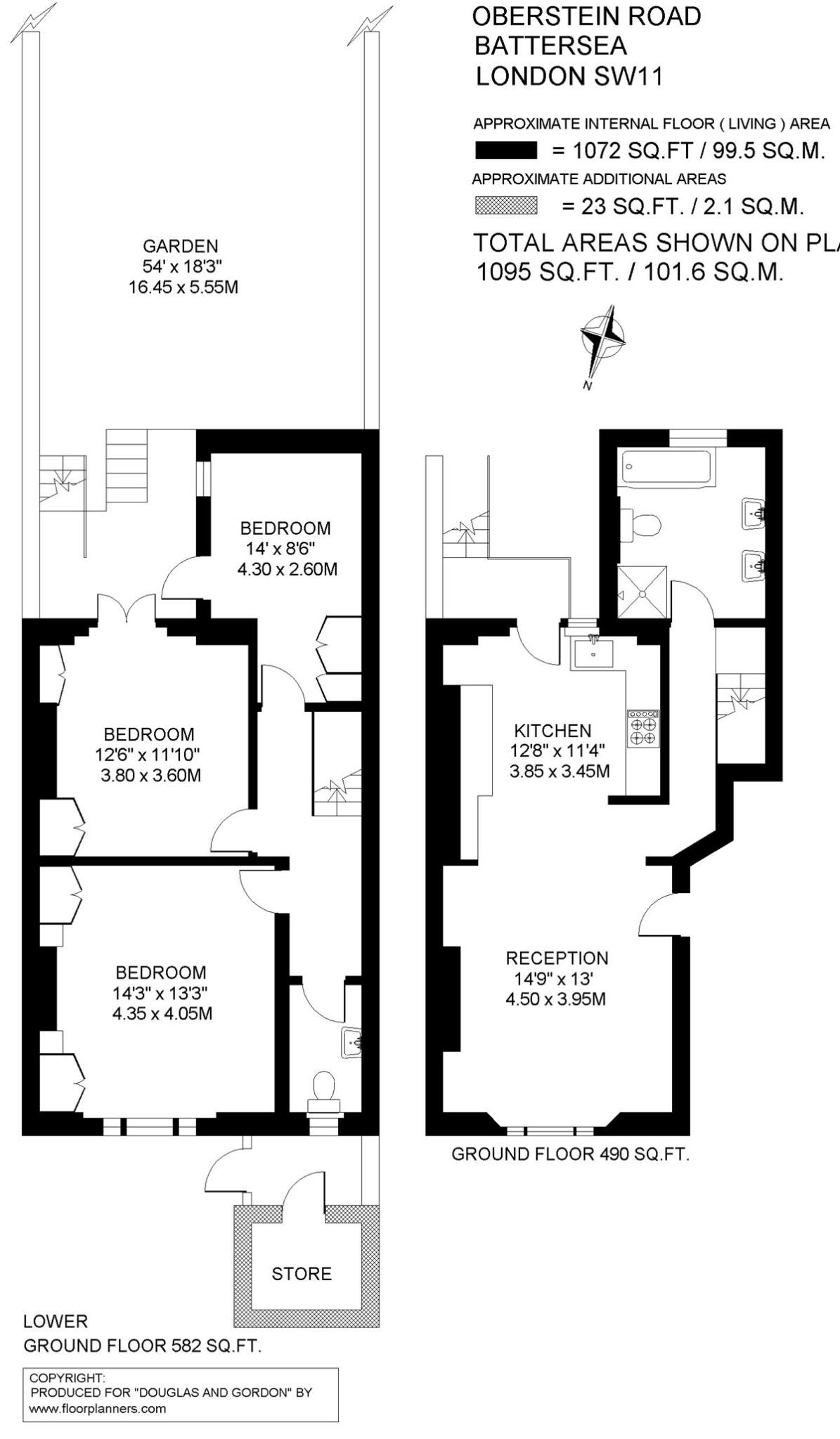
Set across the raised and lower-ground floors of a Victorian townhouse, this three-double-bedroom flat offers more space and privacy than a typical apartment. At around 1,095 sq ft, the wide reception room and modern kitchen/breakfast area open directly onto a large south-facing garden — rare for central locations and ideal for family living and entertaining.
The property benefits from a share of freehold with just one other flat, giving a house-like feel and long-term management control. Two of the bedrooms open onto the garden and bespoke wardrobes add built-in storage. Excellent transport links at nearby Clapham Junction, plus strong local schools and abundant shops and cafés, make the location highly convenient.
Practical considerations: there is a single family bathroom and a separate downstairs WC that could be converted to a shower room if more wet-room facilities are required. Crime in the immediate area is above average, which prospective buyers should factor into their decision. There is no flooding risk recorded.
Overall this is a substantial, contemporary-feel period property that will suit families or buyers seeking more living space close to central transport hubs. It offers scope to tailor the downstairs WC into an additional bathroom and immediate enjoyment of a large private garden.
3 bedroom flat for sale in Latchmere Road, Clapham Junction, SW11 — £700,000 • 3 bed • 2 bath • 862 ft²
2 bedroom flat for sale in Glycena Road, London, SW11 — £835,000 • 2 bed • 2 bath • 867 ft²
3 bedroom flat for sale in Auckland Road, London, SW11 — £825,000 • 3 bed • 1 bath • 834 ft²
4 bedroom flat for sale in Plough Road, Clapham Junction, SW11 2BJ, SW11 — £750,000 • 4 bed • 2 bath • 1191 ft²
2 bedroom house for sale in Bartholomew Close, London, SW18 — £700,000 • 2 bed • 1 bath • 852 ft²
3 bedroom apartment for sale in Maysoule Road, London, SW11 — £500,000 • 3 bed • 1 bath • 723 ft²






















































