**Standout Features:**
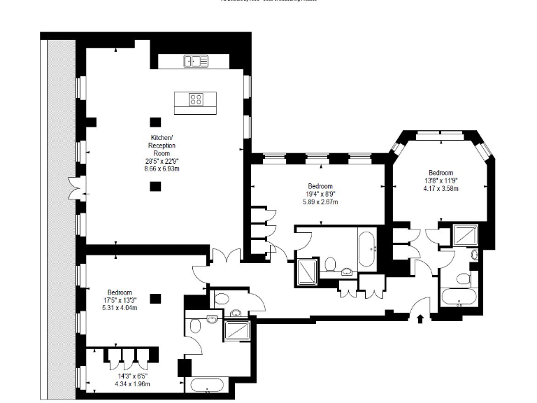
- 3 spacious bedrooms, 3 bathrooms
- Elegant Grade II listed Edwardian property
- Open-plan living area with high ceilings and large windows
- Modern kitchen with contemporary design
- Balcony and concierge service
- Located in prestigious Belgravia with prime city amenities
- Lift access and security features
**Potential Concerns:**
- Leasehold property with significant service charges (£20,000 per annum) and expensive council tax
- Crime rate categorized as very high
- Broadband speeds reported as very slow
**Property Summary:**
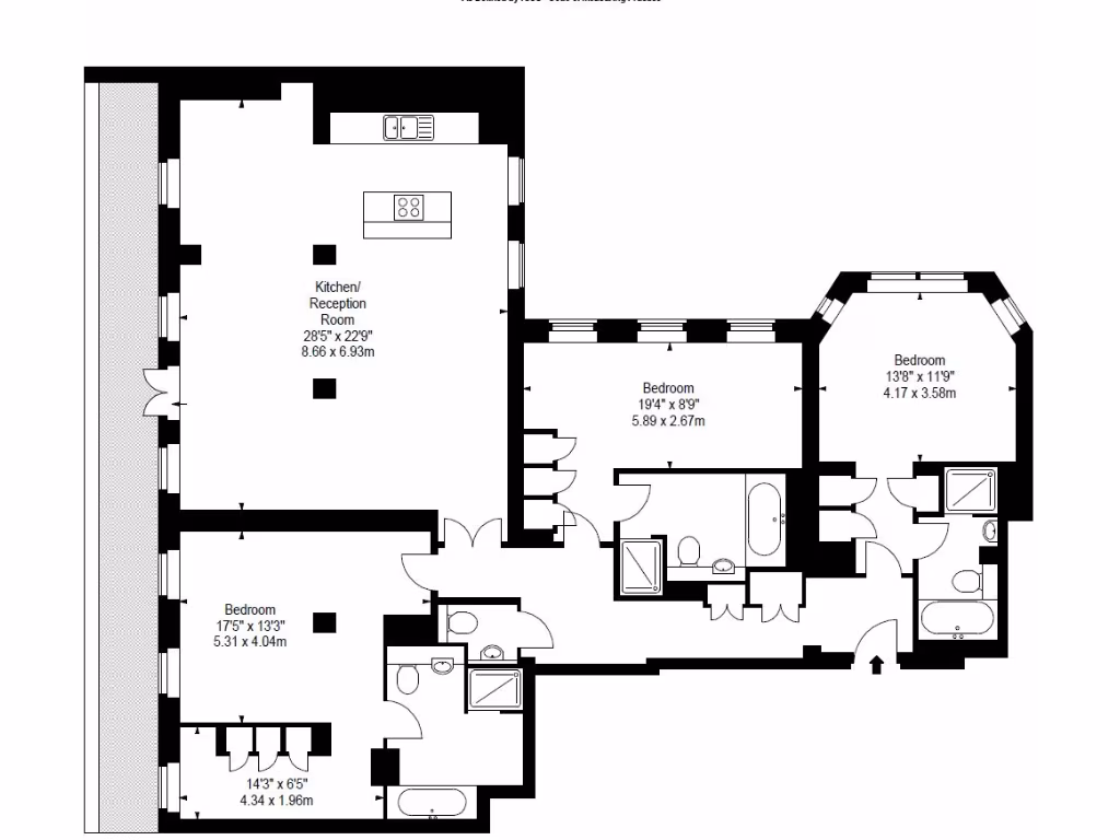
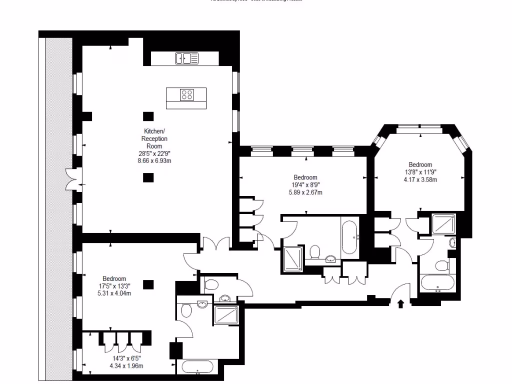
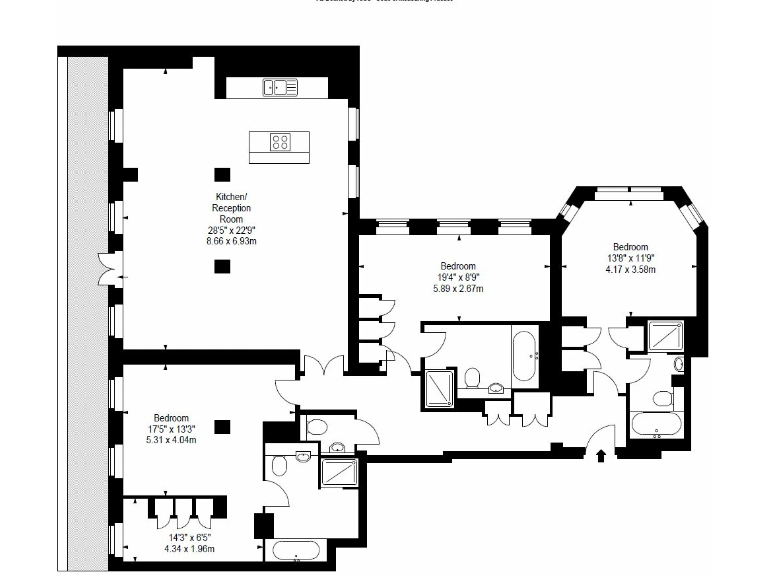
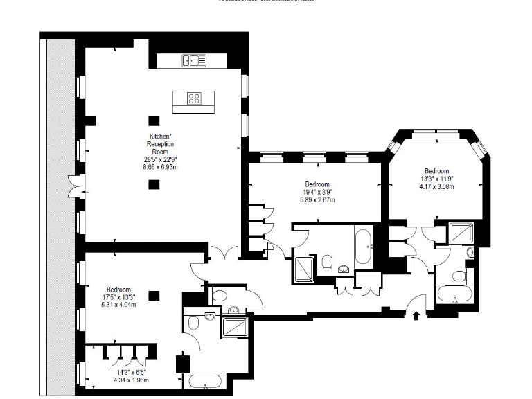
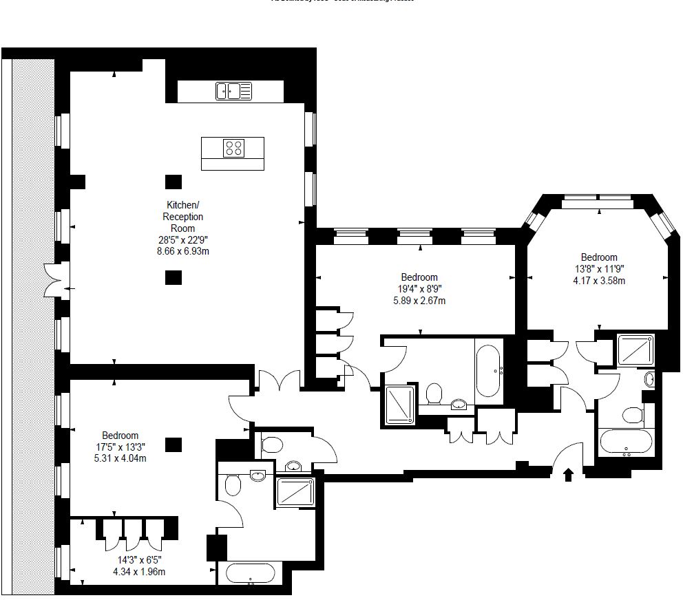
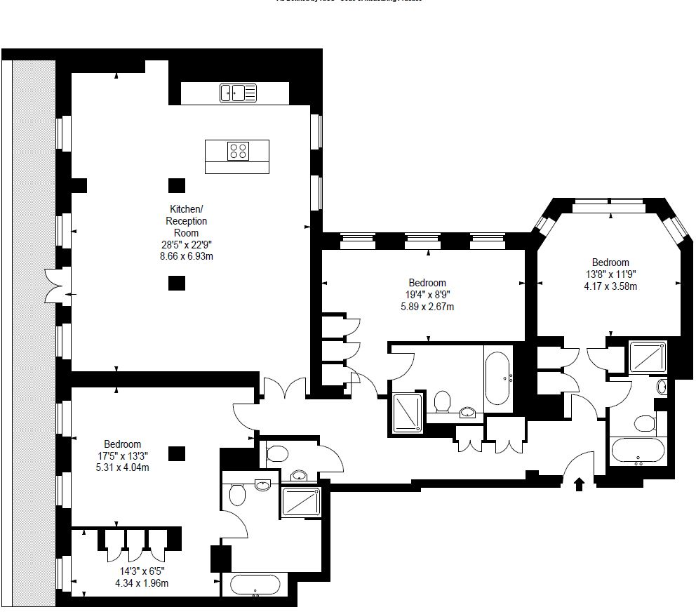
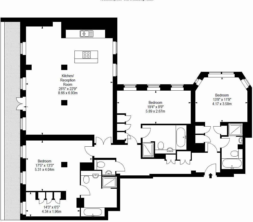
Experience refined urban living in this stunning 3-bedroom, 3-bathroom apartment nestled within the illustrious surroundings of Belgravia. This Grade II listed Edwardian property tastefully fuses classic charm with contemporary luxury, featuring an expansive open-plan design that invites natural light through large windows and offers seamless integration of living and kitchen spaces. The high ceilings and elegant finishes set an exclusive tone, while the concierge service and secure entry provide peace of mind.
Ideal for families and professionals seeking both comfort and exclusivity in one of London’s most coveted neighborhoods, this apartment is just moments away from boutique shopping and fine dining along Elizabeth Street and Sloane Square. However, prospective buyers should note the high service charges, council tax, and elevated crime rates in the area. With excellent transport links nearby—including Victoria rail and underground stations—this property is a rare find in today's market. Don't miss the opportunity to make this exquisite residence your own, as properties of this caliber are quickly snapped up!
3 bedroom flat for sale in Chantrey House, 4 Eccleston Street, Belgravia, London, SW1W — £3,150,000 • 3 bed • 3 bath • 1951 ft²
3 bedroom flat for sale in Chantrey House, 4 Eccleston Street, Belgravia, London, SW1W — £2,500,000 • 3 bed • 3 bath • 1496 ft²
1 bedroom flat for sale in Chantrey House, 4 Eccleston Street, Belgravia, London, SW1W — £945,000 • 1 bed • 1 bath • 767 ft²
1 bedroom flat for sale in Chantrey House, 4 Eccleston Street, Belgravia, London, SW1W — £1,080,000 • 1 bed • 1 bath • 641 ft²
1 bedroom apartment for sale in Chantrey House, 4 Eccleston Street, Belgravia, SW1W — £945,000 • 1 bed • 1 bath • 756 ft²
2 bedroom apartment for sale in Eccleston Street, Belgravia, SW1W 9LN, SW1W — £2,250,000 • 2 bed • 2 bath • 1106 ft²














































































































































































































































