Well-located three-bed home near beach, shops and schools; low-maintenance and chain-free.
- Three bedrooms with ground-floor bedroom or study
- Exposed beams, pamment hearth and characterful flint wall
- Two modern shower rooms; well-fitted kitchen with integrated appliances
- Parking for up to three cars via double gates from Pine Close
- Attached timber garage and workshop (asbestos roof present)
- Gardens designed for low maintenance with paved terrace
- Freehold, chain-free sale; council tax Band B (cheap)
- Heating description inconsistent; verify gas boiler versus electric heaters
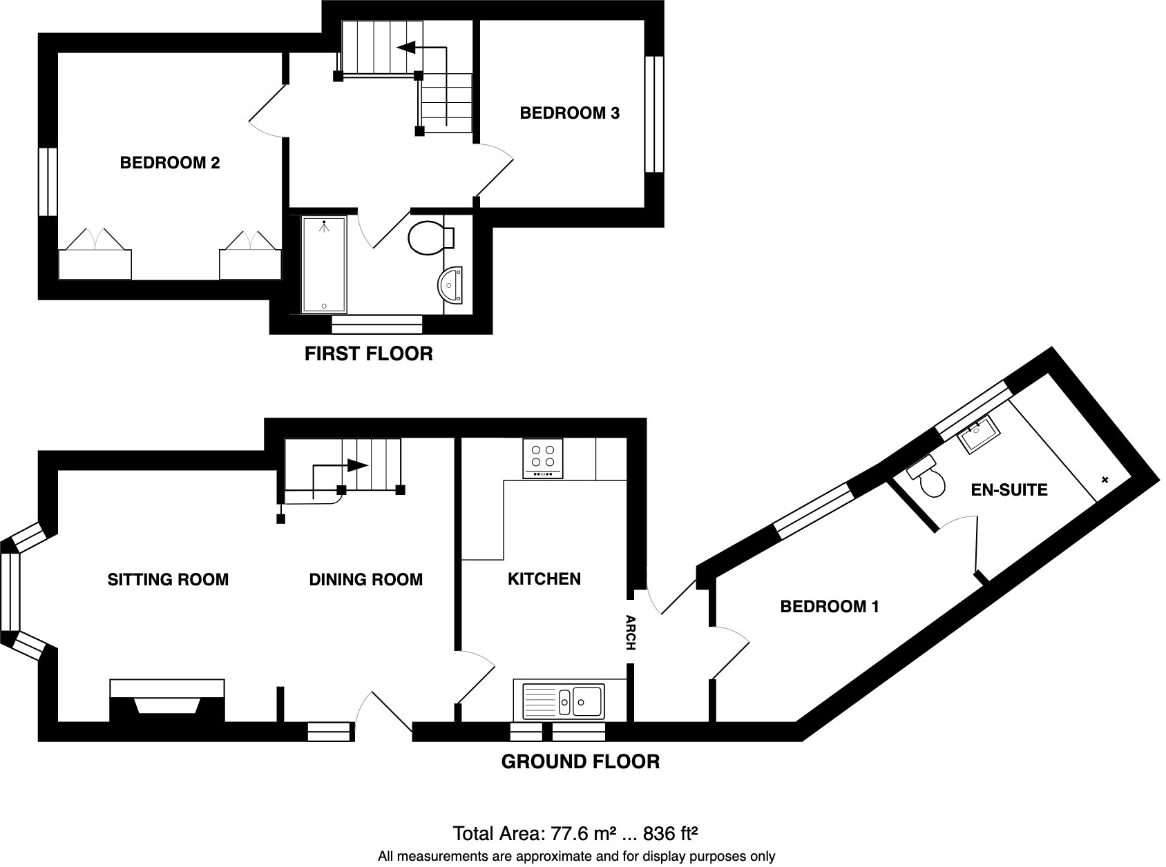
This semi-detached three-bedroom cottage on Cromer Road sits close to Sheringham’s shops, beach and transport links. The house blends period features — exposed beams, a pamment hearth and flint boundary wall — with practical modern fittings in the kitchen and two shower rooms. With off-street parking for up to three cars and an attached garage plus workshop, the home is well placed for coastal living and easy weekends.
The flexible layout spans about 836 sq ft over two floors, with a ground-floor bedroom or study and two first-floor bedrooms. Gardens are designed for low maintenance, with shingled side space, a small gated courtyard and a paved terrace ideal for alfresco dining. There is immediate move-in potential for downsizers or small families, and scope to update the decoration and finishes to personal taste.
Buyers should note some material points: the listing mentions a gas-fired boiler but also refers to electric storage heating — the heating arrangement should be verified. The garage is timber with asbestos roofing; specialist advice may be needed for any works. EPC rating is listed as tbc. The property is sold freehold and chain-free, with modest council tax (Band B).
Overall this is a characterful, conveniently located home for those seeking coastal town living with parking and low-maintenance outdoor space. Early viewing is recommended to assess the heating setup and garage condition and to appreciate the cottage features and layout in person.
2 bedroom end of terrace house for sale in Sheringham, NR26 — £285,000 • 2 bed • 2 bath • 804 ft²
3 bedroom terraced house for sale in Sheringham, NR26 — £280,000 • 3 bed • 1 bath • 814 ft²
3 bedroom semi-detached house for sale in Sheringham, NR26 — £340,000 • 3 bed • 2 bath • 1214 ft²
3 bedroom detached house for sale in Sheringham, NR26 — £425,000 • 3 bed • 1 bath • 1282 ft²
4 bedroom end of terrace house for sale in Sheringham, NR26 — £550,000 • 4 bed • 4 bath • 1833 ft²
3 bedroom cottage for sale in Sheringham, NR26 — £325,000 • 3 bed • 1 bath • 1043 ft²






















































