### Standout Features:
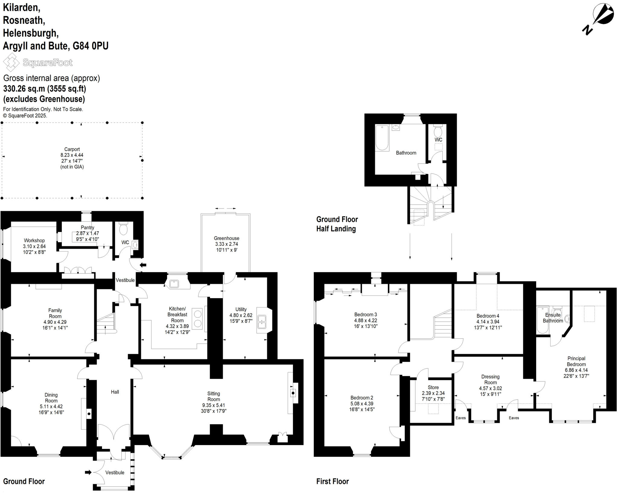
- **Victorian elegance:** Built in 1870, original features like high ceilings, intricate cornicing, and carved wooden doors.
- **Spacious living:** Three generous reception rooms perfect for entertaining.
- **Expansive grounds:** Located within circa 20 acres, featuring a celebrated rhododendron collection, woodlands, orchard, and pond.
- **Family-friendly layout:** 4 double bedrooms, including a principal suite with ensuite.
- **Outdoor amenities:** Car port, tractor sheds, and wood stores; extensive gardens with patios for outdoor enjoyment.
- **Sustainability:** Equipped with solar panels generating an average annual income of approximately £1,200.
### Summary:
Discover Kilarden, a remarkable Victorian villa set in a stunning 20-acre landscape on the Rosneath Peninsula. Boasting exquisite original features, this spacious home offers an elegant haven with high ceilings, intricate cornicing, and beautiful bay windows throughout. With three large reception rooms designed for both relaxation and formal dining, entertaining is effortless. The property includes four double bedrooms, generous living spaces, and a traditional kitchen, making it perfect for families or anyone seeking a tranquil retreat.
Step outside to explore the expansive grounds, highlighted by a renowned collection of rhododendrons and lush woodlands that provide a vibrant backdrop all year round. While the EPC rating is an F, suggesting the need for energy improvements, the solar panels offer a sustainable income stream, enhancing investment potential.
Occupying a peaceful countryside location with excellent accessibility to local amenities and schools, this property is a rare find. Don't miss this opportunity to make it your own—such expansive, character-rich homes rarely come on the market.
5 bedroom detached house for sale in Back Road, Clynder, G84 — £630,000 • 5 bed • 3 bath • 3089 ft²
6 bedroom detached villa for sale in Kymel, 3 Upper Carman Road, By Cardross, Dumbarton G82 4NZ, G82 — £550,000 • 6 bed • 2 bath • 3500 ft²
5 bedroom detached house for sale in William Street, Helensburgh, G84 — £499,000 • 5 bed • 2 bath • 2152 ft²
6 bedroom detached house for sale in Lochscape House, Argyll Road, Kilcreggan G84 — £575,000 • 6 bed • 5 bath • 3950 ft²
5 bedroom detached house for sale in James Street, Helensburgh, G84 — £625,000 • 5 bed • 4 bath • 2389 ft²
4 bedroom detached house for sale in Balquidder, Garelochhead, Argyll And Bute G84 — £485,000 • 4 bed • 2 bath • 1690 ft²


















































































































































