**Standout Features:**
- One-bedroom first-floor retirement apartment
- Good decorative order; chain-free sale
- Fully fitted kitchen with integrated appliances
- Access to Owners’ Lounge with social events
- 24-hour Careline system for safety
- Guest suite available for visitors
- Private owners’ car park
- Communal garden views
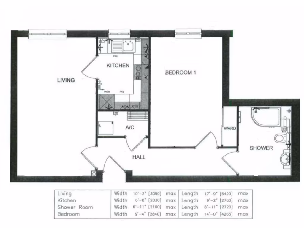
This charming one-bedroom first-floor retirement apartment at Bramble Lodge offers a perfect blend of comfort and community, ideal for retirees seeking a peaceful lifestyle. Featuring a fully fitted kitchen with modern appliances, a spacious living area with the ample natural light, and a generous double bedroom, this apartment provides all the essentials for enjoyable living. The well-maintained building, marked by its attractive Tudor-style architecture, complements the lush gardens surrounding the property.
Residents benefit from a variety of amenities, including a lodge manager for support five days a week, an active Owners' Lounge for social gatherings, and a 24-hour emergency Careline system ensuring peace of mind. For added convenience, the location boasts excellent transport links and is close to Wallington’s bustling town center, featuring shops, cafes, and a weekly farmers market.
While the service charge of approximately £3,114 per annum and ground rent of £847.55 may be considered, they cover essential services and maintenance, enhancing your living experience. With 113 years left on the lease and no forward chain, this property is ready for you to settle in and enjoy a vibrant retirement lifestyle. Don’t miss this opportunity to embrace comfort and community living in a sought-after retirement setting!
1 bedroom retirement property for sale in Bramble Lodge, Wallington, SM6 — £227,500 • 1 bed • 1 bath • 551 ft²
1 bedroom retirement property for sale in Bramble Lodge, Wallington, SM6 — £219,000 • 1 bed • 1 bath • 534 ft²
2 bedroom retirement property for sale in Bramble Lodge, Wallington, SM6 — £299,950 • 2 bed • 1 bath • 737 ft²
2 bedroom retirement property for sale in Bramble Lodge, Wallington, SM6 — £260,000 • 2 bed • 1 bath • 628 ft²
2 bedroom apartment for sale in Brambledown Road, Wallington, SM6 — £270,000 • 2 bed • 1 bath • 710 ft²
2 bedroom flat for sale in Brambledown Road, South Wallington, SM6 — £260,000 • 2 bed • 1 bath • 585 ft²


































































