Characterful family home near Hither Green station with clear renovation potential.
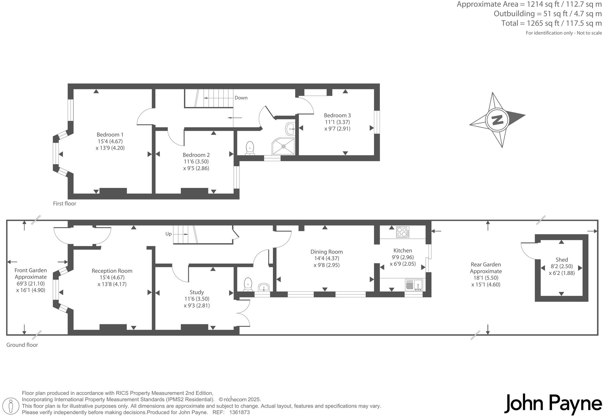
- Three double bedrooms with loft conversion potential
- Lounge, dining room, study and ground-floor WC
- Large plot offering garden and extension possibilities
- Period features: bay window, high ceilings, hardwood floors
- Energy Efficiency Rating D; solid brick walls likely uninsulated
- Single shower room only; requires overall modernization
- Medium flooding risk; check insurance and mitigation costs
- Tenure freehold; Lewisham Council Tax Band C
This Victorian three-double-bedroom mid-terrace sits on a popular residential road in Hither Green, a short walk from Hither Green station (around 10 minutes to London Bridge) and several highly rated schools. Room layout includes lounge, dining room, study, ground-floor WC and a rear garden, with loft conversion potential to create an additional bedroom and bathroom.
The house retains period character—bay window, high ceilings, hardwood flooring—and offers comfortable family accommodation across two floors. The plot is unusually large for the street, giving scope for garden improvements or an extension subject to permissions. Local green space, shops and Blackheath Village amenities are all close by.
Buyers should note the property requires modernization throughout; services are mains gas with boiler and radiators, and the walls are original solid brick with no assumed insulation. Energy Efficiency Rating is D and there is only one shower room. Flooding risk is assessed as medium. These are practical considerations for budget and refurbishment planning.
Overall this home will suit families seeking a characterful period house in an established, well-served neighbourhood, or buyers wanting a renovation project with upside through improvement and potential loft works. Council tax band is C and tenure is freehold.
4 bedroom terraced house for sale in Fernbrook Road, London, SE13 — £700,000 • 4 bed • 2 bath • 1109 ft²
3 bedroom terraced house for sale in Leahurst Road, London, SE13 — £900,000 • 3 bed • 2 bath • 1335 ft²
3 bedroom terraced house for sale in Hither Green, London, SE13 — £600,000 • 3 bed • 1 bath • 1215 ft²
4 bedroom terraced house for sale in Longhurst Road, London, SE13 — £950,000 • 4 bed • 2 bath • 1320 ft²
2 bedroom house for sale in Fernbrook Road, Hither Green, SE13 — £650,000 • 2 bed • 1 bath • 893 ft²
3 bedroom house for sale in Ennersdale Road, London, SE13 — £750,000 • 3 bed • 1 bath • 1230 ft²






































































