Spacious four-bed home with large garden and summerhouse.
Four bedrooms across two storeys, generous family living spaces
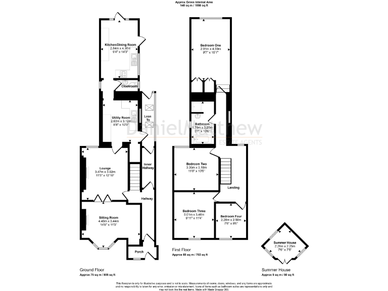
Set on a large plot in the village of Pen‑y‑Fai, this four-bedroom detached cottage offers generous family accommodation across 1,507 sqft. Ground floor living flows from a lounge through to a sitting room, with a kitchen overlooking the established garden, a useful utility room, lean-to and a practical downstairs WC. The property includes a garage and multiple outdoor entertaining areas including a summer house and vegetable patch.
The house dates from before 1900 and has solid sandstone/limestone walls (assumed uninsulated). Heating is by mains gas boiler and radiators; windows are double glazed though installation date is unknown. The home will reward buyers who value character and space but are willing to carry out energy-efficiency improvements (EPC D) and general modernisation where desired.
For a family seeking semi-rural living close to local amenities and good digital connectivity, this home combines scope for improvement with immediate practical benefits: large private garden, parking and excellent mobile and broadband. Note there is a single family bathroom upstairs, council tax is above average, and energy-efficiency upgrades may be advisable. A 360° virtual tour is available and recommended before viewing.
4 bedroom detached house for sale in Rhodfa Ceirios, Pen-Y-Fai, CF31 — £340,000 • 4 bed • 2 bath • 1090 ft²
4 bedroom semi-detached house for sale in Glenview, Pen-Y-Fai, CF31 — £325,000 • 4 bed • 2 bath • 1591 ft²
3 bedroom detached house for sale in Grove Cottage, Bridgend, CF32 — £525,000 • 3 bed • 1 bath • 2336 ft²
4 bedroom detached house for sale in Graham Avenue, Pen-y-fai, Bridgend, Bridgend County. CF31 4NP, CF31 — £284,995 • 4 bed • 1 bath
4 bedroom detached house for sale in Wernlys Road, Pen-y-Fai, Bridgend, CF31 4NS, CF31 — £343,000 • 4 bed • 2 bath • 1557 ft²
4 bedroom semi-detached house for sale in Wernlys Road, Bridgend, CF31 — £380,000 • 4 bed • 4 bath • 2006 ft²






















































































































































