Well-presented single-storey home with large garden and garage near schools and transport.
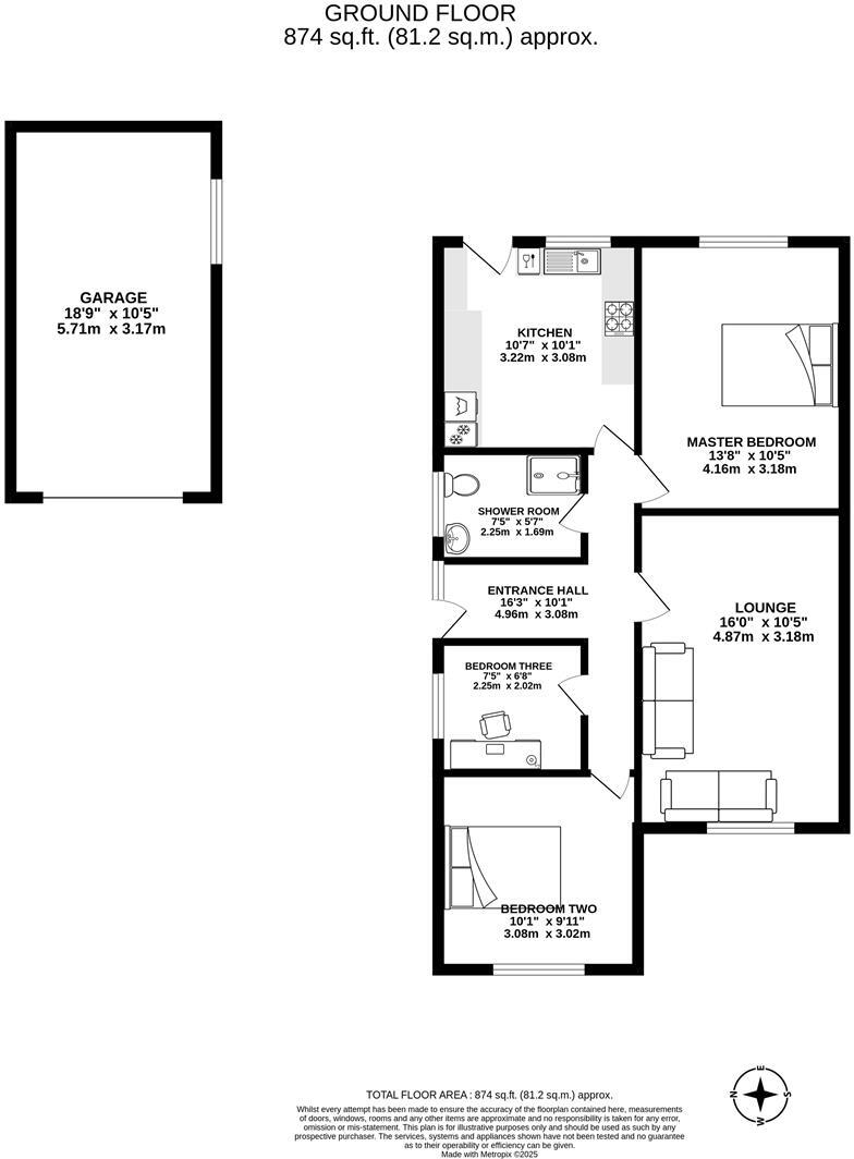
Three-bedroom semi-detached bungalow, approx 874 sq ft
Light-filled and practical, this three-bedroom semi-detached bungalow delivers comfortable, move-in-ready living in a well-regarded Leyland neighbourhood. The layout flows from a bright entrance hall to a generous front lounge and a modern kitchen fitted with integrated appliances and views over the large rear garden. A detached garage and flagged driveway provide useful storage and off-street parking for two vehicles.
Outside space is a genuine strength: a decent plot with a raised artificial lawn and decked seating area creates low-maintenance outdoor living and entertaining options. Internally the property suits couples, families or downsizers seeking single-storey accommodation close to Leyland town centre, good travel links and several well-rated primary schools.
Buyers should note practical and energy items: the EPC is band D, double glazing appears to pre-date 2002 and cavity walls are assumed uninsulated, so energy-efficiency improvements would be beneficial. The home has one shower room and approximately 874 sq ft of living space, typical for this type — good for low-maintenance living but limiting if larger accommodation is required.
This freehold bungalow is presented in good decorative order and will suit purchasers wanting a comfortable, accessible home with scope for simple improvements (insulation, glazing, possible bathroom expansion) to increase comfort and reduce running costs. The location, parking and garden space make it an appealing, practical option in a quiet residential setting.
3 bedroom semi-detached bungalow for sale in St. Annes Road, Leyland, PR25 — £220,000 • 3 bed • 1 bath • 712 ft²
3 bedroom semi-detached bungalow for sale in Western Drive, Leyland, PR25 — £190,000 • 3 bed • 1 bath • 1110 ft²
3 bedroom detached bungalow for sale in Bannister Lane, Farington Moss, Leyland, PR26 — £260,000 • 3 bed • 1 bath • 1712 ft²
3 bedroom semi-detached bungalow for sale in Lever House Lane, Leyland, PR25 — £220,000 • 3 bed • 1 bath • 1110 ft²
3 bedroom detached bungalow for sale in Ennerdale Close, Leyland, PR25 — £285,000 • 3 bed • 1 bath • 1066 ft²
3 bedroom detached bungalow for sale in Lyndale Close, Leyland, PR25 — £399,995 • 3 bed • 1 bath • 1148 ft²


































































