**Standout Features:**
- Spacious four-bedroom detached home in the charming village of Codford
- Approximately 1,700 sq ft of living space
- Double garage and driveway with ample parking
- Large plot featuring a mature garden, perfect for outdoor entertaining
- Opportunity for modernization and personal customization
- Ideally located in a peaceful cul-de-sac close to amenities and schools
- Low crime area with fast broadband and an affluent neighborhood
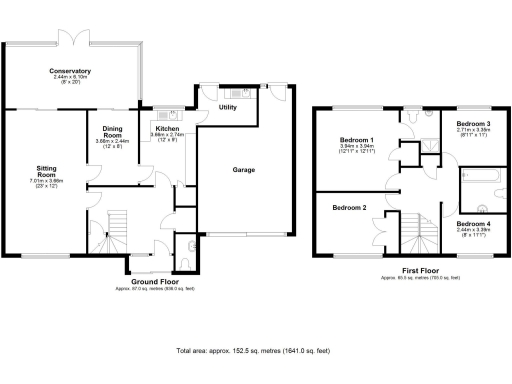
This superb four-bedroom detached property located in the picturesque village of Codford presents a remarkable opportunity for families or investors seeking a spacious residence ripe for modernization. With nearly 1,700 sq ft of living space, the home features a welcoming entrance hall, a bright sitting room with sliding doors to a conservatory showcasing views of the landscaped garden, and a practical kitchen complete with utility access. The upper level hosts four generous bedrooms, including a principal suite with an ensuite bathroom, alongside a family bathroom.
Situated on a quiet cul-de-sac, the large plot is complemented by a double garage and a driveway accommodating multiple vehicles. The expansive rear garden, featuring a patio area ideal for summer gatherings, offers a serene oasis framed by mature shrubs and scenic views. Though some renovation is needed, this is your chance to imprint your vision upon a home in a thriving community, mere moments from local shops, excellent schools, and beautiful countryside attractions. Take advantage of this unique opportunity to create your dream home in Codford, a delightful area known for its charm and tranquility.
4 bedroom semi-detached house for sale in Greenhill Place, BA12 — £385,000 • 4 bed • 2 bath • 1710 ft²
5 bedroom house for sale in New Road, Codford, Codford, BA12 — £550,000 • 5 bed • 2 bath • 2206 ft²
4 bedroom detached house for sale in High Street, Codford, Warminster, BA12 — £525,000 • 4 bed • 2 bath • 1751 ft²
5 bedroom detached house for sale in Quinton Place, Codford, Codford, BA12 — £695,995 • 5 bed • 3 bath • 1826 ft²
5 bedroom detached house for sale in Codford, Warminster, BA12 — £650,000 • 5 bed • 3 bath • 2112 ft²
2 bedroom semi-detached house for sale in Cherry Orchard, Codford, Warminster, BA12 — £245,000 • 2 bed • 1 bath • 669 ft²


























































































































