**Standout Features:**
- Spacious detached bungalow with 4 bedrooms
- Expansive 3,707 sq. ft., split-level design
- Scenic views overlooking Loch Earn
- Large gardens with a tranquil pond and charming bridges
- Ample parking with a double garage/workshop
- Situated within the Loch Lomond and the Trossachs National Park
- Modern insulated home with low running costs
**Potential Concerns:**
- Broadband speeds are currently slow
- Property requires regular maintenance due to rural location
- Area classified with high deprivation
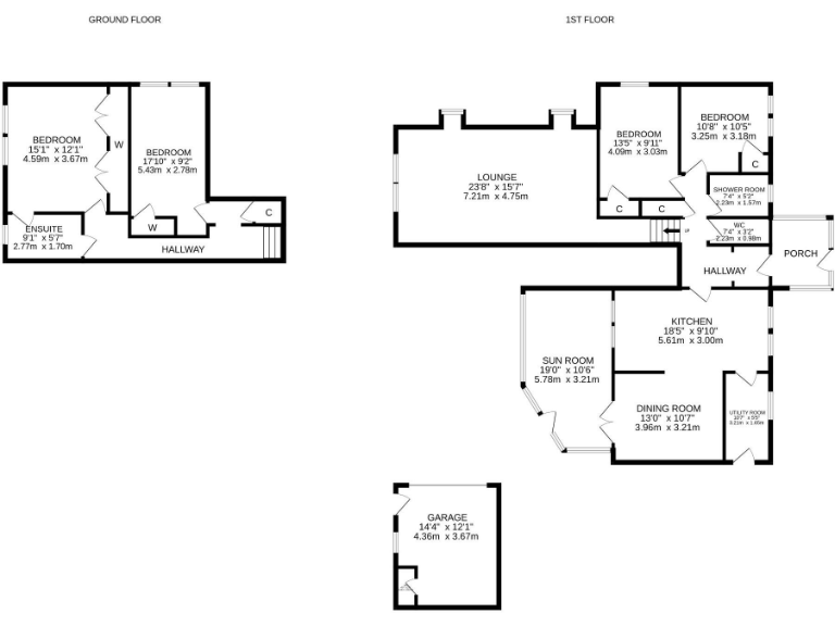
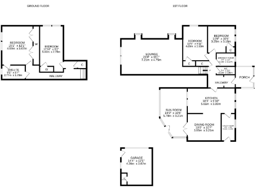
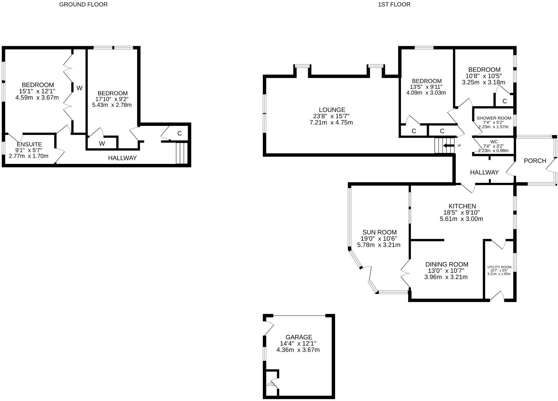
This deceptively large 4-bedroom detached bungalow offers a unique opportunity for both families and investors alike. Nestled in the peaceful village of Lochearnhead, the property combines modern living with breathtaking views of Loch Earn and the surrounding hills. The home features a spacious layout, with two bedrooms on the ground floor and an inviting sun-room that leads to beautifully landscaped gardens, perfect for outdoor enjoyment. The living space is elevated by a lovely lounge with exposed beams and a wood-burning stove, creating a warm atmosphere for gatherings.
With substantial parking and a double garage equipped for storage or workshop use, this home emphasizes convenience and potential for personalized renovations or expansions. Enjoy the serenity of rural living, complete with easy access to local amenities and recreational activities in the nearby national park. However, potential buyers should be aware of the slower broadband speeds and maintenance needs associated with rural living. This welcoming property presents a rare blend of comfort and nature, offering a distinctive lifestyle opportunity in a much-coveted location. Don't miss out on making this family-friendly haven your own!
4 bedroom detached bungalow for sale in 10 Vorlich Road, Lochearnhead, Perthshire, FK19 8QG, FK19 — £375,000 • 4 bed • 3 bath • 1999 ft²
4 bedroom bungalow for sale in St. Fillans, Crieff, Perth and Kinross, PH6 — £450,000 • 4 bed • 2 bath • 1852 ft²
3 bedroom detached house for sale in Lochearnhead, Stirlingshire, FK19 — £225,000 • 3 bed • 1 bath • 1152 ft²
4 bedroom detached house for sale in Lochearnhead, FK19 — £339,000 • 4 bed • 4 bath • 2416 ft²
4 bedroom detached house for sale in Glenvarloch, Strathyre, Callander, FK18 — £440,000 • 4 bed • 2 bath • 1851 ft²
4 bedroom detached house for sale in Balquhidder, Lochearnhead, Stirlingshire, FK19 — £650,000 • 4 bed • 3 bath • 2551 ft²










































































































































































