GU15 3EW - 3 bedroom terraced house for sale in Camberley, Surrey, GU15

View on Property Piper

3 bedroom terraced house for sale in Camberley, Surrey, GU15

Summary - 3 MONTAGUE CLOSE CAMBERLEY GU15 3EW

3 bed 1 bath Terraced

Spacious family terrace with garage and renovation potential.
Three bedrooms with separate kitchen and downstairs WC
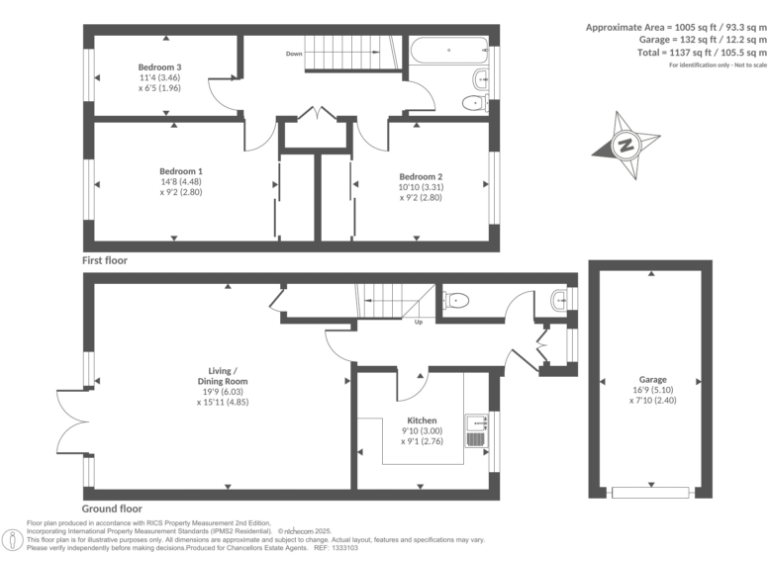
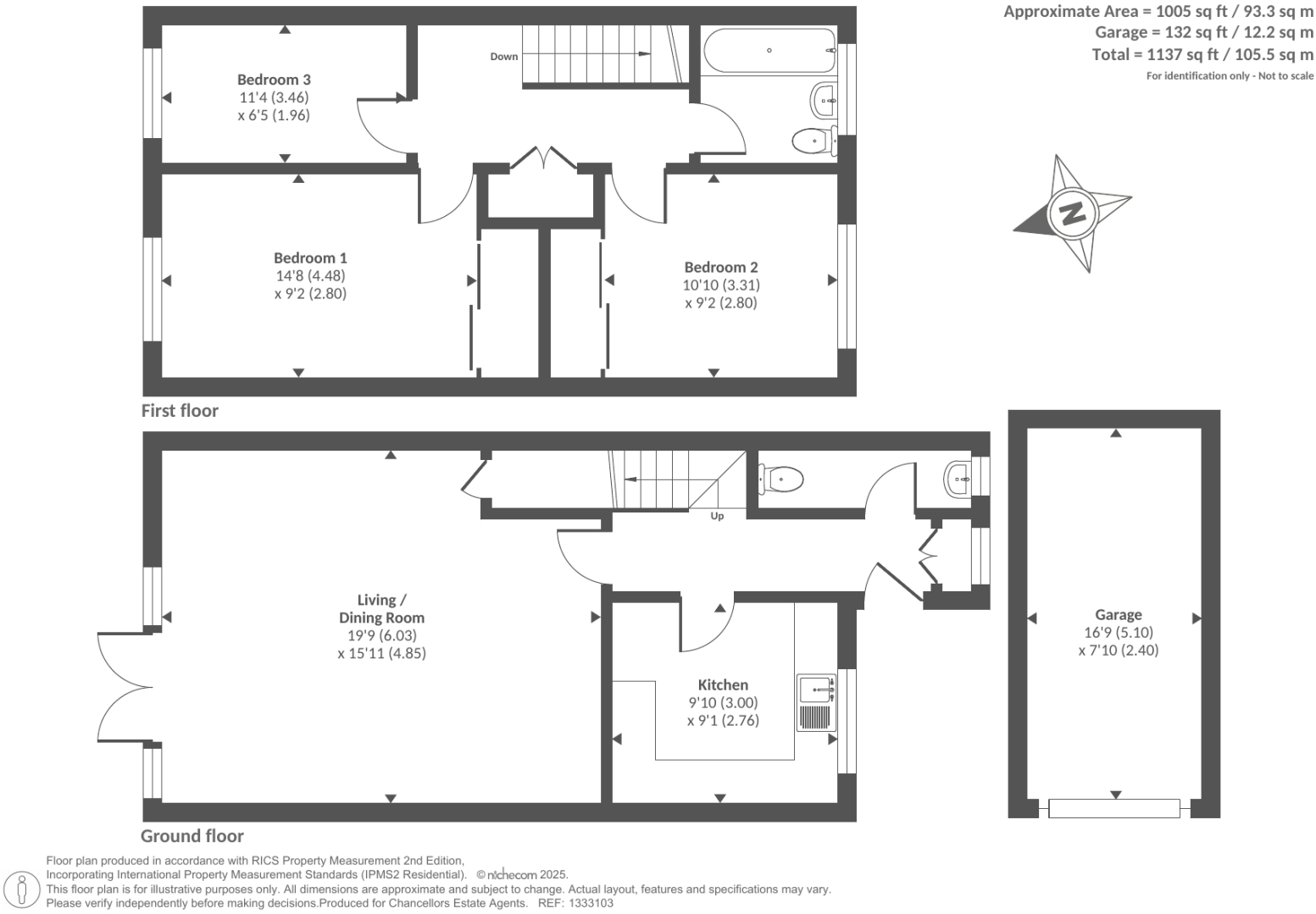
This three-bedroom terraced house in a quiet cul-de-sac offers practical family accommodation with parking and outdoor space. The property includes a separate kitchen, downstairs WC and a private garden, plus a garage and driveway for additional storage or parking. At about 1,137 sq ft, rooms are a comfortable, average size typical of late-1960s/70s construction.

The house presents clear scope for updating: decor is dated and there are signs of damp in the living room area. The property likely has cavity walls without added insulation and double glazing with an unknown install date, so buyers should budget for insulation, possible damp remedial work and general modernization to improve comfort and efficiency. Main heating is by mains gas boiler and radiators.

Location strengths include a cul-de-sac position, fast broadband and excellent mobile signal, and proximity to a mix of state and independent schools (several rated Good). The wider area is affluent and the home is freehold with affordable council tax, making it a practical long-term purchase for a family or buyer wanting renovation potential.

Important negatives are factual: the area records high crime levels, the plot is small, and the property requires updating and some remedial attention for damp and thermal performance. These factors are reflected in the price and present an opportunity for buyers seeking value and uplift through renovation.

Property Details

Image Descriptions

Floorplan Description

Rooms

Textual Property Features

Target Audience

AI Tags

Detected Visual Features

EPC Details

Nearby Schools

Nearest Bars And Restaurants

,,,,}

Nearest General Shops

,,}

Nearest Grocery shops

,,}

Nearest Supermarkets

,,}

Nearest Religious buildings

,,}

Nearest Medical buildings

,,,}

Nearest Airports

}

Nearest Leisure Facilities

,,,,}

Nearest Tourist attractions

,,}

Nearest Train stations

,,,,}

Nearest Bus stations and stops

,,,,}

Nearest Hotels

,,}

Tags

Local Market Stats

AirBnB Data

Similar Properties

Meta

High Res Images

Compatible Images

Low res Images

Thumbnails

Raw Images

High Res Floorplan Images

Compatible Floorplan Images

Low res Floorplan Images

FloorplanImages Thumbnail

Raw Floorplan Images