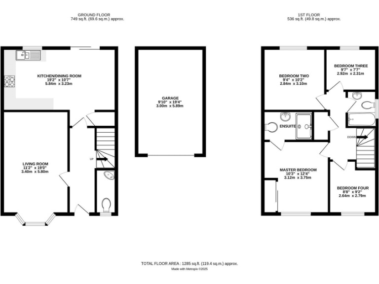
**Standout Features:**
- Four spacious bedrooms, including a master en-suite
- Detached modern family home in good condition
- Single garage and driveway parking
- Sunny, low-maintenance rear garden with decking
- Popular, family-friendly Jennetts Park location
- No onward chain, making it an immediate opportunity
Nestled in the sought-after Jennetts Park area, this beautifully maintained detached family home is perfect for those seeking comfort and convenience. With four well-sized bedrooms and an en-suite to the master, it caters to families looking for a space to grow. The heart of the home features a contemporary kitchen/dining room that opens onto a sunny garden, where you can relax or entertain with ease. The low-maintenance outdoor space, combined with an attached garage and additional driveway parking, adds tremendous value.
This property is chain-free, allowing for a seamless move-in process. The quiet street boasts excellent local amenities, including top-rated schools and access to major transport links like the M3 and M4, perfect for commuting professionals. While there are minor upkeep considerations typical for modern builds, the overall condition remains strong. Don't miss out on this exclusive opportunity in a low-crime, affluent community with a bright future!























































