Waterside two‑bedroom with balcony, parking and excellent station links.
Allocated off-street parking and lift access to all floors
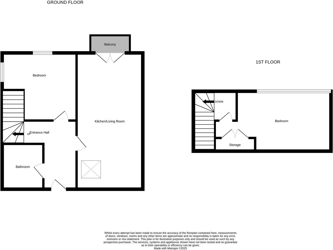
Spacious duplex layout with vaulted ceiling and exposed brickwork
Private balcony with views across the River Stour
Two double bedrooms; mezzanine flexible as office or guest room
Grade II listed status — will restrict alterations and need consents
Leasehold tenure; purchasers should check lease details and fees
Electric room heating; EPC current D (67) — potential C (73)
No private garden; suited to low-maintenance waterside living
Set within the Grade II listed Quayside Maltings, this two-storey apartment combines industrial character with contemporary living. Vaulted ceilings, exposed brick and a balcony looking over the River Stour create a light, airy main living space ideal for relaxing or entertaining. Allocated off-street parking and lift access add practical convenience for everyday life.
The main bedroom enjoys dual-aspect estuary views while a mezzanine bedroom over the living area provides flexible accommodation for guests, a home office or occasional use. The kitchen is fitted with timber-fronted units and integrated appliances; the bathroom is tiled and neatly finished. At approximately 969 sq ft the apartment is notably roomy for a two-bedroom waterside property.
Important practical points are straightforward: the property is leasehold and sits within a listed building, which may restrict alterations and could complicate consent for changes. Heating is by electric room heaters rather than gas central heating, and the EPC sits in the D band (current 67, potential 73), so running costs may be higher than modern gas-heated homes. There is no private garden.
Within walking distance of Mistley station and village amenities, the apartment suits someone seeking a characterful, low-maintenance waterside home with good transport links. It will particularly appeal to downsizers or buyers looking for a distinctive investment close to the estuary, provided they accept listed-building constraints and electric heating.
2 bedroom apartment for sale in High Street, Mistley, Manningtree, Essex, CO11 — £220,000 • 2 bed • 2 bath • 682 ft²
2 bedroom apartment for sale in School Lane, Mistley, Manningtree, CO11 — £185,000 • 2 bed • 2 bath • 1021 ft²
1 bedroom penthouse for sale in High Street, Mistley, Manningtree, Essex, CO11 — £290,000 • 1 bed • 1 bath • 580 ft²
2 bedroom apartment for sale in School Lane, Mistley, Manningtree, CO11 — £170,000 • 2 bed • 1 bath • 650 ft²
2 bedroom penthouse for sale in School Lane, Mistley, CO11 — £280,000 • 2 bed • 2 bath • 1033 ft²
2 bedroom apartment for sale in School Lane, Mistley, Manningtree, Essex, CO11 — £185,000 • 2 bed • 1 bath • 724 ft²


















































































