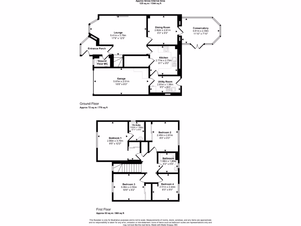
Four-bed cul-de-sac home with garden, garage and renovation potential in Forest Hall..
- Detached four-bedroom family home, approx. 1,344 sq ft
- Large conservatory and mature private rear garden
- Garage, driveway parking for multiple cars, cul-de-sac setting
- Master bedroom with en-suite; separate family bathroom
- Some interior finishes dated; carpets and décor need updating
- Energy rating TBC; built 1983–1990
- Medium flood risk recorded; check insurance implications
- Local area crime reported as high
This spacious four-bedroom detached house in Forest Hall offers generous family accommodation across approximately 1,344 sq ft. Set at the top of a quiet cul-de-sac, the property includes two reception rooms, a large conservatory overlooking a mature private garden, and a fitted kitchen with utility access to the attached garage and driveway parking for multiple cars. The master bedroom has an en-suite and there is a separate family bathroom.
The home is well suited to families seeking good local schools and green space; several primary and secondary schools rated Good are within easy reach and the area benefits from fast broadband and excellent mobile signal. The built date (1983–1990), double glazing and gas central heating give a practical, modern feel while retaining a traditional layout with a bay-fronted living room.
Buyers should note a few material points: some interior areas are dated and would benefit from updating (notably carpets and finishes), the energy rating is TBC, and the location has a recorded medium flood risk. Local crime levels are reported as high, so prospective purchasers should satisfy themselves on security and insurance implications. The property is freehold with Council Tax band D and is offered with no upper chain.
Overall this is a roomy family home with a desirable plot, scope to modernise and clear parking/garage space — attractive for growing households or buyers seeking renovation potential in a convenient, well-connected neighbourhood. Viewings are recommended to appreciate the layout and garden setting.
4 bedroom detached house for sale in Clousden Grange, Newcastle Upon Tyne, NE12 — £420,000 • 4 bed • 3 bath • 1523 ft²
4 bedroom semi-detached house for sale in Ravenswood Close, Forest Hall, Tyne and Wear, NE12 — £360,000 • 4 bed • 2 bath
3 bedroom detached house for sale in Mead Court, Forest Hall, NE12 — £300,000 • 3 bed • 3 bath • 1206 ft²
4 bedroom semi-detached house for sale in Weardale Avenue, Forest Hall, Newcastle upon Tyne, Tyne and Wear, NE12 7HX, NE12 — £395,000 • 4 bed • 2 bath • 1601 ft²
3 bedroom semi-detached house for sale in The Wynd, Forest Hall, NE12 — £220,000 • 3 bed • 2 bath • 926 ft²
3 bedroom semi-detached house for sale in Studley Villas, Forest Hall, NE12 — £290,000 • 3 bed • 1 bath • 1131 ft²






















































































