Period character with high-spec modern living and loft potential.
Architect-designed, high-spec renovation throughout
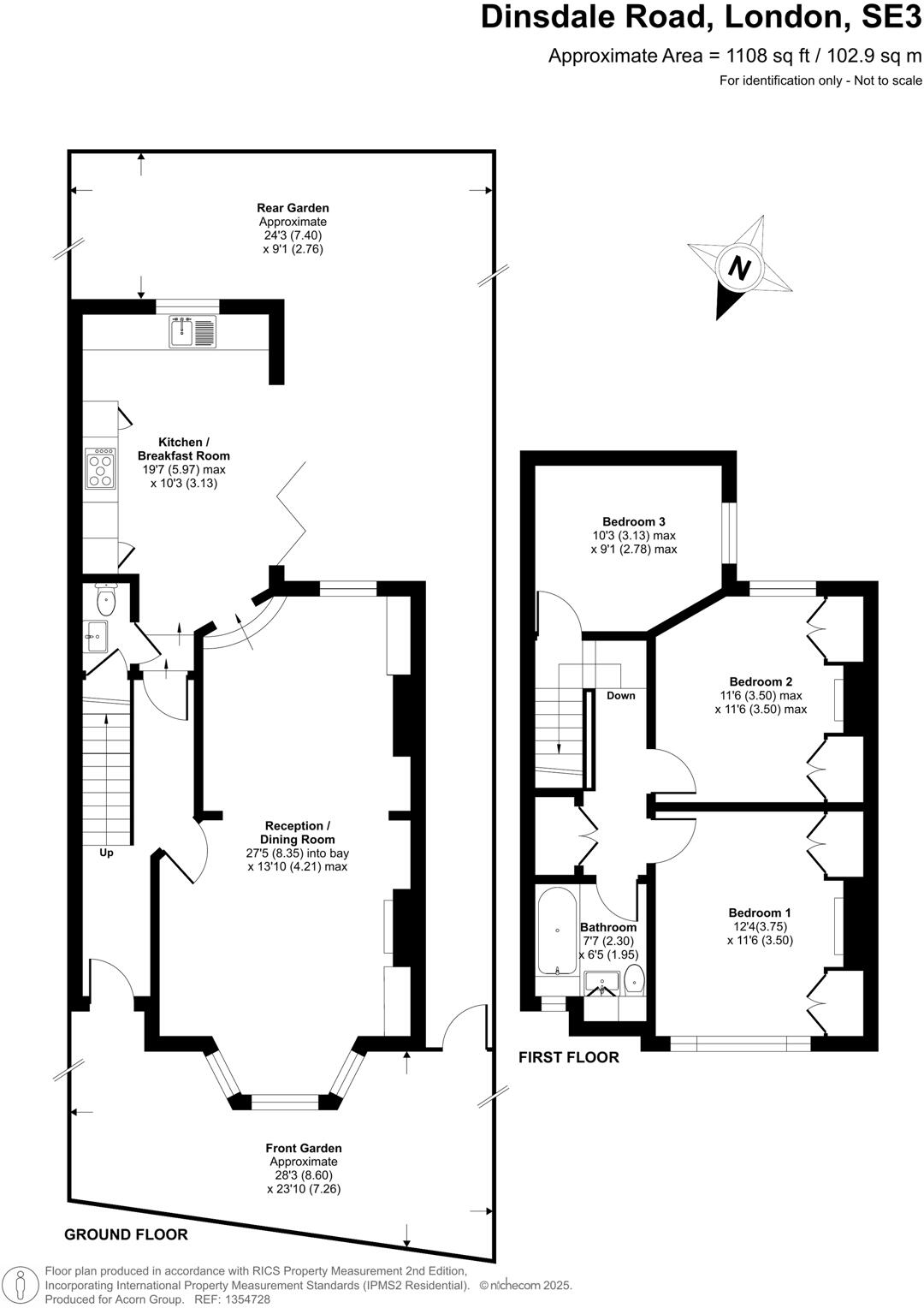
This Victorian semi presents a rare combination of authentic period charm and meticulous architect-led renovation. The 27ft open-plan living and dining space retains high ceilings, cast-iron fireplace and sash bay, while a bespoke Neptune solid wood kitchen with island opens via cedar bi-folds onto a professionally landscaped, south-facing garden. Underfloor heating to the ground floor and a wood-burning stove provide efficient, comfortable living across seasons.
Upstairs are three double bedrooms with bespoke fitted wardrobes and air conditioning for year-round comfort, plus a stylish bathroom finished with marble skirting and underfloor heating. The loft is fully boarded and carpeted and offers realistic potential for conversion to one or two additional bedrooms with an ensuite, subject to planning consent — an obvious way to increase space and long-term value.
Practical upgrades include comprehensive interior and exterior damp-proofing, newly installed double glazing (post-2002), a dry usable cellar, and modern utility solutions. The property is freehold, located within easy walking distance of Maze Hill station and well-regarded local schools, making it particularly well suited to professional families seeking space, character and strong transport links.
Buyers should note a few practical considerations: the home’s energy efficiency is rated D and walls are original solid brick (assumed no cavity insulation), council tax is above average (Band E), and the rear plot is modest in size. These are balanced by the high-quality finishes and the option to extend into the loft subject to consents.
4 bedroom end of terrace house for sale in Dinsdale Road, London, SE3 — £1,275,000 • 4 bed • 2 bath • 1890 ft²
3 bedroom terraced house for sale in Clandon Street, London SE8 — £775,000 • 3 bed • 1 bath • 968 ft²
3 bedroom terraced house for sale in Troughton Road, Charlton, SE7 — £735,000 • 3 bed • 1 bath • 1129 ft²
3 bedroom semi-detached house for sale in Luton Place, London, SE10 — £1,450,000 • 3 bed • 3 bath • 1453 ft²
4 bedroom house for sale in Annandale Road, London, SE10 — £1,250,000 • 4 bed • 2 bath • 1550 ft²
5 bedroom terraced house for sale in Heathwood Gardens, Charlton, SE7 — £975,000 • 5 bed • 3 bath • 2000 ft²


























































































































































