Walk to harbour and schools from this renovated three-bedroom freehold home.
Three bedrooms with one family bathroom
Recently renovated interior; modern kitchen and heating
Separate lounge and dining/games room layout
Enclosed front and rear gardens; small, low-maintenance plot
Driveway plus single garage for off-street parking
Walking distance to harbour, shops and local schools
Single bathroom only; may suit families used to one bath
Exterior needs minor cosmetic finishing work
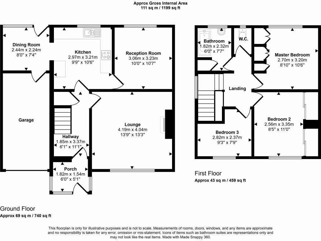
Set within walking distance of Amble harbour, this newly renovated three-bedroom semi-detached house balances coastal convenience with practical family living. The ground floor offers separate lounge, dining/games room and a modern kitchen, while upstairs provides three bedrooms and a single family bathroom — a straightforward layout that suits young families or first-time buyers.
The property benefits from double glazing, mains gas central heating and an off-street driveway plus single garage. Gardens at front and rear are enclosed and low-maintenance; the plot is small but easy to manage. Local schools and town amenities are close by, and the area is generally affluent with excellent mobile signal and no flood risk.
Buyers should note the home is average sized at about 1,199 sq ft and has only one bathroom. Although the interior has been recently refurbished, the exterior shows some cosmetic finishing still needed (unpainted siding noted). Council tax is affordable and the freehold tenure makes this a straightforward purchase for owner-occupiers.
3 bedroom semi-detached house for sale in Castle View, Amble, Northumberland, NE65 0NN, NE65 — £230,000 • 3 bed • 1 bath • 851 ft²
3 bedroom semi-detached house for sale in Priory Park, Amble, Northumberland, NE65 0HY, NE65 — £245,000 • 3 bed • 2 bath • 1275 ft²
3 bedroom detached house for sale in The Close, Amble, Morpeth, Northumberland, NE65 — £280,000 • 3 bed • 2 bath • 410 ft²
3 bedroom terraced house for sale in Bede Street, Amble, Morpeth, Northumberland, NE65 — £185,000 • 3 bed • 1 bath • 915 ft²
3 bedroom semi-detached house for sale in Bisley Road, Amble, NE65 — £250,000 • 3 bed • 1 bath • 1158 ft²
3 bedroom semi-detached house for sale in St. Cuthberts Avenue, Amble, NE65 — £175,000 • 3 bed • 1 bath










































































