Large extended kitchen with garden — ideal for family living close to Gloucester centre.
Three double bedrooms and a large family bathroom
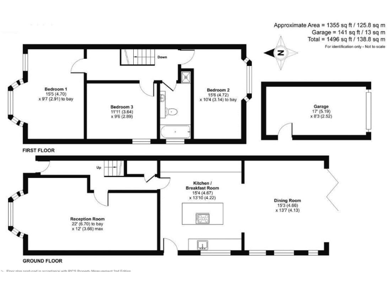
This substantial 1930s semi offers roomy, practical family living just over a mile east of Gloucester city centre. The property’s major draw is the 28' x 15' kitchen/dining/family extension that opens via full-width windows and doors onto a large, landscaped rear garden — ideal for everyday family life and entertaining. The ground floor also includes a separate lounge with bay window, offering a more formal sitting space.
Upstairs are three double bedrooms and a large family bathroom, providing genuine sleeping space for a family. Practical features include gas central heating, uPVC double glazing, generous off-street parking with turning space and a substantial garage/workshop. Several well-regarded primary and secondary schools are within walking distance, which adds everyday convenience for families.
The house has been well looked after and largely modernised in the extension, but buyers should note there is a single bathroom serving three double bedrooms, which may be a consideration for larger households. As a period property, some areas may benefit from light updating to personal taste. Freehold tenure, low flood risk and fast broadband make the house straightforward to occupy or to adapt further.
In short, this is a roomy, well-connected family home with a standout kitchen/diner and strong outdoor space. It will suit families seeking extended living areas, easy parking and proximity to good schools, while buyers wanting more bathrooms or full modernisation should factor that in.
3 bedroom semi-detached house for sale in Barnwood Avenue, Barnwood, GL4 — £375,000 • 3 bed • 1 bath • 1022 ft²
3 bedroom semi-detached house for sale in Armscroft Road, Gloucester, Gloucestershire, GL2 — £325,000 • 3 bed • 2 bath • 964 ft²
3 bedroom semi-detached house for sale in Welveland Lane, Barnwood, Gloucester, GL4 — £335,000 • 3 bed • 2 bath • 1258 ft²
3 bedroom semi-detached house for sale in Armscroft Road, Gloucester, GL2 — £250,000 • 3 bed • 1 bath • 845 ft²
3 bedroom semi-detached house for sale in Gladstone Road, Linden, Gloucester, GL1 — £340,000 • 3 bed • 2 bath • 1217 ft²
3 bedroom semi-detached house for sale in Bradford Road, Gloucester, GL2 — £395,000 • 3 bed • 1 bath • 1110 ft²


















































































