**Standout Features:**
- Freehold property featuring a large duplex apartment above a tenanted tea room.
- Established rental income of £24,600 per annum from the ground floor tea room, currently leased until February 2026.
- Maintaining historic charm with Grade II* Listed status, combined with modern renovations in the apartment.
- Prime location in the bustling Woodbridge town center, close to amenities and transport links.
**Summary:**
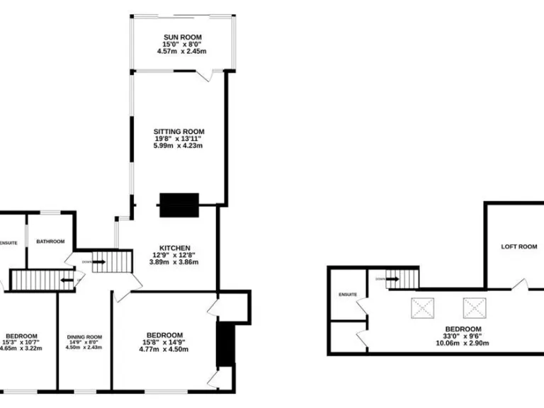
Discover a unique investment opportunity with this exceptional freehold property in the heart of Woodbridge. Beresford House offers a spacious duplex apartment that has been recently renovated to high standards, boasting period features and stunning views over Elmhurst Park. The three-bedroom living space provides ample room for families or professionals seeking a comfortable residence while enjoying the convenience of nearby local shops, restaurants, and parks.
The ground floor is home to Maeve's Tea Room, currently generating a steady income of £24,600 per annum. This vibrant commercial space complements its charming residential counterpart, making it perfect for investors looking to capitalize on a mixed-use property. While the listed status adds prestige and protects the building's character, it does come with limitations on extensive renovations. However, the potential for future development is evident, especially with existing plans that allow flexibility for the ground floor business.
Given the appealing blend of residential comfort and rental income, this property is ideal for investors or families desiring a central location in this picturesque Suffolk town. Don't miss out on the chance to own a piece of local history, available now at a guide price of £795,000.
3 bedroom apartment for sale in Thoroughfare, Woodbridge, Suffolk, IP12 — £750,000 • 3 bed • 3 bath • 2775 ft²
3 bedroom apartment for sale in Church Street, Woodbridge, IP12 — £600,000 • 3 bed • 1 bath • 1217 ft²
4 bedroom terraced house for sale in St. Johns Street, Woodbridge, IP12 — £575,000 • 4 bed • 2 bath • 326 ft²
3 bedroom character property for sale in Station Road, Woodbridge, IP12 — £475,000 • 3 bed • 2 bath
High street retail property for sale in Aldeburgh, Suffolk, IP15 — £625,000 • 2 bed • 1 bath • 1408 ft²
Mixed use property for sale in 57-59, High Street, Leiston, Suffolk, IP16 — POA • 1 bed • 1 bath • 2998 ft²






























































