Large garden, garage and easy access to Garforth amenities.
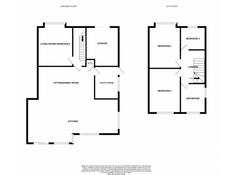
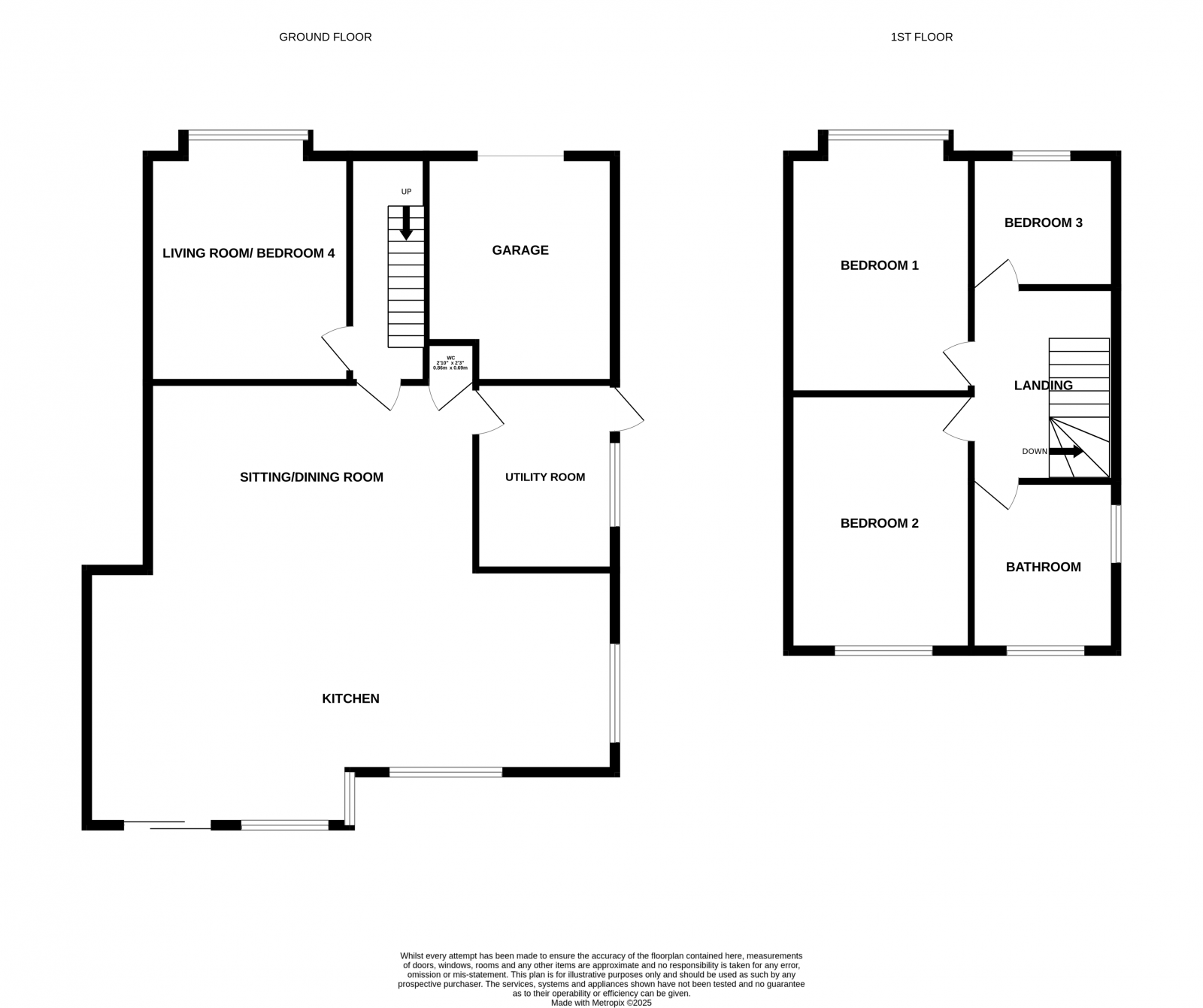
Extended open-plan kitchen diner and large living area
This well-presented three-bedroom detached home on Lowther Drive combines a modern open-plan living space with practical family accommodation. The extended ground floor creates a generous kitchen-diner and utility, while an integral garage and gravel driveway provide convenient off-street parking.
Upstairs are three bedrooms and a contemporary family bathroom; the principal and second bedrooms are double in size, while the third bedroom is compact and currently used as an office. The large rear lawn offers space for children to play and for outdoor entertaining.
Located in an established Garforth neighbourhood, the house is freehold, has gas central heating, double glazing and excellent transport links including Garforth station nearby. Low local crime, good schools and fast broadband make this a sensible family choice. Note that the garage is integrated and single-width, and the smaller third bedroom may suit a child’s room or home office rather than a large bedroom.
3 bedroom detached house for sale in Lyndon Avenue, Garforth, LS25 — £310,000 • 3 bed • 1 bath • 884 ft²
3 bedroom semi-detached house for sale in Lowther Grove, Garforth, Leeds, West Yorkshire, LS25 — £325,000 • 3 bed • 1 bath • 765 ft²
3 bedroom detached house for sale in Brierlands Fold, Garforth, LS25 — £300,000 • 3 bed • 2 bath • 743 ft²
3 bedroom semi-detached house for sale in Barleyhill Road, Garforth, Leeds, West Yorkshire, LS25 — £315,000 • 3 bed • 1 bath • 813 ft²
3 bedroom semi-detached house for sale in Cotswold Drive, Garforth, Leeds, LS25 — £345,000 • 3 bed • 1 bath • 855 ft²
3 bedroom semi-detached house for sale in Acaster Drive, Garforth, Leeds, West Yorkshire, LS25 — £335,000 • 3 bed • 1 bath • 1187 ft²










































































