Top-floor corner apartment with private balcony and Juliette balcony overlooking River Dane.
Two double bedrooms; master has en-suite shower and walk-in wardrobe.
Modern fitted kitchen with integrated dishwasher and washing machine included.
Lift access, 24-hour emergency call system and well-maintained communal gardens.
Chain-free sale with long lease remaining (112 years).
Leasehold: annual ground rent approx. £495; service charges and management fees apply.
Medium flood risk for the location — further insurance checks recommended.
Local area shows higher deprivation indicators; nearby amenities and transport available.
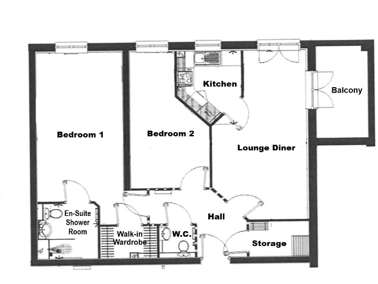
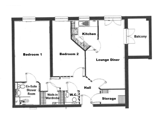
This top-floor two-bedroom apartment in a riverside retirement development offers spacious, low-maintenance living with excellent safety features. The corner balcony and Juliette balcony provide direct views over the River Dane, bringing light and a pleasant outlook to the main living area. The principal bedroom includes a walk-in wardrobe and en-suite shower room, while the modern fitted kitchen comes with an integrated dishwasher and washing machine.
Practical comforts include lift access, a 24-hour emergency call system and well-kept communal gardens and amenities, designed for independent retirement living. The property is chain-free and has a long lease (112 years remaining), making it straightforward to purchase. On-site guest accommodation, laundry facilities and proximity to Congleton town centre and park add convenience and social opportunities.
Buyers should note material facts: this is a leasehold retirement apartment with an annual ground rent c. £495 and some service/maintenance obligations typical of managed developments. The location is in an area with higher deprivation indicators and a medium flood risk — insurers or mortgage providers may ask for additional checks. Despite generally good communal upkeep, individual buyers should expect standard retirement-scheme charges and routine communal maintenance responsibilities.
Overall, the apartment suits a downsizing retiree or couple seeking a secure, social riverside home with lift access and emergency support, but buyers must factor in leasehold costs, flood considerations and the local area profile when deciding to view.
2 bedroom retirement property for sale in Mill Green, Congleton, CW12 — £200,000 • 2 bed • 1 bath
Studio flat for sale in Mill Green, Congleton, CW12 — £120,000 • 1 bed • 1 bath • 494 ft²
1 bedroom retirement property for sale in 31 Dane Court, Congleton, Cheshire, CW12 — £125,000 • 1 bed • 1 bath
1 bedroom apartment for sale in Dane Court, 21 Mill Green, Congleton, CW12 — £120,000 • 1 bed • 1 bath • 570 ft²
2 bedroom retirement property for sale in Dane Court, Mill Green, Congleton, CW12 — £200,000 • 2 bed • 1 bath • 664 ft²
1 bedroom apartment for sale in Mill Green, Congleton, CW12 — £135,000 • 1 bed • 1 bath • 819 ft²


































































































































































































































