Bright open-plan living, residents lift and parking minutes from Eastcote station.
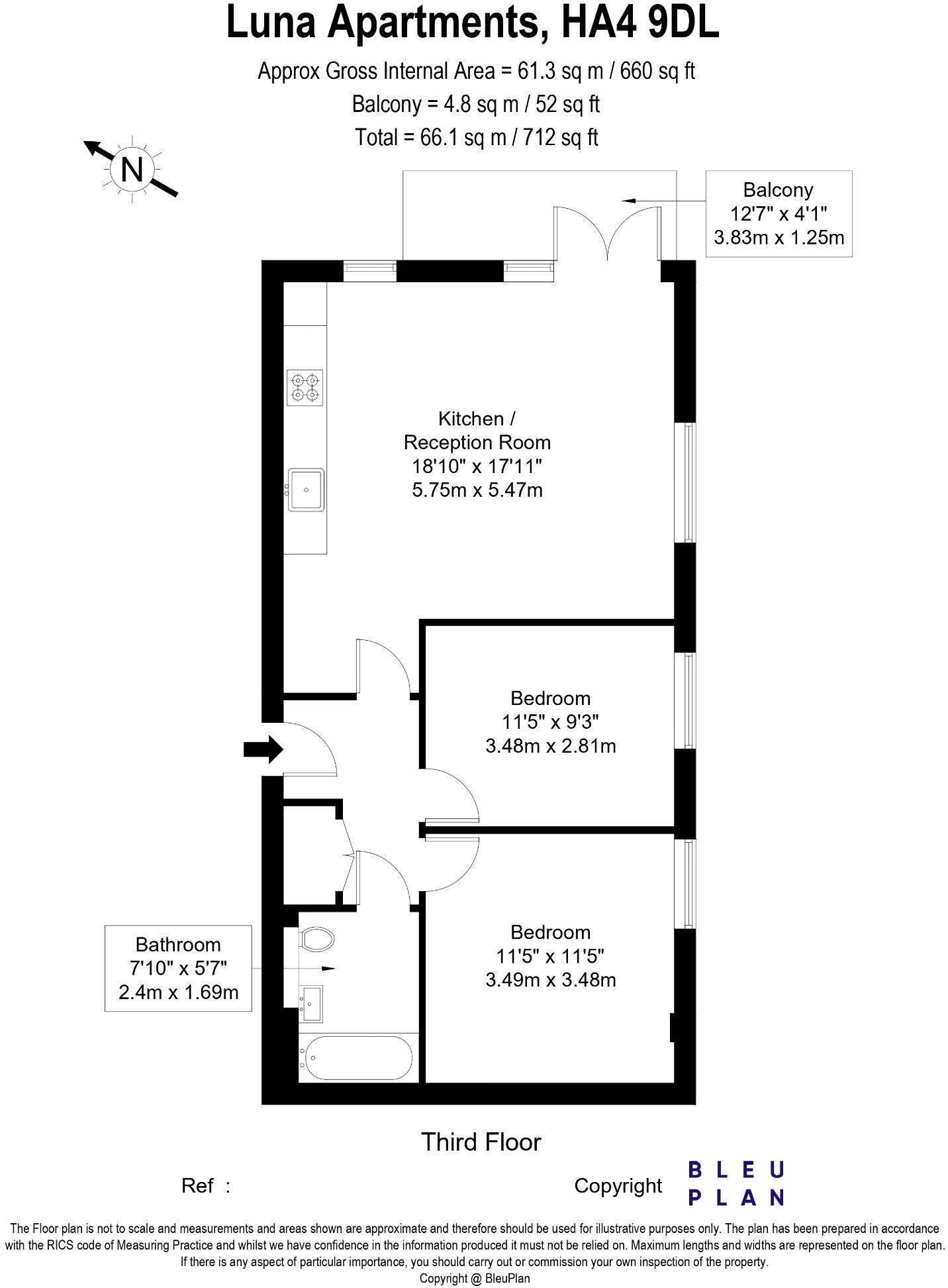
Top-floor penthouse with private balcony and communal roof garden
Set at the top of Luna Apartments, this two-bedroom penthouse offers compact, modern living with useful outdoor space. The open-plan reception and integrated kitchen make daily life and entertaining straightforward, while a private balcony and a landscaped communal roof garden extend the living area outdoors. A residents' lift serves the top floor, and allocated residential parking adds practical convenience.
The apartment is leasehold with a long 240-year lease remaining, providing long-term security. The overall size is average at about 660 sq ft with one bathroom, suited to couples, professionals or those downsizing who value location over large internal space. Broadband is fast and mobile signal excellent, and the development sits in a very low-crime, very affluent area with quick access to Eastcote Station (Metropolitan and Piccadilly lines).
Practical costs and considerations are clear: the property carries a ground rent of £350 (charged at the stated rate) and council tax banding is moderate. The apartment appears in good contemporary condition from the description, but its compact footprint and single bathroom may limit appeal for buyers needing more space or additional bathrooms. Communal upkeep and any service charges should be checked prior to offer.
In short, this is a secure, well-connected top-floor home with private and communal outdoor areas, a long lease and parking — a convenient choice for a buyer prioritising location, modern open-plan living and low local crime over large internal space.
2 bedroom penthouse for sale in Malt Works Apartments, Field End Road, Eastcote, HA4 — £500,000 • 2 bed • 2 bath • 777 ft²
2 bedroom penthouse for sale in Field End Road, Eastcote, HA4 — £425,000 • 2 bed • 2 bath • 743 ft²
3 bedroom apartment for sale in Field End Road, Ruislip, Middlesex, HA4 — £500,000 • 3 bed • 2 bath • 980 ft²
2 bedroom flat for sale in Field End Road, Pinner, RUISLIP, HA4 — £370,000 • 2 bed • 1 bath • 676 ft²
1 bedroom apartment for sale in Field End Road, Ruislip, Middlesex, HA4 — £250,000 • 1 bed • 1 bath • 411 ft²
1 bedroom apartment for sale in Field End Road, Ruislip, Middlesex, HA4 — £280,000 • 1 bed • 1 bath • 422 ft²






















































